Description
This lovely country-style two-storey home is 30 feet wide by 35 feet 6 inches deep and has a living area of 1,598 square feet.
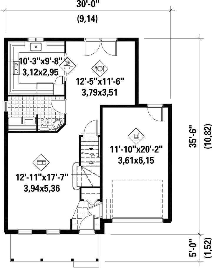
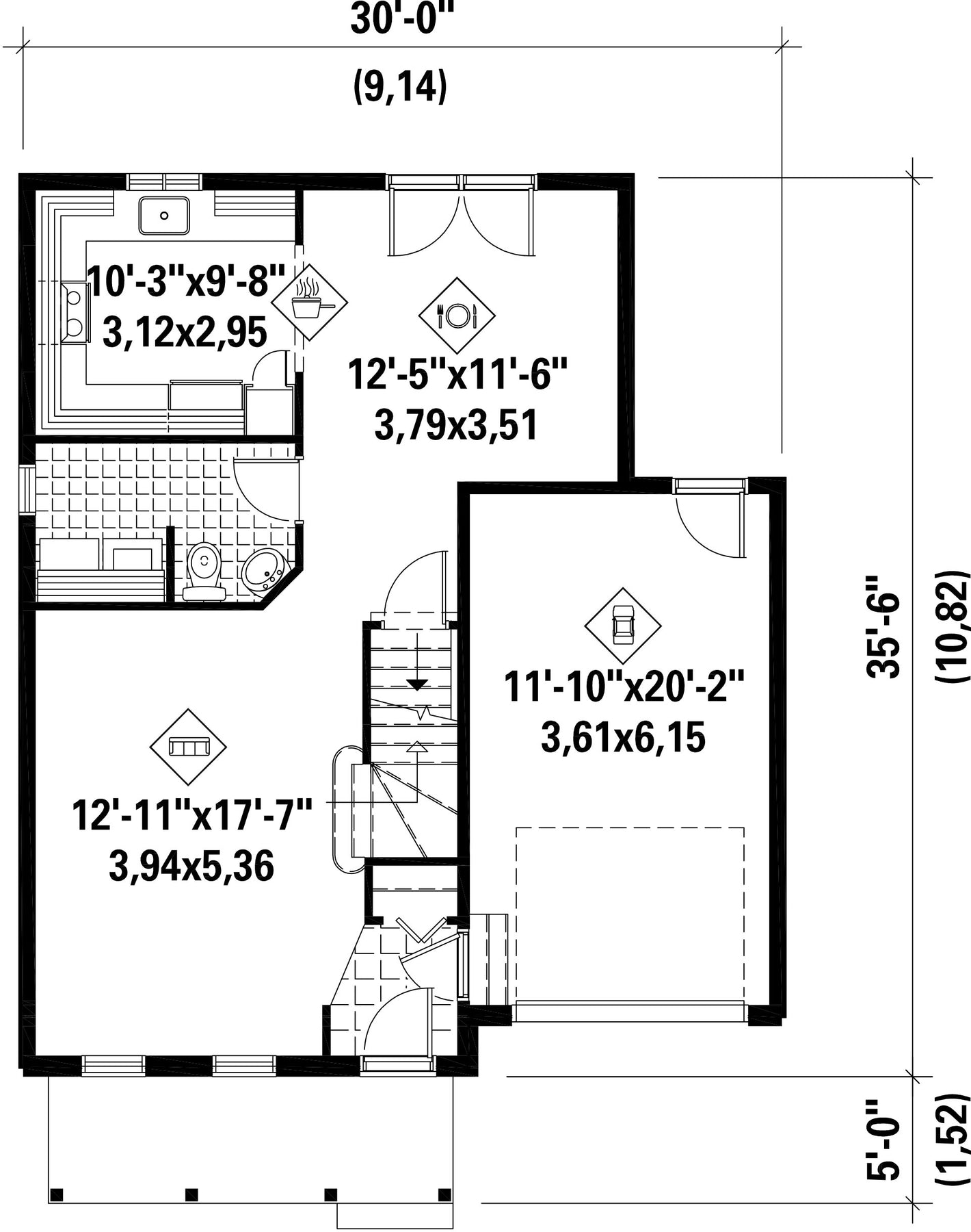
With 708 square feet of living area, the ground floor includes a kitchen, a dining room, a living room, a powder room and a 262 square foot one-car garage.
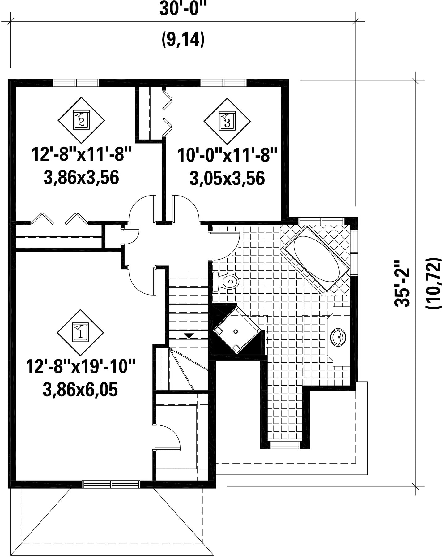
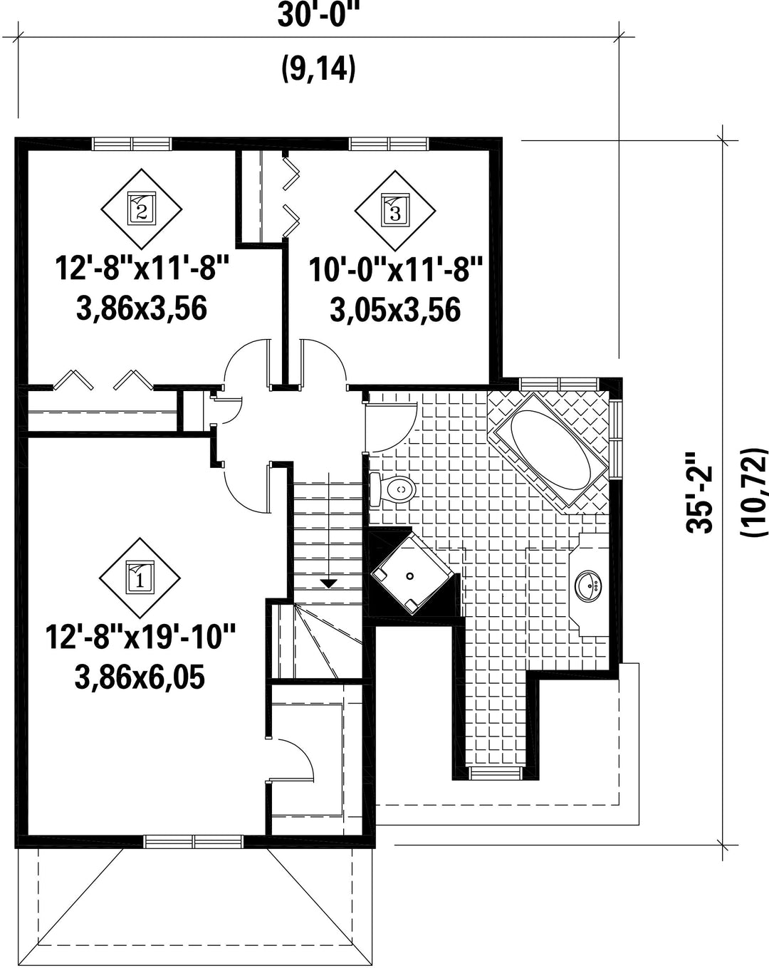
The second floor covers 890 square feet and features three bedrooms and a spacious bathroom.
With 708 square feet of living area, the ground floor includes a kitchen, a dining room, a living room, a powder room and a 262 square foot one-car garage.
The second floor covers 890 square feet and features three bedrooms and a spacious bathroom.
Additional info
Measurements: Imperial| House style | Country |
Construction price
Approximate amount equivalent to what it would cost to have a general contractor (Montreal's South Shore region) build a similar home, excluding the lot and the infrastructure.
|
320480 $ |
|---|---|---|---|
| Front | 30 ft | Total living surface | 1598 ft² |
| Depth | 35 ft 6 in | Bathrooms | 1 |
| Height | 31 ft 8 in | Bedrooms | 3 |
| Master bedroom | Walk in | ||
| First floor area | 708 ft² | Exterior walls | Aluminum + Brick |
| Second floor area | 890 ft² | Kitchen | U shaped + Dining room |
| Garage area | 262 ft² | Garages | 1 |
| Garage wall | 8 ft | First floor wall | 8 ft |
| Second floor wall | 8 ft | Front/back roof slope | 8/12 |
| House style | Country |
|---|---|
|
Construction price
Approximate amount equivalent to what it would cost to have a general contractor (Montreal's South Shore region) build a similar home, excluding the lot and the infrastructure.
|
320480 $ |
| Front | 30 ft |
| Total living surface | 1598 ft² |
| Depth | 35 ft 6 in |
| Bathrooms | 1 |
| Height | 31 ft 8 in |
| Bedrooms | 3 |
| Master bedroom | Walk in |
| First floor area | 708 ft² |
| Exterior walls | Aluminum + Brick |
| Second floor area | 890 ft² |
| Kitchen | U shaped + Dining room |
| Garage area | 262 ft² |
| Garages | 1 |
| Garage wall | 8 ft |
| First floor wall | 8 ft |
| Second floor wall | 8 ft |
| Front/back roof slope | 8/12 |