Description
This impressive urban two-storey house is 35 feet 10 inches wide by 34 feet deep. It provides 1,724 square feet of living space and is attached to a 265 square-foot one-car garage with a window in the sidewall.
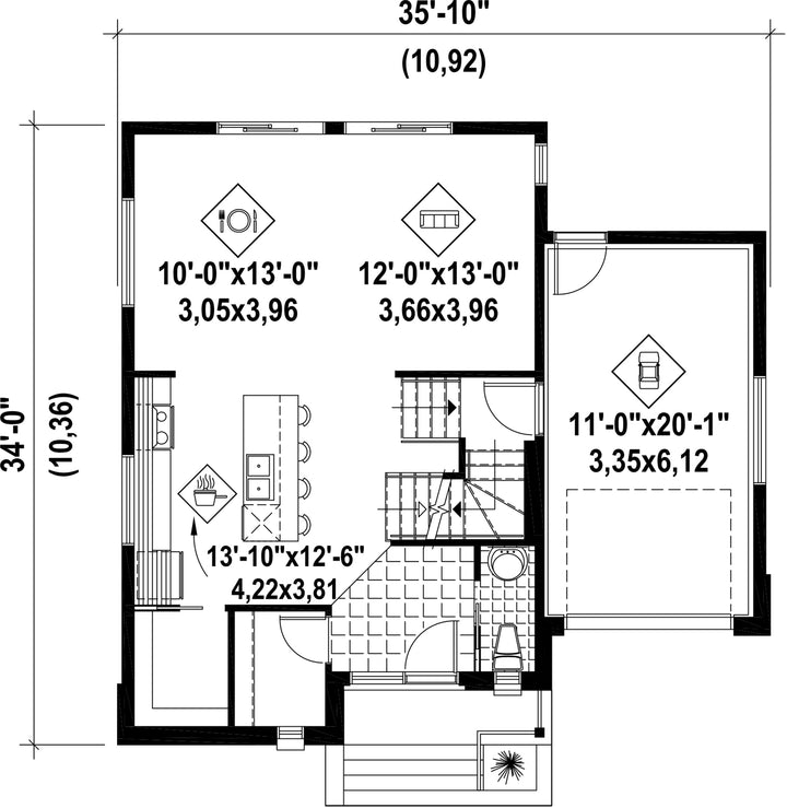
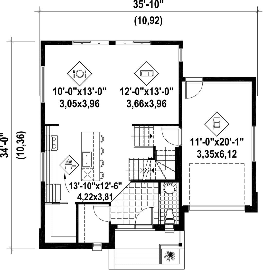
The open ground floor provides 752 square feet of living space and ceilings are nine feet high. It features an entrance with a large walk-in closet, a powder room, a kitchen with a spacious pantry and a large island that can also be used as a lunch counter for four people, as well as a living room and a dining room with patio doors overlooking the back yard. A ribbon window installed underneath the kitchen cabinets provides additional light.
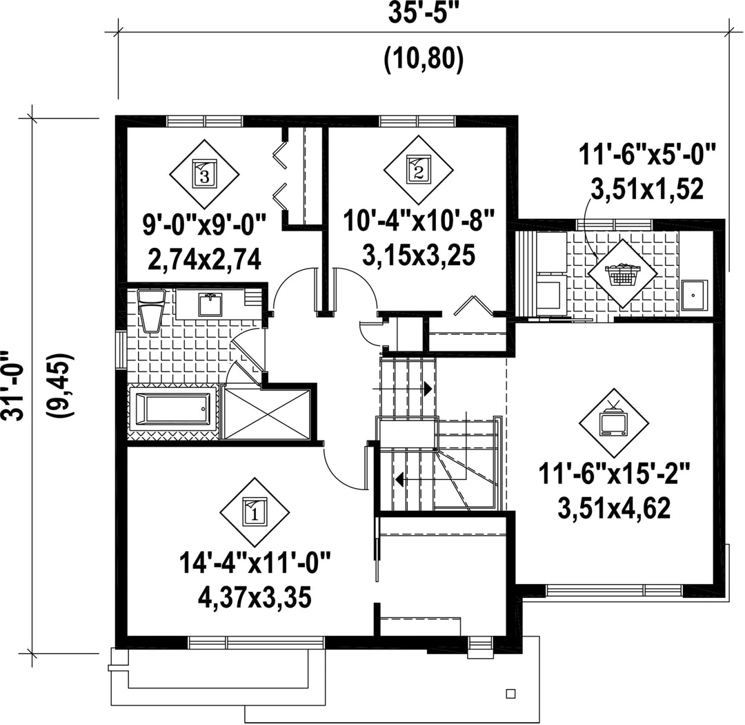
The upper floor has a 972 square-foot living area and features a den and a laundry room located above the garage, a bathroom with separate bathtub and shower, as well as three bedrooms, including a master bedroom designed with a large walk-in closet.
The open ground floor provides 752 square feet of living space and ceilings are nine feet high. It features an entrance with a large walk-in closet, a powder room, a kitchen with a spacious pantry and a large island that can also be used as a lunch counter for four people, as well as a living room and a dining room with patio doors overlooking the back yard. A ribbon window installed underneath the kitchen cabinets provides additional light.
The upper floor has a 972 square-foot living area and features a den and a laundry room located above the garage, a bathroom with separate bathtub and shower, as well as three bedrooms, including a master bedroom designed with a large walk-in closet.
Additional info
Measurements: Imperial| House style | Urban |
Construction price
Approximate amount equivalent to what it would cost to have a general contractor (Montreal's South Shore region) build a similar home, excluding the lot and the infrastructure.
|
395272 $ |
|---|---|---|---|
| Front | 35 ft 10 in | Total living surface | 1724 ft² |
| Depth | 34 ft | Bathrooms | 1 |
| Height | 25 ft | Bedrooms | 3 |
| Master bedroom | Wardrobe | ||
| First floor area | 752 ft² | Exterior walls | Wood + Brick + Stone |
| Second floor area | 972 ft² | Kitchen | Laboratory + Island |
| Garage area | 265 ft² | Garages | 1 |
| Garage wall | 8 ft | First floor wall | 9 ft |
| Second floor wall | 8 ft | Front/back roof slope | N / A |
| Left/right roof slope | N / A |
| House style | Urban |
|---|---|
|
Construction price
Approximate amount equivalent to what it would cost to have a general contractor (Montreal's South Shore region) build a similar home, excluding the lot and the infrastructure.
|
395272 $ |
| Front | 35 ft 10 in |
| Total living surface | 1724 ft² |
| Depth | 34 ft |
| Bathrooms | 1 |
| Height | 25 ft |
| Bedrooms | 3 |
| Master bedroom | Wardrobe |
| First floor area | 752 ft² |
| Exterior walls | Wood + Brick + Stone |
| Second floor area | 972 ft² |
| Kitchen | Laboratory + Island |
| Garage area | 265 ft² |
| Garages | 1 |
| Garage wall | 8 ft |
| First floor wall | 9 ft |
| Second floor wall | 8 ft |
| Front/back roof slope | N / A |
| Left/right roof slope | N / A |