Description
Thanks to its many windows, decorative moldings and two decks, this beautiful cedar cottage will appeal to nature lovers. The house is 20 feet wide by 28 feet deep and provides 1,080 square feet of living space.
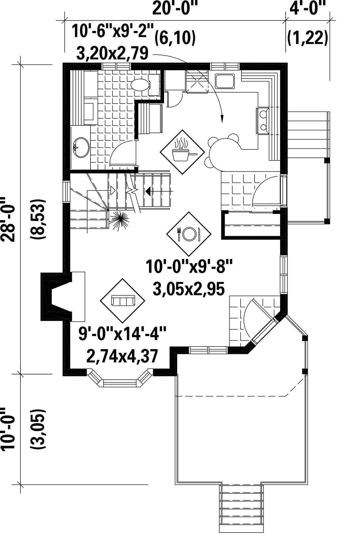
The ground floor covers 540 square feet and includes a kitchen with a lunch counter, an open dining room and living room with fireplace, and a powder room with a laundry area.
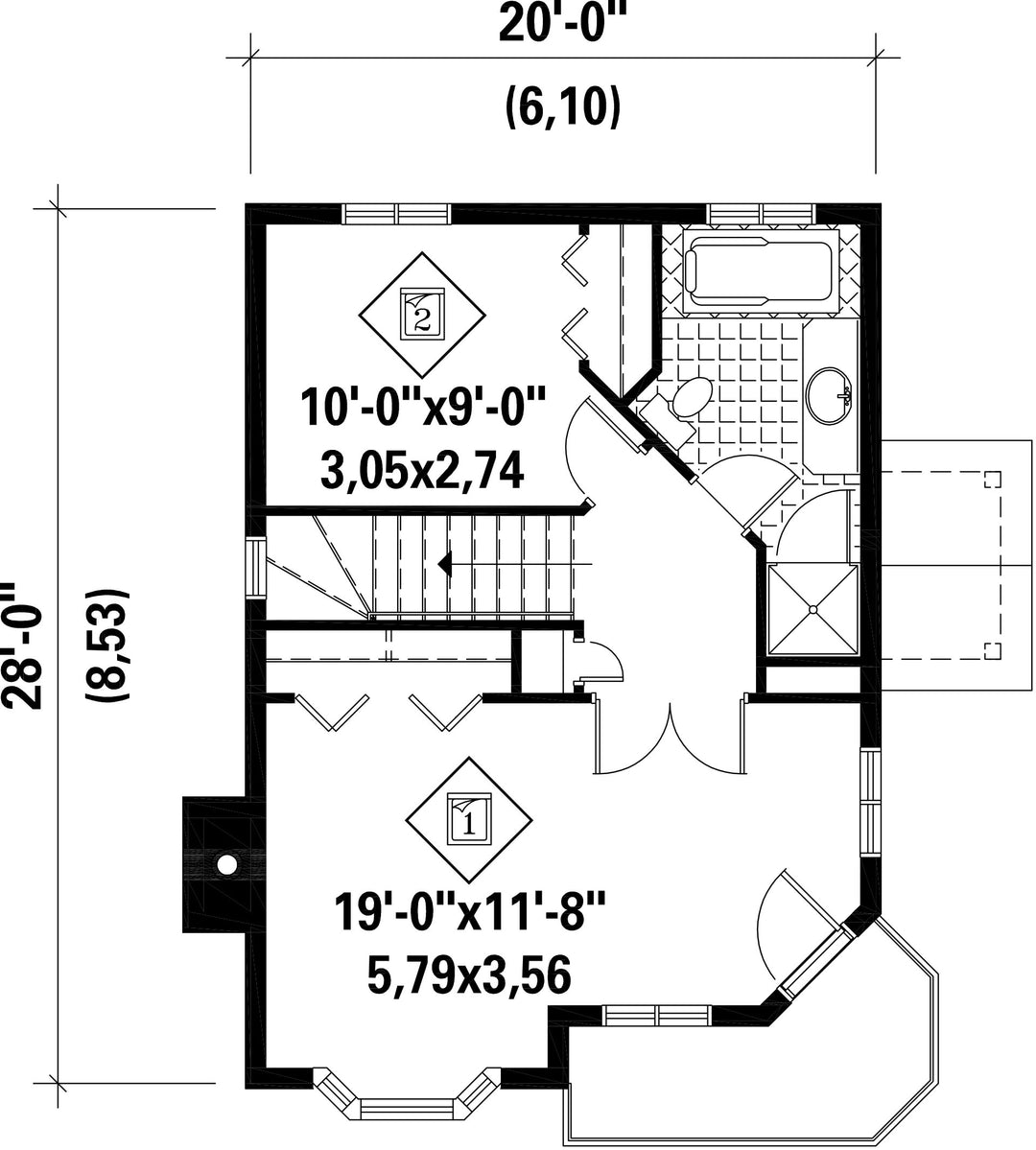
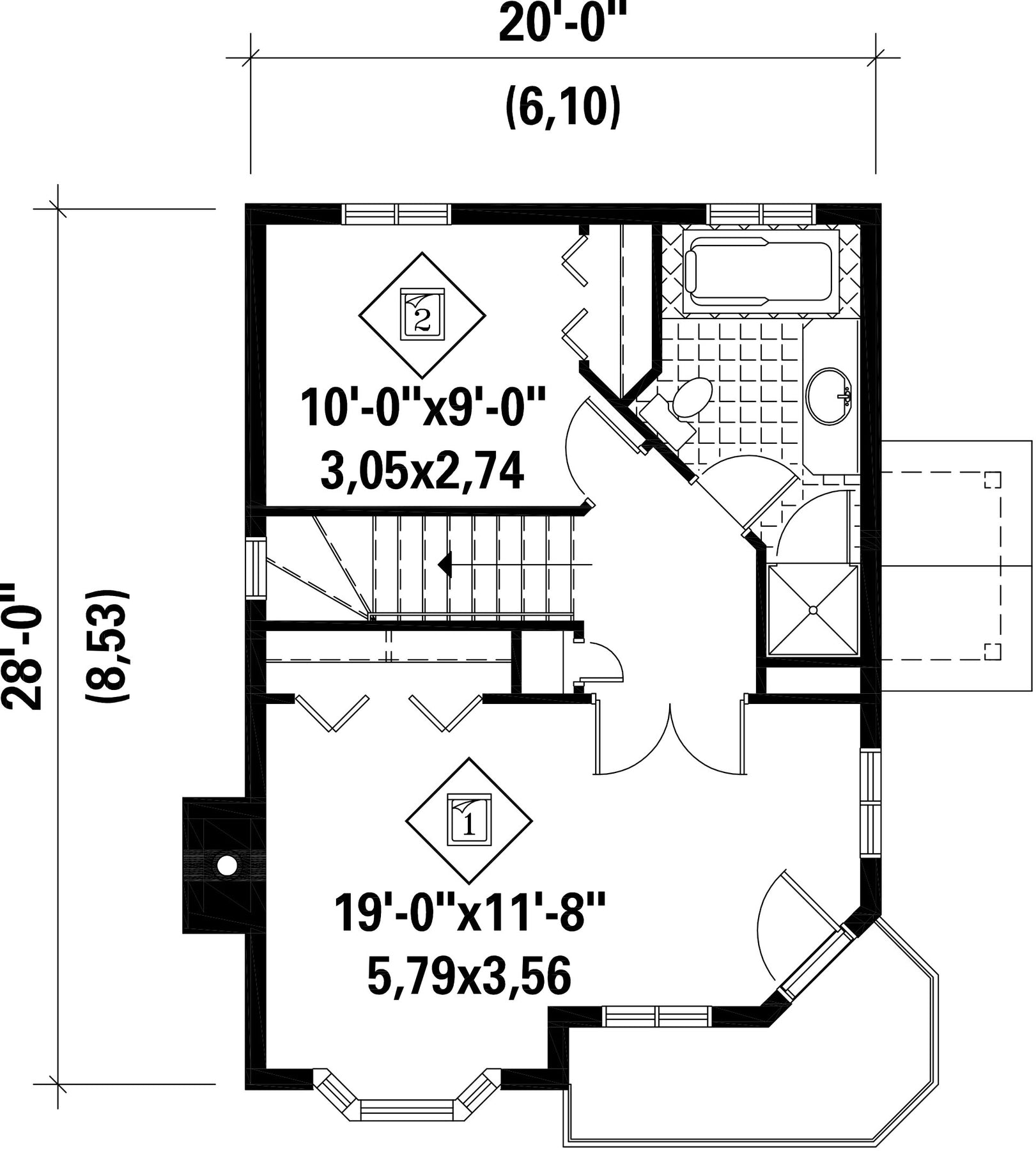
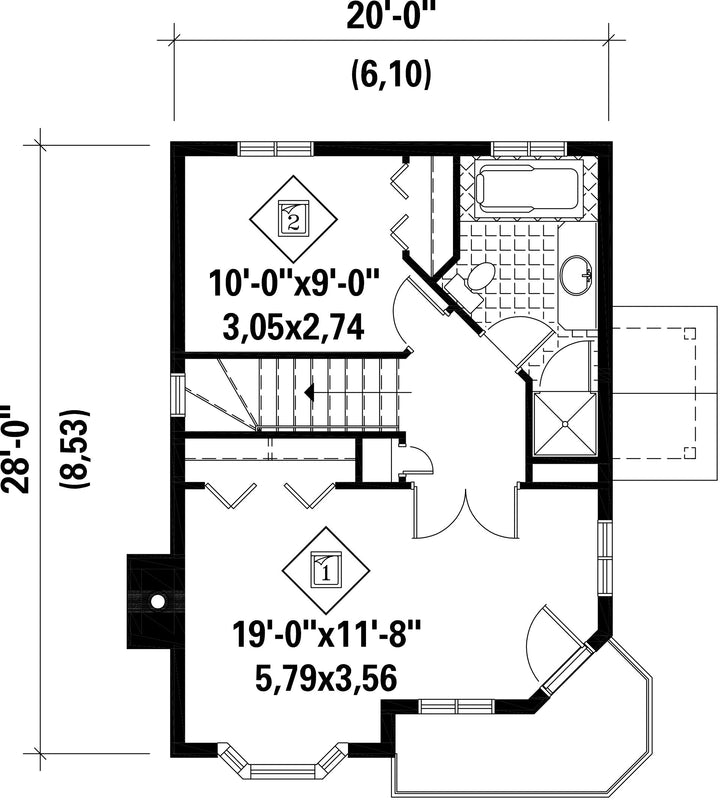
The upper floor also has a 540 square foot living area and includes two bedrooms, one of which opens up onto the deck, and a family bathroom.
The ground floor covers 540 square feet and includes a kitchen with a lunch counter, an open dining room and living room with fireplace, and a powder room with a laundry area.
The upper floor also has a 540 square foot living area and includes two bedrooms, one of which opens up onto the deck, and a family bathroom.
Additional info
Measurements: Imperial| House style | Rustic |
Construction price
Approximate amount equivalent to what it would cost to have a general contractor (Montreal's South Shore region) build a similar home, excluding the lot and the infrastructure.
|
226965 $ |
|---|---|---|---|
| Front | 20 ft | Total living surface | 1080 ft² |
| Depth | 28 ft | Bathrooms | 1 |
| Height | 31 ft 8 in | Bedrooms | 2 |
| Master bedroom | Double doors | ||
| First floor area | 540 ft² | Exterior walls | Cedar shingles |
| Second floor area | 540 ft² | Kitchen | Lunch counter + L-shaped |
| Garages | 0 | ||
| First floor wall | 8 ft | ||
| Second floor wall | 8 ft | ||
| Left/right roof slope | 12/12 |
| House style | Rustic |
|---|---|
|
Construction price
Approximate amount equivalent to what it would cost to have a general contractor (Montreal's South Shore region) build a similar home, excluding the lot and the infrastructure.
|
226965 $ |
| Front | 20 ft |
| Total living surface | 1080 ft² |
| Depth | 28 ft |
| Bathrooms | 1 |
| Height | 31 ft 8 in |
| Bedrooms | 2 |
| Master bedroom | Double doors |
| First floor area | 540 ft² |
| Exterior walls | Cedar shingles |
| Second floor area | 540 ft² |
| Kitchen | Lunch counter + L-shaped |
| Garages | 0 |
| First floor wall | 8 ft |
| Second floor wall | 8 ft |
| Left/right roof slope | 12/12 |