61202
61202
61202
61202
61202
61202

61202


Jeux de plans - Sets of plans
Regular price$1,188.00
/

This site is protected by hCaptcha and the hCaptcha Privacy Policy and Terms of Service apply.

Description

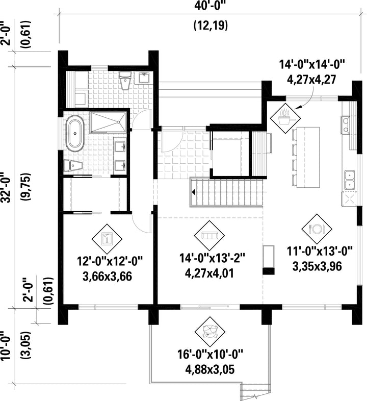
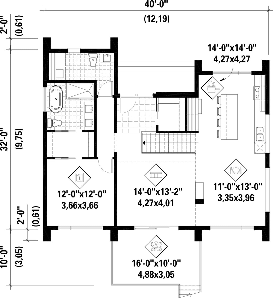
This light-bathed Farmhouse-styled cottage has a livable surface of 2030 sq. ft. At the garden level there are three bedrooms, a family room and a bathroom. The open-concept ground floor has a large vestibule, a kitchen with an island, a dining room and a living room. A fireplace separates the dining room and the living room. A private bathroom and a walk-in closet are connected to the master bedroom. A shower room with a washer and dryer completes the package.

Additional info

Measurements: Imperial

House style European Construction price 
Approximate amount equivalent to what it would cost to have a general contractor (Montreal's South Shore region) build a similar home, excluding the lot and the infrastructure.
361386 $
Front 40 ft Total living surface 2030 ft²
Depth 32 ftBathrooms 2
Height 26 ftBedrooms 4
Master bedroom Bathtub + Shower + Double sink + Walk in + Toilet
First floor area 1116 ft² Exterior walls Wood
Kitchen Laboratory + Dining room + Island
Garages 0
First floor wall 9 ft
Front/back roof slope 6/12
Left/right roof slope 12/12Basement area 914 ft²
House style European
Construction price 
Approximate amount equivalent to what it would cost to have a general contractor (Montreal's South Shore region) build a similar home, excluding the lot and the infrastructure.
361386 $
Front 40 ft
Total living surface 2030 ft²
Depth 32 ft
Bathrooms 2
Height 26 ft
Bedrooms 4
Master bedroom Bathtub + Shower + Double sink + Walk in + Toilet
First floor area 1116 ft²
Exterior walls Wood
Kitchen Laboratory + Dining room + Island
Garages 0
First floor wall 9 ft
Front/back roof slope 6/12
Left/right roof slope 12/12
Basement area 914 ft²

Ces plans de maison pourraient également vous intéresser


Recently viewed