Description
This prestigious 3,493 square foot multigenerational house stands out with its stone facing and fish scale detailing. The two-storey home is 62 feet wide by 42 feet deep and also has a 441 square foot two-car garage with a side door. Both dwelling units share a common front entrance.
The 1,992 square foot ground floor is divided in two distinct areas one of which includes a complete dwelling that has a bedroom, a bathroom and an open kitchen, dining room and living room. The other unit includes a living room with a fireplace, a powder room with a laundry area, a dining room, a large kitchen with an island and a breakfast nook, and a den with another fireplace. The bedrooms are on the upper floor.
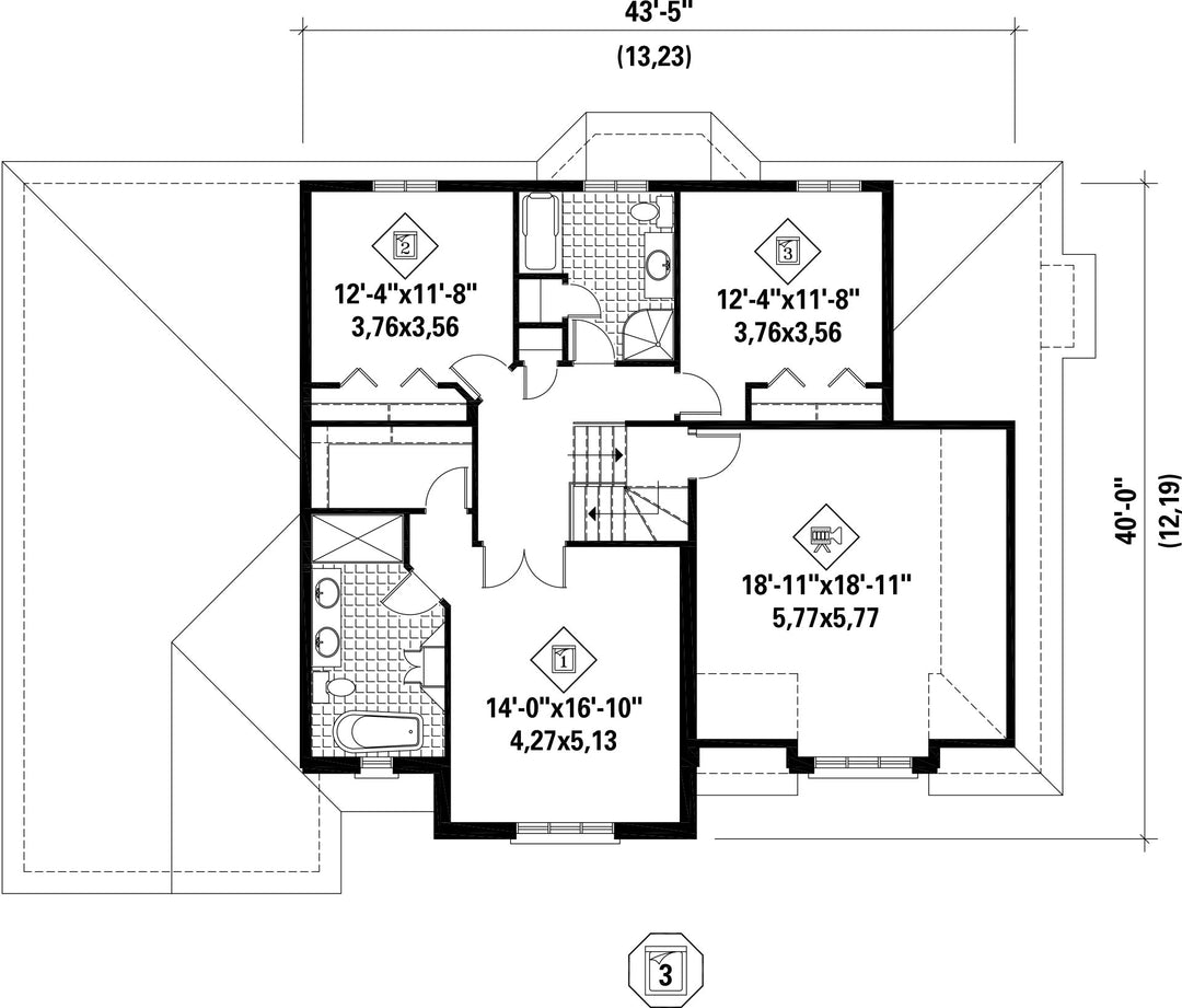
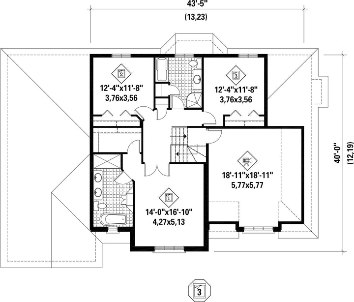
Providing 1,501 square feet of living space, the second floor includes a family bathroom and three bedrooms, one of which is the master bedroom with a large walk-in closet and private bathroom, as well as a home theater located above the garage.
The 1,992 square foot ground floor is divided in two distinct areas one of which includes a complete dwelling that has a bedroom, a bathroom and an open kitchen, dining room and living room. The other unit includes a living room with a fireplace, a powder room with a laundry area, a dining room, a large kitchen with an island and a breakfast nook, and a den with another fireplace. The bedrooms are on the upper floor.
Providing 1,501 square feet of living space, the second floor includes a family bathroom and three bedrooms, one of which is the master bedroom with a large walk-in closet and private bathroom, as well as a home theater located above the garage.
Additional info
Measurements: Imperial| House style | European |
Construction price
Approximate amount equivalent to what it would cost to have a general contractor (Montreal's South Shore region) build a similar home, excluding the lot and the infrastructure.
|
759566 $ |
|---|---|---|---|
| Front | 62 ft | Total living surface | 3493 ft² |
| Depth | 42 ft | Bathrooms | 3 |
| Height | 37 ft 4 in | Bedrooms | 4 |
| Master bedroom | Walk in | ||
| First floor area | 1992 ft² | Exterior walls | Aluminum + Stone + Fish scale covering |
| Second floor area | 1501 ft² | Kitchen | L shaped |
| Garage area | 441 ft² | Garages | 2 |
| Garage wall | 8 ft | First floor wall | 9 ft |
| Second floor wall | 8 ft | Front/back roof slope | 12/12 |
| Left/right roof slope | 12/12 |
| House style | European |
|---|---|
|
Construction price
Approximate amount equivalent to what it would cost to have a general contractor (Montreal's South Shore region) build a similar home, excluding the lot and the infrastructure.
|
759566 $ |
| Front | 62 ft |
| Total living surface | 3493 ft² |
| Depth | 42 ft |
| Bathrooms | 3 |
| Height | 37 ft 4 in |
| Bedrooms | 4 |
| Master bedroom | Walk in |
| First floor area | 1992 ft² |
| Exterior walls | Aluminum + Stone + Fish scale covering |
| Second floor area | 1501 ft² |
| Kitchen | L shaped |
| Garage area | 441 ft² |
| Garages | 2 |
| Garage wall | 8 ft |
| First floor wall | 9 ft |
| Second floor wall | 8 ft |
| Front/back roof slope | 12/12 |
| Left/right roof slope | 12/12 |