Description
This stone housing project includes three units that provide 3,996 square feet of total living space. Behind a common entrance, each unit has its own private entrance and the floor layout is different in each dwelling.
The unit located in the basement includes a bathroom with a laundry area, a U-shaped kitchen, a dining room and a living room, as well as two bedrooms. The two other units occupy the ground floor and the upper floor. The one on the left is bigger than the one on the right.
The unit located in the left part of the house has a den and a cellar in the basement. The ground floor includes a closed entrance hall with a closet, a powder room with a laundry area, a large kitchen, and a large open living and dining room. The upper floor has a bathroom and three bedrooms.
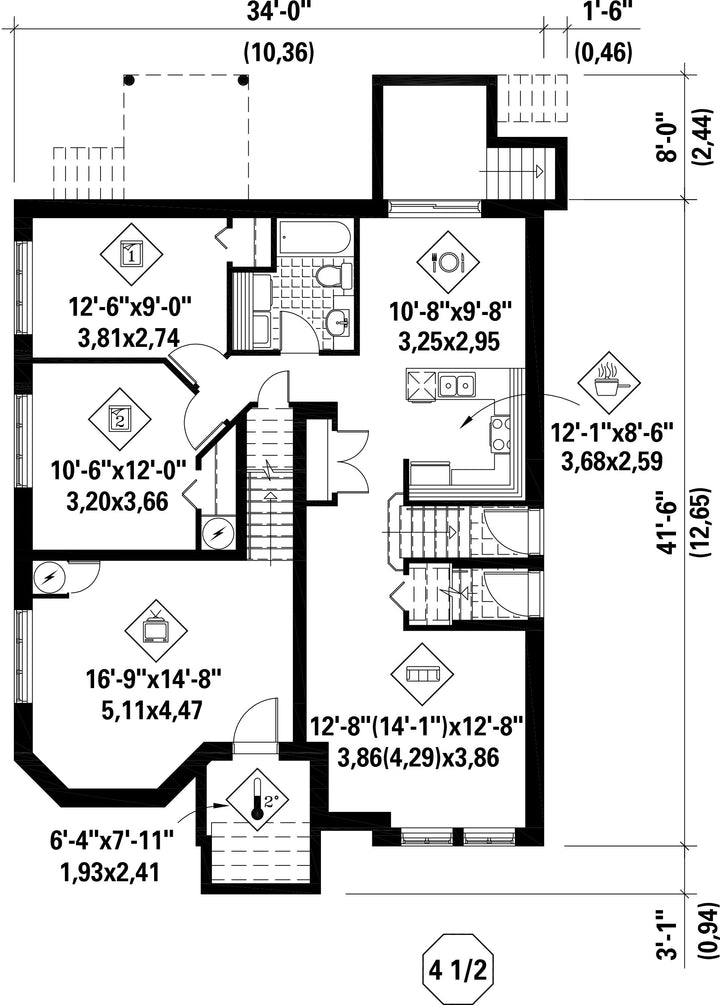
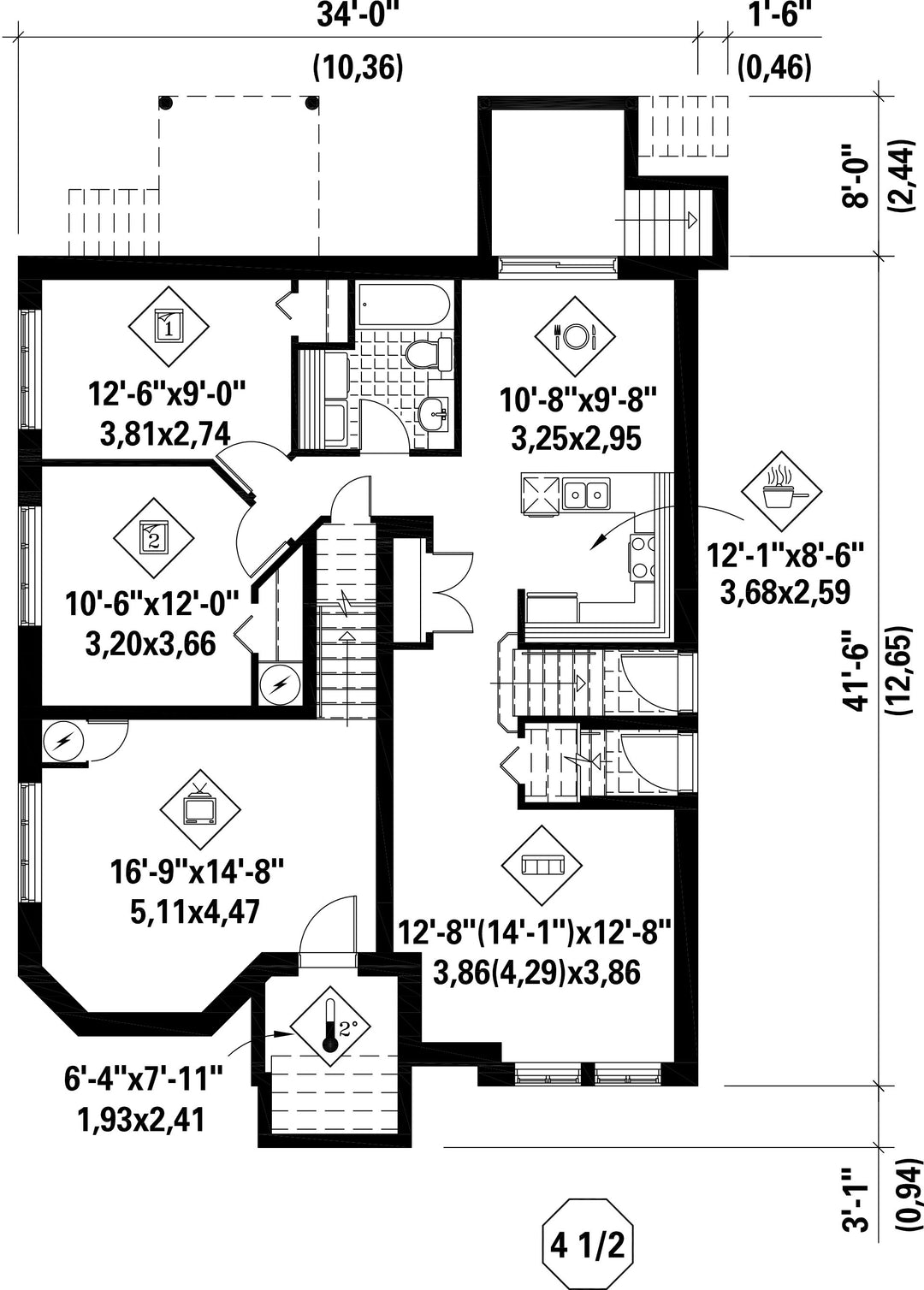
The ground floor of the unit located in the right part of the house includes a powder room, a living room, a U-shaped kitchen, and a dining room. The upper floor includes a bathroom, a large laundry area and two bedrooms.
The unit located in the basement includes a bathroom with a laundry area, a U-shaped kitchen, a dining room and a living room, as well as two bedrooms. The two other units occupy the ground floor and the upper floor. The one on the left is bigger than the one on the right.
The unit located in the left part of the house has a den and a cellar in the basement. The ground floor includes a closed entrance hall with a closet, a powder room with a laundry area, a large kitchen, and a large open living and dining room. The upper floor has a bathroom and three bedrooms.
The ground floor of the unit located in the right part of the house includes a powder room, a living room, a U-shaped kitchen, and a dining room. The upper floor includes a bathroom, a large laundry area and two bedrooms.
Additional info
Measurements: Imperial| House style | Manor |
Construction price
Approximate amount equivalent to what it would cost to have a general contractor (Montreal's South Shore region) build a similar home, excluding the lot and the infrastructure.
|
587430 $ |
|---|---|---|---|
| Front | 34 ft | Total living surface | 3996 ft² |
| Depth | 41 ft 6 in | Bathrooms | 3 |
| Height | 37 ft 5 in | Bedrooms | 7 |
| Master bedroom - comments | --- | ||
| First floor area | 1332 ft² | Exterior walls | Aluminum + Brick |
| Second floor area | 1332 ft² | Kitchen | U shaped |
| Garages | 0 | ||
| First floor wall | 8 ft | ||
| Second floor wall | 8 ft | Front/back roof slope | 9/12 |
| Left/right roof slope | 14/12 | Basement area | 1332 ft² |
| House style | Manor |
|---|---|
|
Construction price
Approximate amount equivalent to what it would cost to have a general contractor (Montreal's South Shore region) build a similar home, excluding the lot and the infrastructure.
|
587430 $ |
| Front | 34 ft |
| Total living surface | 3996 ft² |
| Depth | 41 ft 6 in |
| Bathrooms | 3 |
| Height | 37 ft 5 in |
| Bedrooms | 7 |
| Master bedroom - comments | --- |
| First floor area | 1332 ft² |
| Exterior walls | Aluminum + Brick |
| Second floor area | 1332 ft² |
| Kitchen | U shaped |
| Garages | 0 |
| First floor wall | 8 ft |
| Second floor wall | 8 ft |
| Front/back roof slope | 9/12 |
| Left/right roof slope | 14/12 |
| Basement area | 1332 ft² |