Description
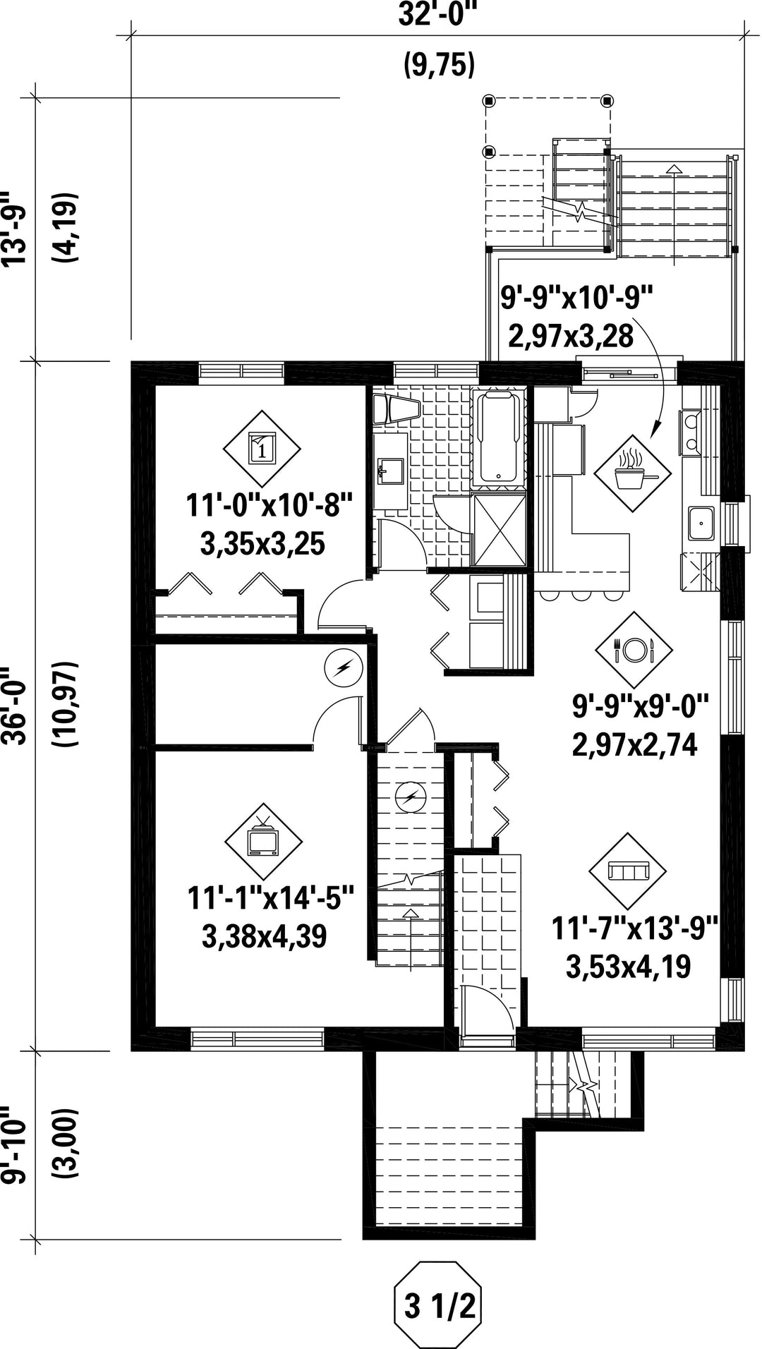
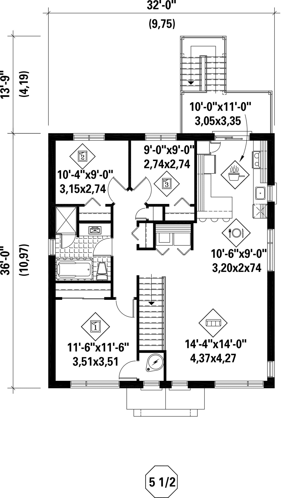
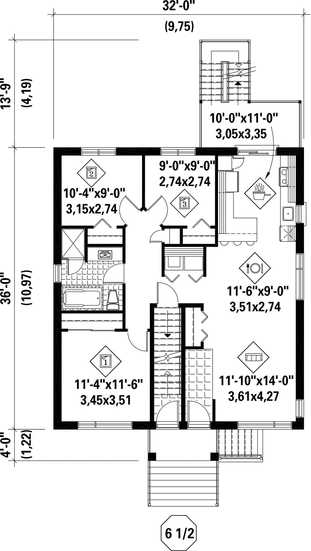
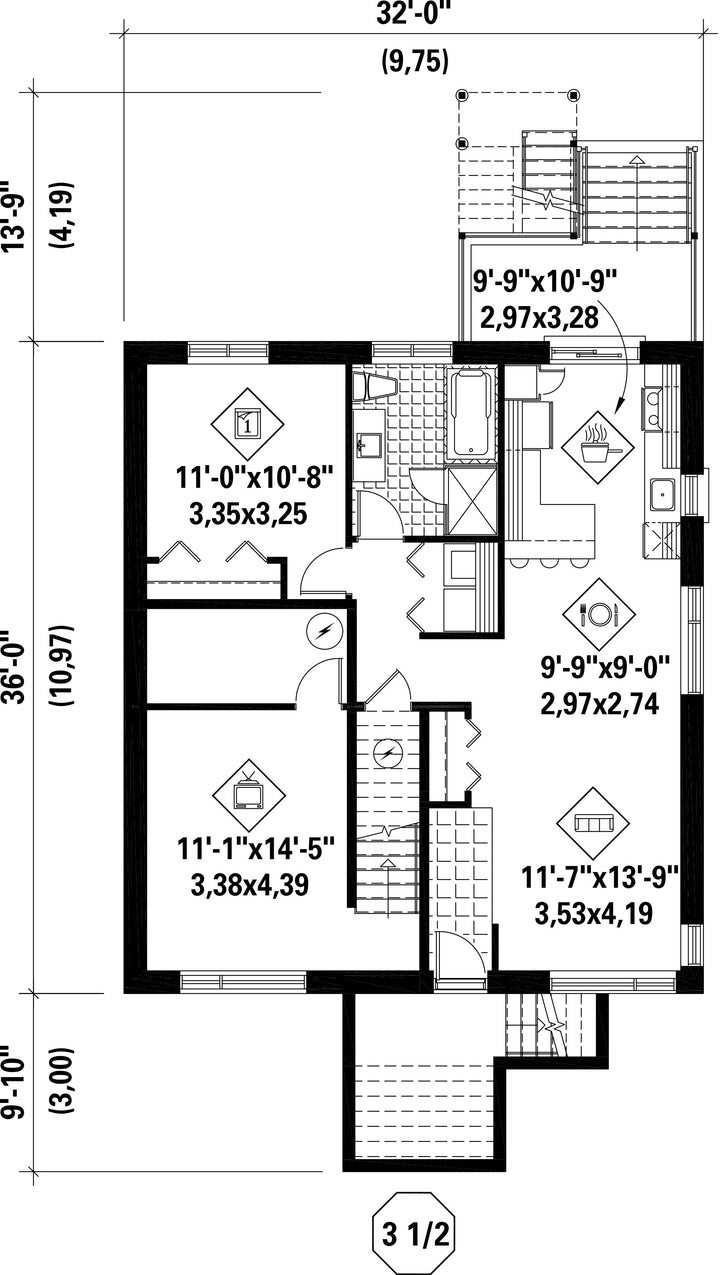
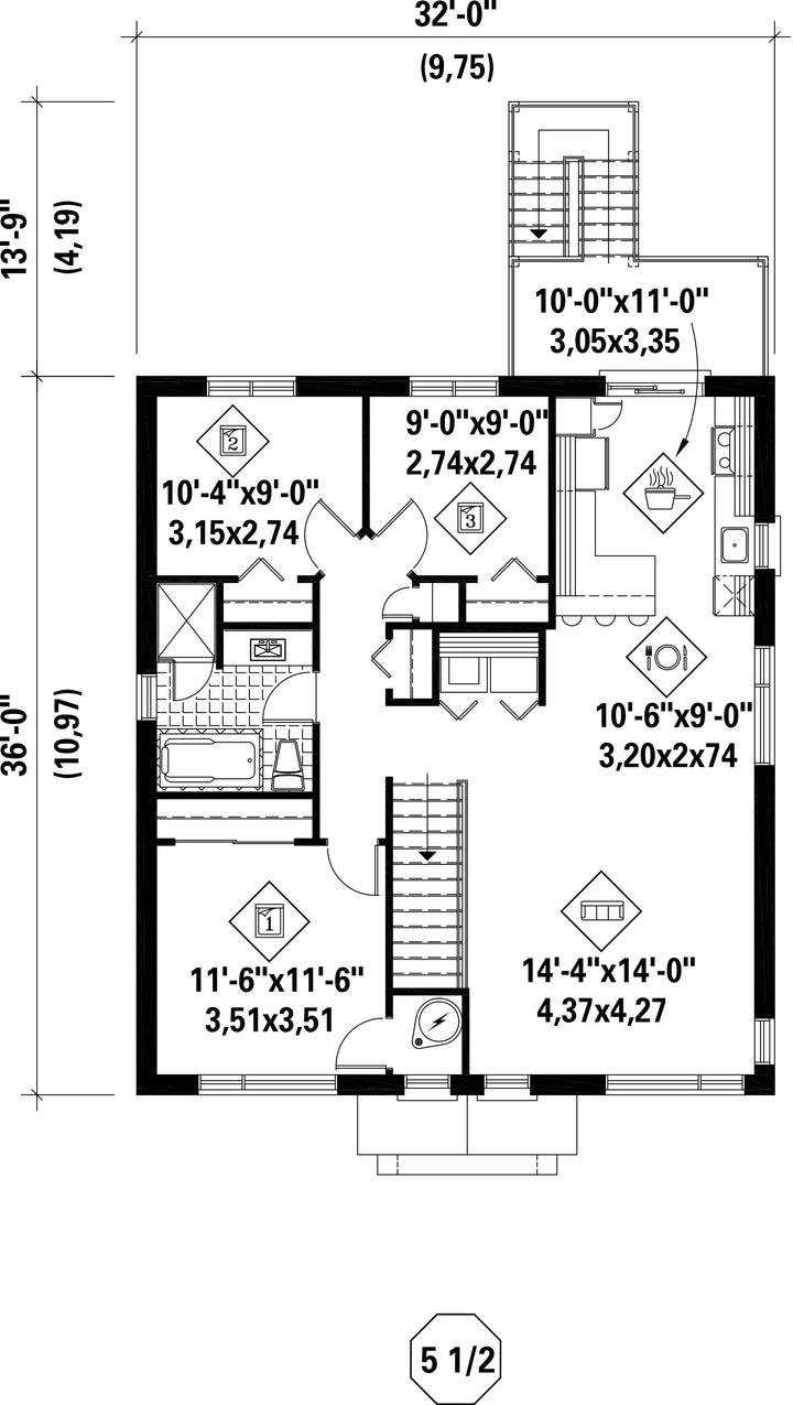
This urban triplex with the brick and concrete facade consists of three apartments – one with three and a half rooms, one with six and a half rooms, and one with five and a half rooms – and provides a total of 3,456 square feet of living space.
Each open concept unit has a back balcony accessible through the kitchen. The three and a half room apartment includes a kitchen with a lunch counter, a dining room, a living room, a bathroom, a laundry closet, and a bedroom. The five and a half room apartment has the same rooms, but includes three bedrooms. The six and a half room apartment has an additional room in the basement.
Additional info
Measurements: Imperial| House style | Urban |
Construction price
Approximate amount equivalent to what it would cost to have a general contractor (Montreal's South Shore region) build a similar home, excluding the lot and the infrastructure.
|
491904 $ |
|---|---|---|---|
| Front | 32 ft | Total living surface | 3456 ft² |
| Depth | 36 ft | Bathrooms | 3 |
| Height | 32 ft 10 in | Bedrooms | 7 |
| Master bedroom | N / A | ||
| First floor area | 1152 ft² | Exterior walls | Brick + Stone |
| Second floor area | 1152 ft² | Kitchen | Meal counter + U-shape |
| Garages | 0 | ||
| First floor wall | 8 ft | ||
| Second floor wall | 8 ft | Front/back roof slope | 6/12 |
| Left/right roof slope | 6/12 | Basement area | 1152 ft² |
| House style | Urban |
|---|---|
|
Construction price
Approximate amount equivalent to what it would cost to have a general contractor (Montreal's South Shore region) build a similar home, excluding the lot and the infrastructure.
|
491904 $ |
| Front | 32 ft |
| Total living surface | 3456 ft² |
| Depth | 36 ft |
| Bathrooms | 3 |
| Height | 32 ft 10 in |
| Bedrooms | 7 |
| Master bedroom | N / A |
| First floor area | 1152 ft² |
| Exterior walls | Brick + Stone |
| Second floor area | 1152 ft² |
| Kitchen | Meal counter + U-shape |
| Garages | 0 |
| First floor wall | 8 ft |
| Second floor wall | 8 ft |
| Front/back roof slope | 6/12 |
| Left/right roof slope | 6/12 |
| Basement area | 1152 ft² |