Description
This multiple-housing unit features two semi-detached two-storey houses that each provide 1,210.5 square feet of living space. The surface area of the floors is identical in both units, that is 600 square feet for the ground floor and 610.5 square feet for the upper floor.
The ground floor of each house includes an open entrance hall, an open dining room and kitchen, and a powder room with a laundry area.
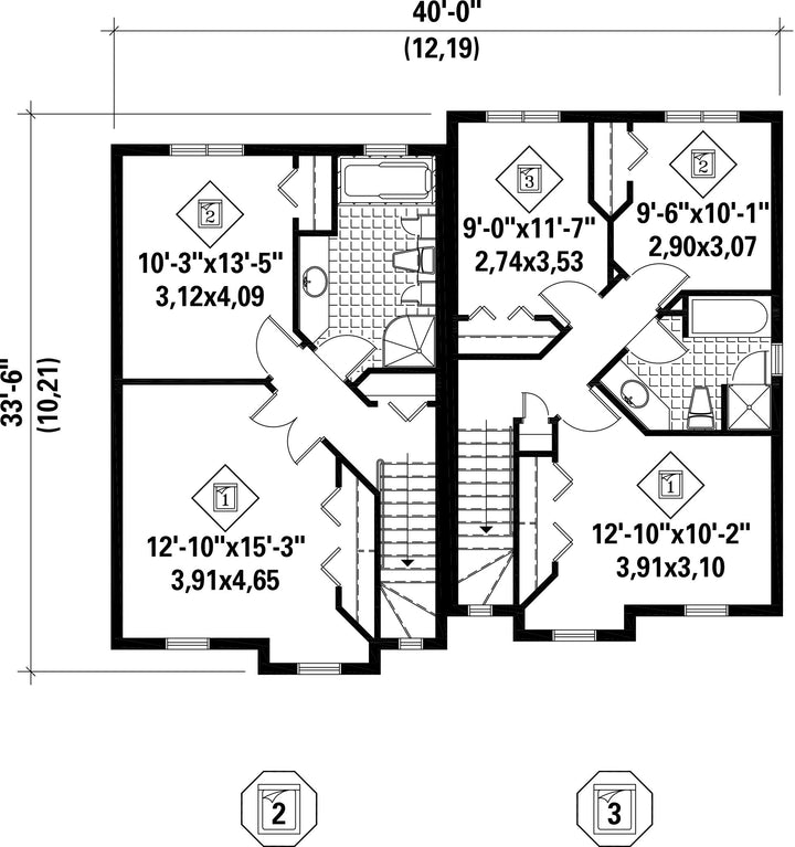
The upper floor of the left house has a large bathroom and two bedrooms.
The upper floor of the right house includes a bathroom and three bedrooms.
The ground floor of each house includes an open entrance hall, an open dining room and kitchen, and a powder room with a laundry area.
The upper floor of the left house has a large bathroom and two bedrooms.
The upper floor of the right house includes a bathroom and three bedrooms.
Additional info
Measurements: Imperial| House style | Urban |
Construction price
Approximate amount equivalent to what it would cost to have a general contractor (Montreal's South Shore region) build a similar home, excluding the lot and the infrastructure.
|
487468 $ |
|---|---|---|---|
| Front | 40 ft | Total living surface | 2421 ft² |
| Depth | 32 ft | Bathrooms | 2 |
| Height | 30 ft 4 in | Bedrooms | 5 |
| Master bedroom | N / A | ||
| First floor area | 1200 ft² | Exterior walls | Aluminum |
| Second floor area | 1221 ft² | Kitchen | U-shaped + Dining room |
| Garages | 0 | ||
| First floor wall | 8 ft | ||
| Second floor wall | 8 ft | Front/back roof slope | 8/12 |
| Left/right roof slope | 8/12 |
| House style | Urban |
|---|---|
|
Construction price
Approximate amount equivalent to what it would cost to have a general contractor (Montreal's South Shore region) build a similar home, excluding the lot and the infrastructure.
|
487468 $ |
| Front | 40 ft |
| Total living surface | 2421 ft² |
| Depth | 32 ft |
| Bathrooms | 2 |
| Height | 30 ft 4 in |
| Bedrooms | 5 |
| Master bedroom | N / A |
| First floor area | 1200 ft² |
| Exterior walls | Aluminum |
| Second floor area | 1221 ft² |
| Kitchen | U-shaped + Dining room |
| Garages | 0 |
| First floor wall | 8 ft |
| Second floor wall | 8 ft |
| Front/back roof slope | 8/12 |
| Left/right roof slope | 8/12 |