Description
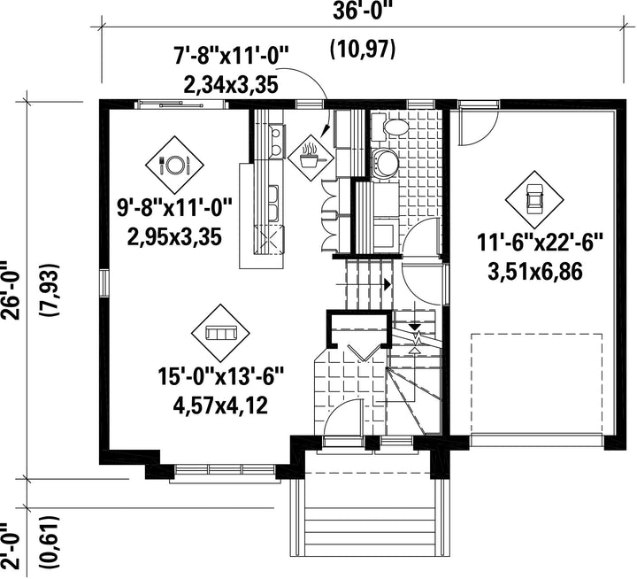
This superb urban style two-storey house is 36 feet wide by 26 feet deep and provides a 1,461 square foot living area in addition to a 288 square foot one-car garage.
The open area on the ground floor has 601 square feet of living space and includes a living room, a kitchen with a lunch counter, a dining room, and a powder room with a laundry area.
The upper floor has an 860 square foot living area and includes three bedrooms, a bathroom and a room located above the garage that can be used as a home theater.
The open area on the ground floor has 601 square feet of living space and includes a living room, a kitchen with a lunch counter, a dining room, and a powder room with a laundry area.
The upper floor has an 860 square foot living area and includes three bedrooms, a bathroom and a room located above the garage that can be used as a home theater.
Additional info
Measurements: Imperial| House style | Urban |
Construction price
Approximate amount equivalent to what it would cost to have a general contractor (Montreal's South Shore region) build a similar home, excluding the lot and the infrastructure.
|
314687 $ |
|---|---|---|---|
| Front | 36 ft | Total living surface | 1461 ft² |
| Depth | 26 ft | Bathrooms | 1 |
| Height | 29 ft 6 in | Bedrooms | 3 |
| Master bedroom | N / A | ||
| First floor area | 601 ft² | Exterior walls | Aluminum + Wood + Brick + Stone |
| Second floor area | 860 ft² | Kitchen | Meal counter + Laboratory |
| Garage area | 288 ft² | Garages | 1 |
| Garage wall | 8 ft | First floor wall | 8 ft |
| Second floor wall | 8 ft | Front/back roof slope | 7/12 |
| Left/right roof slope | 7/12 |
| House style | Urban |
|---|---|
|
Construction price
Approximate amount equivalent to what it would cost to have a general contractor (Montreal's South Shore region) build a similar home, excluding the lot and the infrastructure.
|
314687 $ |
| Front | 36 ft |
| Total living surface | 1461 ft² |
| Depth | 26 ft |
| Bathrooms | 1 |
| Height | 29 ft 6 in |
| Bedrooms | 3 |
| Master bedroom | N / A |
| First floor area | 601 ft² |
| Exterior walls | Aluminum + Wood + Brick + Stone |
| Second floor area | 860 ft² |
| Kitchen | Meal counter + Laboratory |
| Garage area | 288 ft² |
| Garages | 1 |
| Garage wall | 8 ft |
| First floor wall | 8 ft |
| Second floor wall | 8 ft |
| Front/back roof slope | 7/12 |
| Left/right roof slope | 7/12 |