Description
This two-storey house stands out with its flat roof porch, its brick and aluminum facing and its urban style. It is 34 feet wide by 32 feet deep and offers a 1,652 square foot living area in addition to a 288 square foot one-car garage.
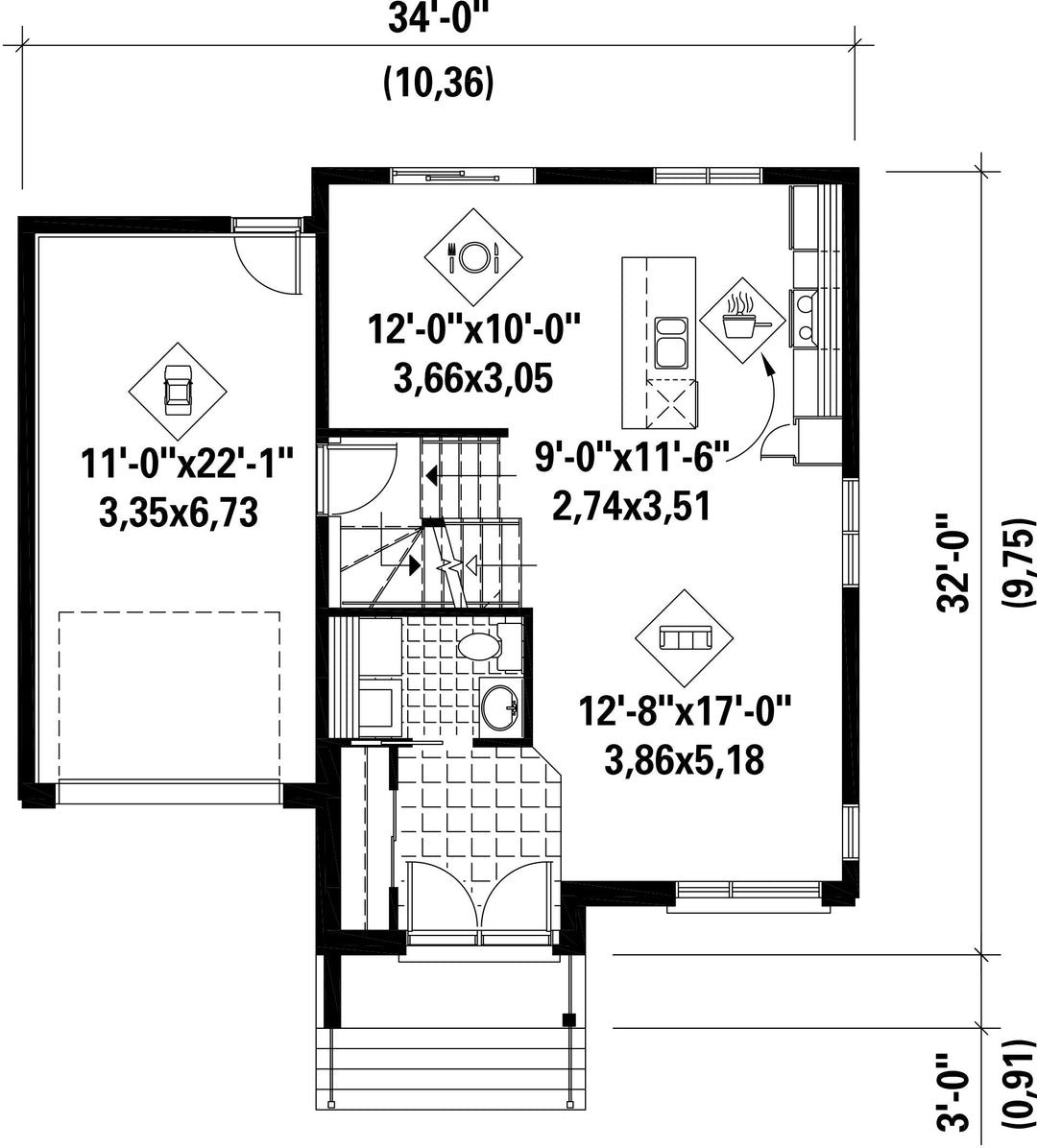
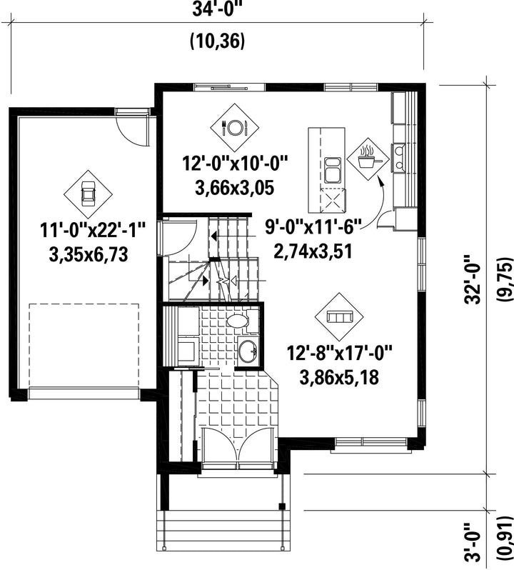
With 682 square feet of living space, the ground floor features a powder room with a laundry area, a living room, a dining room, as well as an open kitchen with an island and a lunch counter.
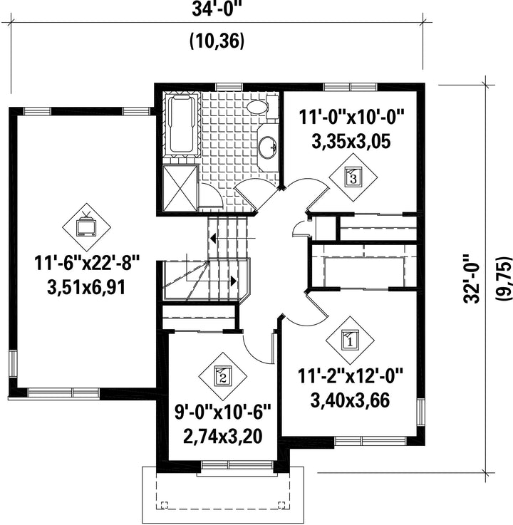
The upper floor has a 970 square foot living area and includes a family room located above the garage, three bedrooms and a bathroom.
With 682 square feet of living space, the ground floor features a powder room with a laundry area, a living room, a dining room, as well as an open kitchen with an island and a lunch counter.
The upper floor has a 970 square foot living area and includes a family room located above the garage, three bedrooms and a bathroom.
Additional info
Measurements: Imperial| House style | Urban |
Construction price
Approximate amount equivalent to what it would cost to have a general contractor (Montreal's South Shore region) build a similar home, excluding the lot and the infrastructure.
|
345580 $ |
|---|---|---|---|
| Front | 34 ft | Total living surface | 1652 ft² |
| Depth | 32 ft | Bathrooms | 1 |
| Height | 30 ft 8 in | Bedrooms | 3 |
| Master bedroom | Wardrobe | ||
| First floor area | 682 ft² | Exterior walls | Aluminum + Brick |
| Second floor area | 970 ft² | Kitchen | Meal counter + Laboratory + Island |
| Garage area | 288 ft² | Garages | 1 |
| Garage wall | 8 ft | First floor wall | 8 ft |
| Second floor wall | 8 ft | Front/back roof slope | 8/12 |
| Left/right roof slope | 8/12 |
| House style | Urban |
|---|---|
|
Construction price
Approximate amount equivalent to what it would cost to have a general contractor (Montreal's South Shore region) build a similar home, excluding the lot and the infrastructure.
|
345580 $ |
| Front | 34 ft |
| Total living surface | 1652 ft² |
| Depth | 32 ft |
| Bathrooms | 1 |
| Height | 30 ft 8 in |
| Bedrooms | 3 |
| Master bedroom | Wardrobe |
| First floor area | 682 ft² |
| Exterior walls | Aluminum + Brick |
| Second floor area | 970 ft² |
| Kitchen | Meal counter + Laboratory + Island |
| Garage area | 288 ft² |
| Garages | 1 |
| Garage wall | 8 ft |
| First floor wall | 8 ft |
| Second floor wall | 8 ft |
| Front/back roof slope | 8/12 |
| Left/right roof slope | 8/12 |