Description
With a large corner veranda, this striking two-storey house is 52 feet wide by 42 feet deep and provides 2,701 square feet of living space.
Boasting a 1,282 square foot living area, the ground floor features a closed entrance hall, a powder room with a laundry area, a living room, a dining room, and a kitchen with an island and a breakfast nook located next to a family room. There is also a 459 square foot two-car garage.
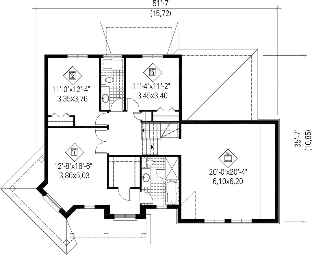
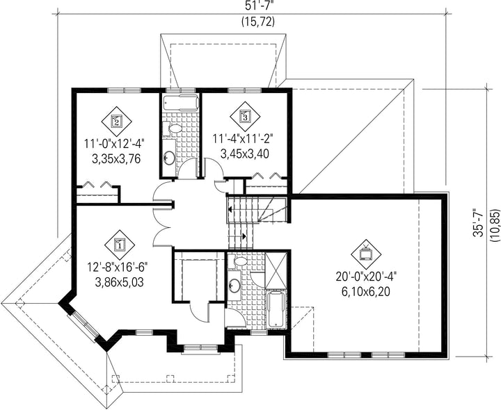
The second floor covers 1,419 square feet and consists of a family bathroom, three bedrooms, including a master bedroom with a large walk-in closet and a private bathroom, as well as large room above the garage that can be used as a home theatre.
Boasting a 1,282 square foot living area, the ground floor features a closed entrance hall, a powder room with a laundry area, a living room, a dining room, and a kitchen with an island and a breakfast nook located next to a family room. There is also a 459 square foot two-car garage.
The second floor covers 1,419 square feet and consists of a family bathroom, three bedrooms, including a master bedroom with a large walk-in closet and a private bathroom, as well as large room above the garage that can be used as a home theatre.
Additional info
Measurements: Imperial| House style | Country |
Construction price
Approximate amount equivalent to what it would cost to have a general contractor (Montreal's South Shore region) build a similar home, excluding the lot and the infrastructure.
|
619437 $ |
|---|---|---|---|
| Front | 52 ft | Total living surface | 2701 ft² |
| Depth | 42 ft | Bathrooms | 2 |
| Height | 38 ft 4 in | Bedrooms | 3 |
| Master bedroom | Bathtub + Shower + Simple sink + Walk in + Double doors + Toilet | ||
| First floor area | 1282 ft² | Exterior walls | Aluminum + Stone |
| Second floor area | 1419 ft² | Kitchen | Nook + Snack + Dining room + Island |
| Garage area | 459 ft² | Garages | 2 |
| Garage wall | 8 ft | First floor wall | 9 ft |
| Second floor wall | 8 ft | Front/back roof slope | 12/12 |
| Left/right roof slope | 12/12 |
| House style | Country |
|---|---|
|
Construction price
Approximate amount equivalent to what it would cost to have a general contractor (Montreal's South Shore region) build a similar home, excluding the lot and the infrastructure.
|
619437 $ |
| Front | 52 ft |
| Total living surface | 2701 ft² |
| Depth | 42 ft |
| Bathrooms | 2 |
| Height | 38 ft 4 in |
| Bedrooms | 3 |
| Master bedroom | Bathtub + Shower + Simple sink + Walk in + Double doors + Toilet |
| First floor area | 1282 ft² |
| Exterior walls | Aluminum + Stone |
| Second floor area | 1419 ft² |
| Kitchen | Nook + Snack + Dining room + Island |
| Garage area | 459 ft² |
| Garages | 2 |
| Garage wall | 8 ft |
| First floor wall | 9 ft |
| Second floor wall | 8 ft |
| Front/back roof slope | 12/12 |
| Left/right roof slope | 12/12 |