Description
With its brick, stone and wood siding, this two-storey house truly reflects its positively modern style. The house is 46 feet 10 inches wide by 43 feet 6 inches deep, provides 2,423 square feet of living space, and has a covered terrace in the back along with a 646 square-foot two-car garage with a workshop area.
Covering a 1,116 square-foot living area, the open ground floor has 9-foot high ceilings. It features a large closed entrance hall, an office, a powder room, a living room with a gas fireplace and a dining room, a U-shaped kitchen with an island that can accommodate four people and a large pantry.
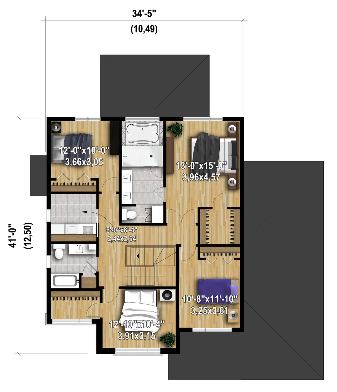
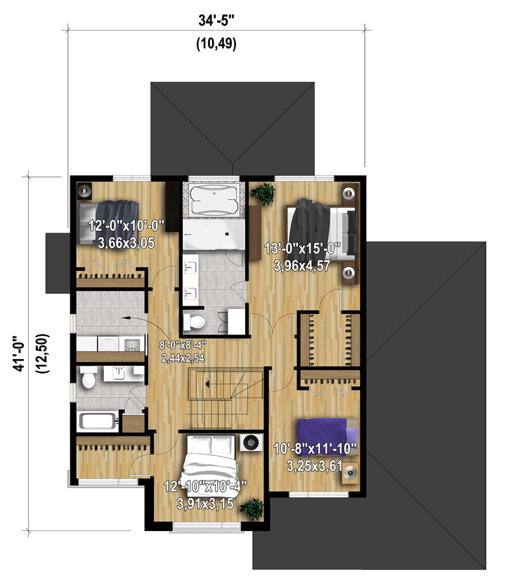
The upper floor provides 1,307 square feet of living space and features a large laundry room, a family bathroom, and four bedrooms, including a master bedroom with a walk-in closet and a spacious private bathroom.
Covering a 1,116 square-foot living area, the open ground floor has 9-foot high ceilings. It features a large closed entrance hall, an office, a powder room, a living room with a gas fireplace and a dining room, a U-shaped kitchen with an island that can accommodate four people and a large pantry.
The upper floor provides 1,307 square feet of living space and features a large laundry room, a family bathroom, and four bedrooms, including a master bedroom with a walk-in closet and a spacious private bathroom.
Additional info
Measurements: Imperial| House style | Urban |
Construction price
Approximate amount equivalent to what it would cost to have a general contractor (Montreal's South Shore region) build a similar home, excluding the lot and the infrastructure.
|
578185 $ |
|---|---|---|---|
| Front | 46 ft 10 in | Total living surface | 2423 ft² |
| Depth | 43 ft 6 in | Bathrooms | 2 |
| Height | 33 ft | Bedrooms | 4 |
| Master bedroom | Bathtub + Shower + Double sink + Wardrobe + Double doors + Toilet | ||
| First floor area | 1116 ft² | Exterior walls | Aluminum + Wood + Brick + Stone |
| Second floor area | 1307 ft² | Kitchen | U-shape + Island |
| Garage area | 646 ft² | Garages | 2 |
| Garage wall | 8 ft | First floor wall | 9 ft |
| Second floor wall | 8 ft | Front/back roof slope | 6/12 |
| Left/right roof slope | 6/12 |
| House style | Urban |
|---|---|
|
Construction price
Approximate amount equivalent to what it would cost to have a general contractor (Montreal's South Shore region) build a similar home, excluding the lot and the infrastructure.
|
578185 $ |
| Front | 46 ft 10 in |
| Total living surface | 2423 ft² |
| Depth | 43 ft 6 in |
| Bathrooms | 2 |
| Height | 33 ft |
| Bedrooms | 4 |
| Master bedroom | Bathtub + Shower + Double sink + Wardrobe + Double doors + Toilet |
| First floor area | 1116 ft² |
| Exterior walls | Aluminum + Wood + Brick + Stone |
| Second floor area | 1307 ft² |
| Kitchen | U-shape + Island |
| Garage area | 646 ft² |
| Garages | 2 |
| Garage wall | 8 ft |
| First floor wall | 9 ft |
| Second floor wall | 8 ft |
| Front/back roof slope | 6/12 |
| Left/right roof slope | 6/12 |