Description
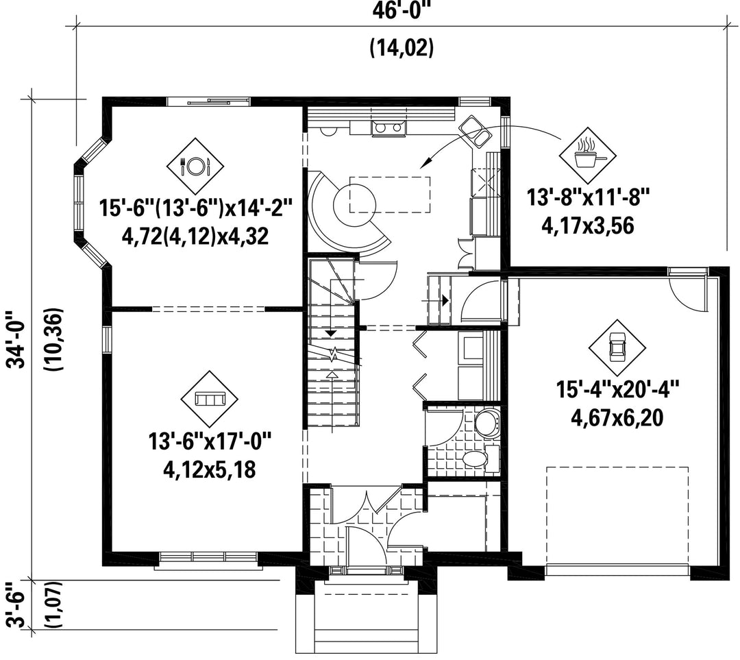
This lovely two-storey house is 46 feet wide by 34 feet deep and provides a 1,927 square foot living area in addition to a 341 square foot one-car garage.
With 926 square feet of living space, the ground floor features an entrance hall with a large closet, a powder room with a laundry area, a living room, a dining room, as well as a kitchen that can be equipped with a bench or an island. All the ceilings are nine feet high.
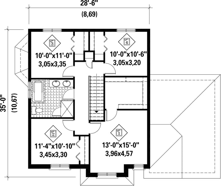
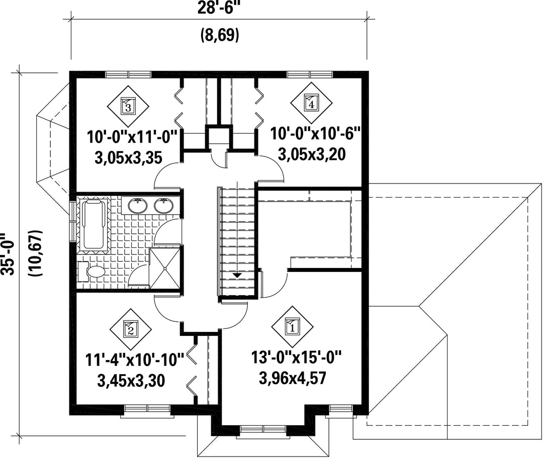
The upper floor has a 961 square foot living area and includes a spacious master bedroom with a large walk-in closet, three other bedrooms and a bathroom.
With 926 square feet of living space, the ground floor features an entrance hall with a large closet, a powder room with a laundry area, a living room, a dining room, as well as a kitchen that can be equipped with a bench or an island. All the ceilings are nine feet high.
The upper floor has a 961 square foot living area and includes a spacious master bedroom with a large walk-in closet, three other bedrooms and a bathroom.
Additional info
Measurements: Imperial| House style | European |
Construction price
Approximate amount equivalent to what it would cost to have a general contractor (Montreal's South Shore region) build a similar home, excluding the lot and the infrastructure.
|
444392 $ |
|---|---|---|---|
| Front | 46 ft | Total living surface | 1927 ft² |
| Depth | 34 ft | Bathrooms | 1 |
| Height | 38 ft 5 in | Bedrooms | 4 |
| Master bedroom | Wardrobe | ||
| First floor area | 966 ft² | Exterior walls | Aggregates + Brick + Stone |
| Second floor area | 961 ft² | Kitchen | L-shaped + Dining room |
| Garage area | 341 ft² | Garages | 1 |
| Garage wall | 8 ft | First floor wall | 9 ft |
| Second floor wall | 8 ft | Front/back roof slope | 12/12 |
| Left/right roof slope | 12/12 |
| House style | European |
|---|---|
|
Construction price
Approximate amount equivalent to what it would cost to have a general contractor (Montreal's South Shore region) build a similar home, excluding the lot and the infrastructure.
|
444392 $ |
| Front | 46 ft |
| Total living surface | 1927 ft² |
| Depth | 34 ft |
| Bathrooms | 1 |
| Height | 38 ft 5 in |
| Bedrooms | 4 |
| Master bedroom | Wardrobe |
| First floor area | 966 ft² |
| Exterior walls | Aggregates + Brick + Stone |
| Second floor area | 961 ft² |
| Kitchen | L-shaped + Dining room |
| Garage area | 341 ft² |
| Garages | 1 |
| Garage wall | 8 ft |
| First floor wall | 9 ft |
| Second floor wall | 8 ft |
| Front/back roof slope | 12/12 |
| Left/right roof slope | 12/12 |