Description
The modern stone and brick facing enhance the appearance of this urban style two-storey house. The home is 36 feet wide by 34 feet deep and provides 1,536 square feet of living space in addition to a 288 square foot one-car garage.
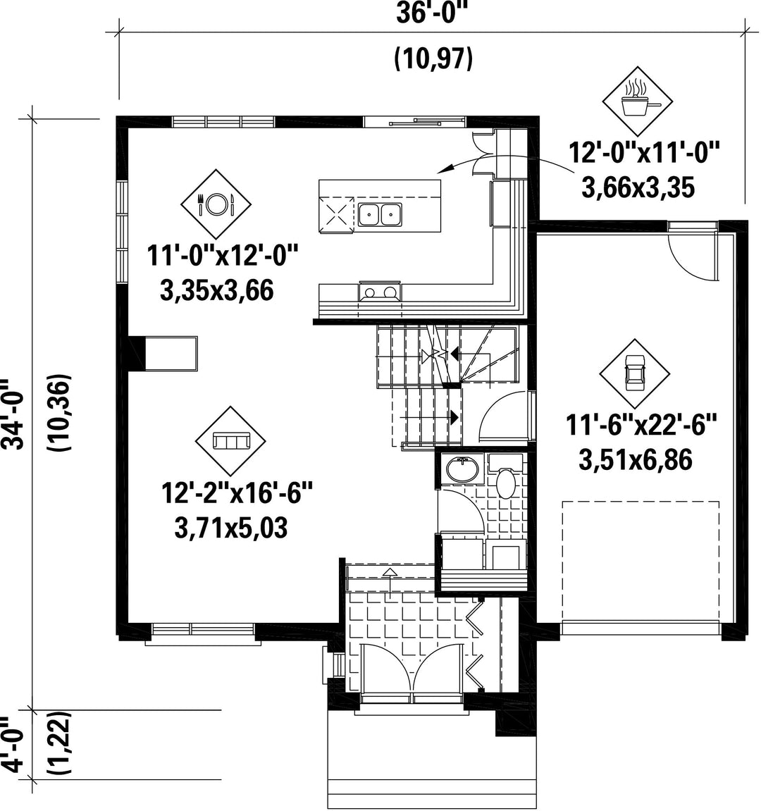
The ground floor has a 768 square foot living area and features a spacious entrance hall with an 11-foot high ceiling, a powder room with a laundry area, a large living room, a dining room, and a roomy kitchen with an island and a breakfast nook.
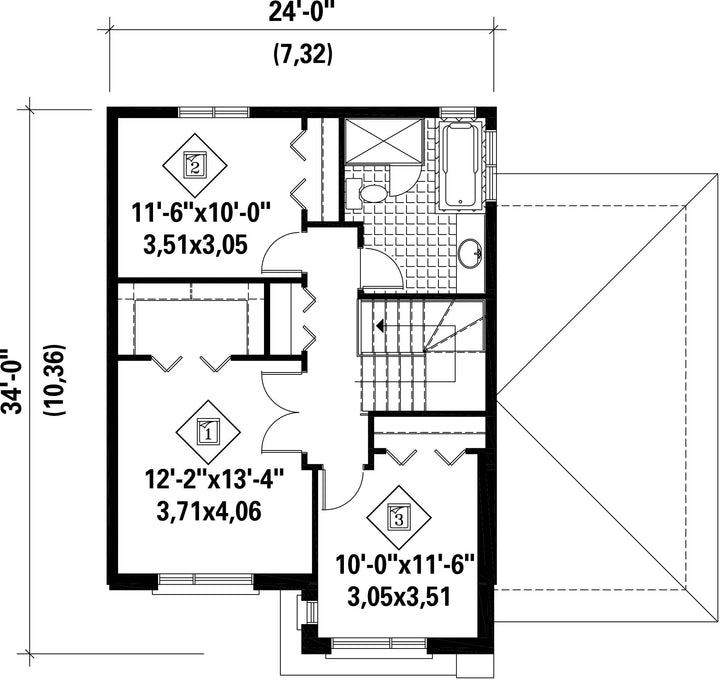
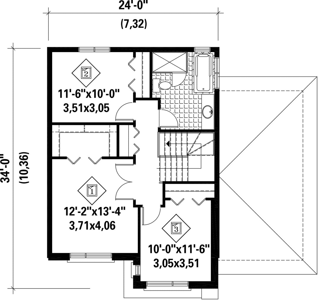
The upper floor provides 768 square feet of living space and features a master bedroom with French doors and a large walk-in closet, two other bedrooms and a bathroom.
The ground floor has a 768 square foot living area and features a spacious entrance hall with an 11-foot high ceiling, a powder room with a laundry area, a large living room, a dining room, and a roomy kitchen with an island and a breakfast nook.
The upper floor provides 768 square feet of living space and features a master bedroom with French doors and a large walk-in closet, two other bedrooms and a bathroom.
Additional info
Measurements: Imperial| House style | Urban |
Construction price
Approximate amount equivalent to what it would cost to have a general contractor (Montreal's South Shore region) build a similar home, excluding the lot and the infrastructure.
|
358439 $ |
|---|---|---|---|
| Front | 36 ft | Total living surface | 1536 ft² |
| Depth | 34 ft | Bathrooms | 1 |
| Height | 30 ft | Bedrooms | 3 |
| Master bedroom | Walk in + Double doors | ||
| First floor area | 768 ft² | Exterior walls | Aluminum + Brick + Stone |
| Second floor area | 768 ft² | Kitchen | Snack + Island |
| Garage area | 288 ft² | Garages | 1 |
| Garage wall | 8 ft | First floor wall | 9 ft |
| Second floor wall | 8 ft | Front/back roof slope | 6/12 |
| Left/right roof slope | 6/12 |
| House style | Urban |
|---|---|
|
Construction price
Approximate amount equivalent to what it would cost to have a general contractor (Montreal's South Shore region) build a similar home, excluding the lot and the infrastructure.
|
358439 $ |
| Front | 36 ft |
| Total living surface | 1536 ft² |
| Depth | 34 ft |
| Bathrooms | 1 |
| Height | 30 ft |
| Bedrooms | 3 |
| Master bedroom | Walk in + Double doors |
| First floor area | 768 ft² |
| Exterior walls | Aluminum + Brick + Stone |
| Second floor area | 768 ft² |
| Kitchen | Snack + Island |
| Garage area | 288 ft² |
| Garages | 1 |
| Garage wall | 8 ft |
| First floor wall | 9 ft |
| Second floor wall | 8 ft |
| Front/back roof slope | 6/12 |
| Left/right roof slope | 6/12 |