Description
This elegant two-storey house stands out with its brick facing on all four sides. It is 53 feet wide by 48 feet deep and offers a 3,128 square foot living area in addition to two one-car garages totaling 550 square feet.
The ground floor provides 1,481 square feet of living space and all the ceilings are nine feet high. It features a closed entrance hall, an open living and dining area, a kitchen with an island and a breakfast nook, a family room with a fireplace, a powder room and a laundry room.
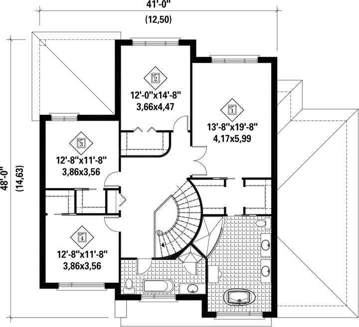
The upper floor has a 1,647 square foot living area and features a family bathroom and four bedrooms including a master bedroom with a large private bathroom located next to a huge walk-in closet.
The ground floor provides 1,481 square feet of living space and all the ceilings are nine feet high. It features a closed entrance hall, an open living and dining area, a kitchen with an island and a breakfast nook, a family room with a fireplace, a powder room and a laundry room.
The upper floor has a 1,647 square foot living area and features a family bathroom and four bedrooms including a master bedroom with a large private bathroom located next to a huge walk-in closet.
Additional info
Measurements: Imperial| House style | Urban |
Construction price
Approximate amount equivalent to what it would cost to have a general contractor (Montreal's South Shore region) build a similar home, excluding the lot and the infrastructure.
|
753382 $ |
|---|---|---|---|
| Front | 53 ft | Total living surface | 3128 ft² |
| Depth | 48 ft | Bathrooms | 2 |
| Height | 32 ft 11 in | Bedrooms | 4 |
| Master bedroom | Pedestal bath + Shower + Double sink + Wardrobe + Double doors + Toilet | ||
| First floor area | 1481 ft² | Exterior walls | Brick + Stone |
| Second floor area | 1647 ft² | Kitchen | Breakfast nook + Breakfast counter + Dining room + Island |
| Garage area | 550 ft² | Garages | 2 |
| Garage wall | 8 ft | First floor wall | 9 ft |
| Second floor wall | 8 ft | Front/back roof slope | 7/12 |
| Left/right roof slope | 7/12 |
| House style | Urban |
|---|---|
|
Construction price
Approximate amount equivalent to what it would cost to have a general contractor (Montreal's South Shore region) build a similar home, excluding the lot and the infrastructure.
|
753382 $ |
| Front | 53 ft |
| Total living surface | 3128 ft² |
| Depth | 48 ft |
| Bathrooms | 2 |
| Height | 32 ft 11 in |
| Bedrooms | 4 |
| Master bedroom | Pedestal bath + Shower + Double sink + Wardrobe + Double doors + Toilet |
| First floor area | 1481 ft² |
| Exterior walls | Brick + Stone |
| Second floor area | 1647 ft² |
| Kitchen | Breakfast nook + Breakfast counter + Dining room + Island |
| Garage area | 550 ft² |
| Garages | 2 |
| Garage wall | 8 ft |
| First floor wall | 9 ft |
| Second floor wall | 8 ft |
| Front/back roof slope | 7/12 |
| Left/right roof slope | 7/12 |