Description
The architectural details and veranda of this two-storey house define its country style. The home is 46 feet wide by 35 feet deep and provides 2,042 square feet of living space in addition to a 360 square foot one-car garage.
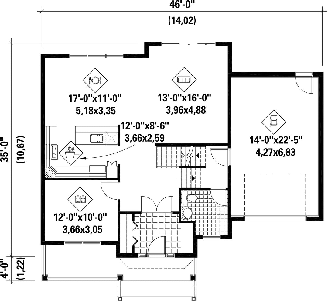
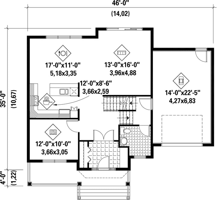
The ground floor has a 1,010 square foot living area and features an entrance hall with French doors, a powder room, a reading room, and a kitchen with a lunch counter, as well as an open living and dining area overlooking the back. All the ceilings are nine feet high.
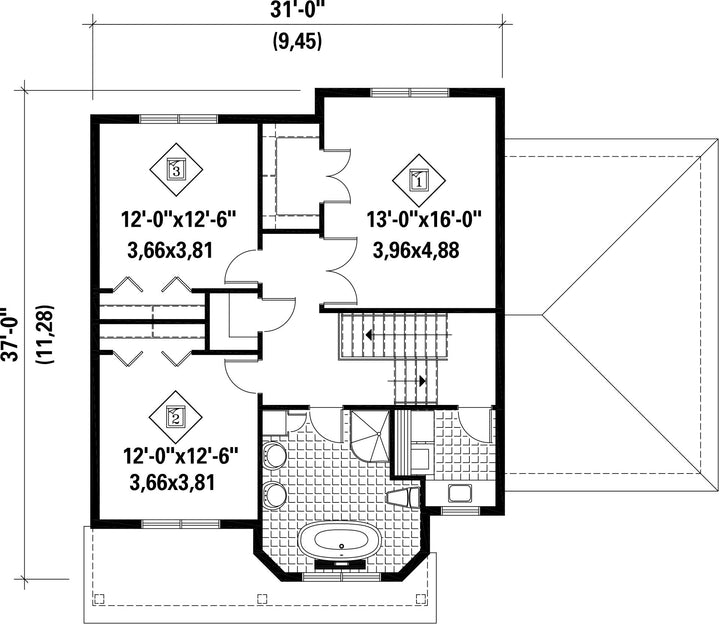
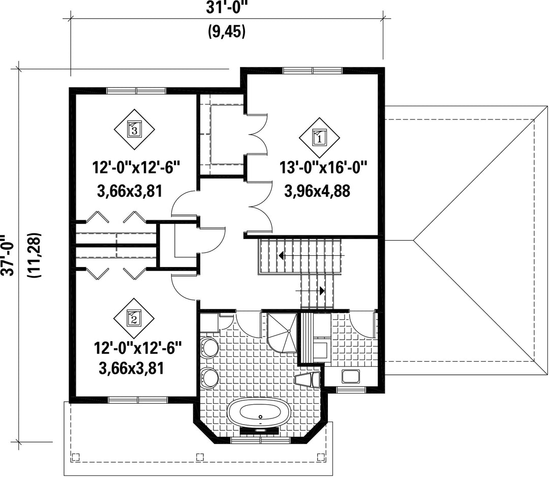
The upper floor provides 1,032 square feet of living space and features a laundry room with a sink, a spacious bathroom, and three bedrooms, including two that are identical, and a master bedroom with a large walk-in closet.
The ground floor has a 1,010 square foot living area and features an entrance hall with French doors, a powder room, a reading room, and a kitchen with a lunch counter, as well as an open living and dining area overlooking the back. All the ceilings are nine feet high.
The upper floor provides 1,032 square feet of living space and features a laundry room with a sink, a spacious bathroom, and three bedrooms, including two that are identical, and a master bedroom with a large walk-in closet.
Additional info
Measurements: Imperial| House style | Country |
Construction price
Approximate amount equivalent to what it would cost to have a general contractor (Montreal's South Shore region) build a similar home, excluding the lot and the infrastructure.
|
444008 $ |
|---|---|---|---|
| Front | 46 ft | Total living surface | 2042 ft² |
| Depth | 35 ft | Bathrooms | 1 |
| Height | 39 ft 4 in | Bedrooms | 3 |
| Master bedroom | Walk in + Double doors | ||
| First floor area | 1010 ft² | Exterior walls | Aluminum |
| Second floor area | 1032 ft² | Kitchen | Snack |
| Garage area | 360 ft² | Garages | 1 |
| Garage wall | 8 ft | First floor wall | 9 ft |
| Second floor wall | 8 ft | Front/back roof slope | 12/12 |
| Left/right roof slope | 12/12 |
| House style | Country |
|---|---|
|
Construction price
Approximate amount equivalent to what it would cost to have a general contractor (Montreal's South Shore region) build a similar home, excluding the lot and the infrastructure.
|
444008 $ |
| Front | 46 ft |
| Total living surface | 2042 ft² |
| Depth | 35 ft |
| Bathrooms | 1 |
| Height | 39 ft 4 in |
| Bedrooms | 3 |
| Master bedroom | Walk in + Double doors |
| First floor area | 1010 ft² |
| Exterior walls | Aluminum |
| Second floor area | 1032 ft² |
| Kitchen | Snack |
| Garage area | 360 ft² |
| Garages | 1 |
| Garage wall | 8 ft |
| First floor wall | 9 ft |
| Second floor wall | 8 ft |
| Front/back roof slope | 12/12 |
| Left/right roof slope | 12/12 |