20749
20749
20749
20749
20749
20749

20749


Sets of plans
Regular price$1,089.00
/

This site is protected by hCaptcha and the hCaptcha Privacy Policy and Terms of Service apply.

Description

NULL

Additional info

Measurements: Imperial

House style Rustic Construction price 
Approximate amount equivalent to what it would cost to have a general contractor (Montreal's South Shore region) build a similar home, excluding the lot and the infrastructure.
369458 $
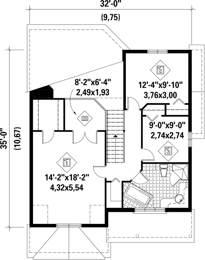
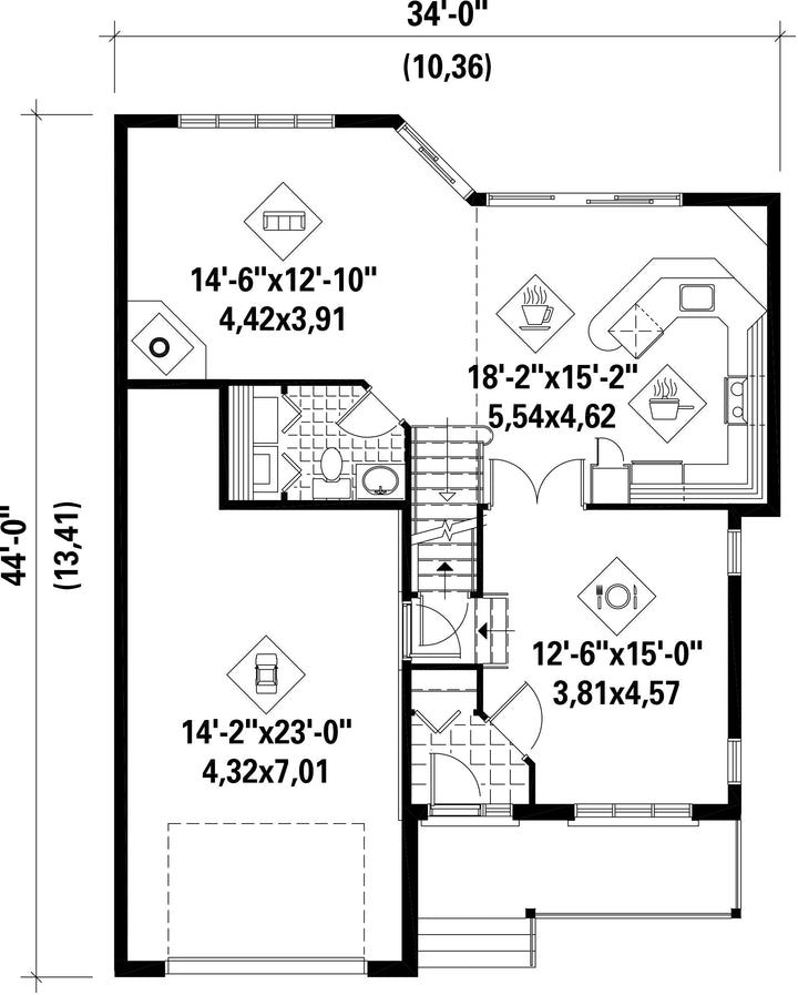
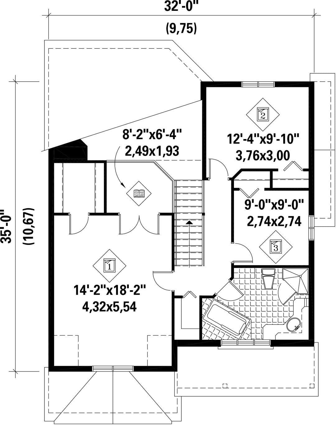
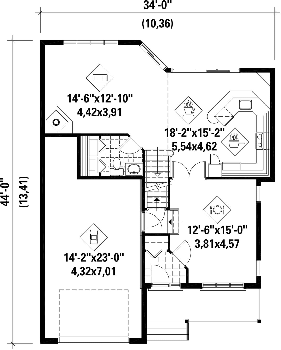
Front 34 ft Total living surface 1742 ft²
Depth 44 ftBathrooms 1
Height 29 ft 2 inBedrooms 3
Master bedroom Wardrobe
First floor area 858 ft² Exterior walls Aluminum + Brick
Second floor area 884 ft² Kitchen Dining area + Breakfast bar + L-shaped layout + Dining room
Garage area 389 ft² Garages 1
Garage wall 8 ftFirst floor wall 8 ft
Second floor wall 8 ftFront/back roof slope 6/12
House style Rustic
Construction price 
Approximate amount equivalent to what it would cost to have a general contractor (Montreal's South Shore region) build a similar home, excluding the lot and the infrastructure.
369458 $
Front 34 ft
Total living surface 1742 ft²
Depth 44 ft
Bathrooms 1
Height 29 ft 2 in
Bedrooms 3
Master bedroom Wardrobe
First floor area 858 ft²
Exterior walls Aluminum + Brick
Second floor area 884 ft²
Kitchen Dining area + Breakfast bar + L-shaped layout + Dining room
Garage area 389 ft²
Garages 1
Garage wall 8 ft
First floor wall 8 ft
Second floor wall 8 ft
Front/back roof slope 6/12

These house plans might also interest you


Recently viewed