Description
This attractive two-storey house features several architectural details such as a large front porch with decorative posts, roof gables of various dimensions and decorative moldings. The home is 43 feet 6 inches wide by 37 feet deep and provides 2,245 square feet of living space.
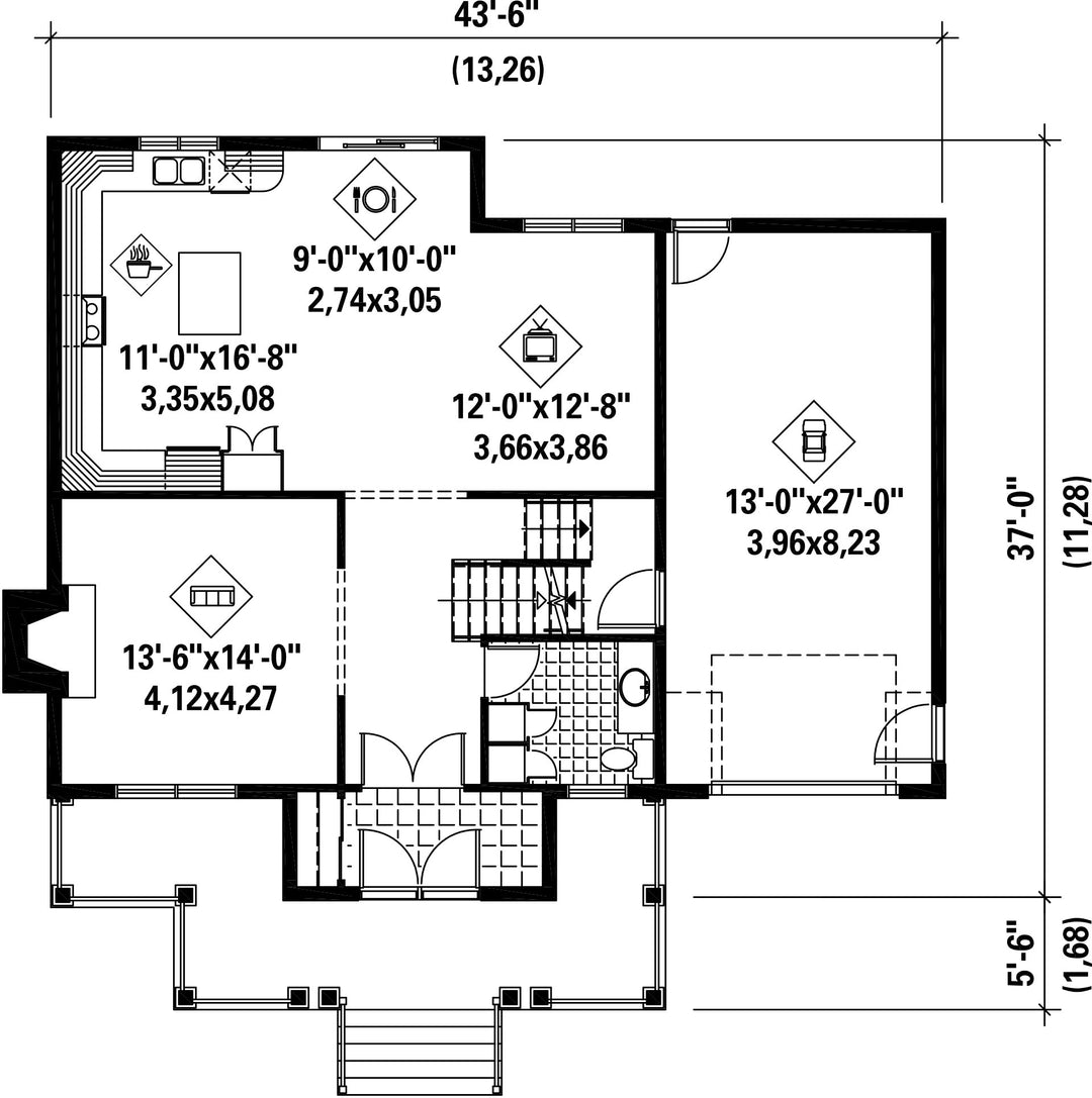
The ground floor covers 989 square feet and includes a large closed entrance hall, an open dining room and living room with a fireplace, a kitchen with an island, a powder room and a 378 square foot one-car garage.
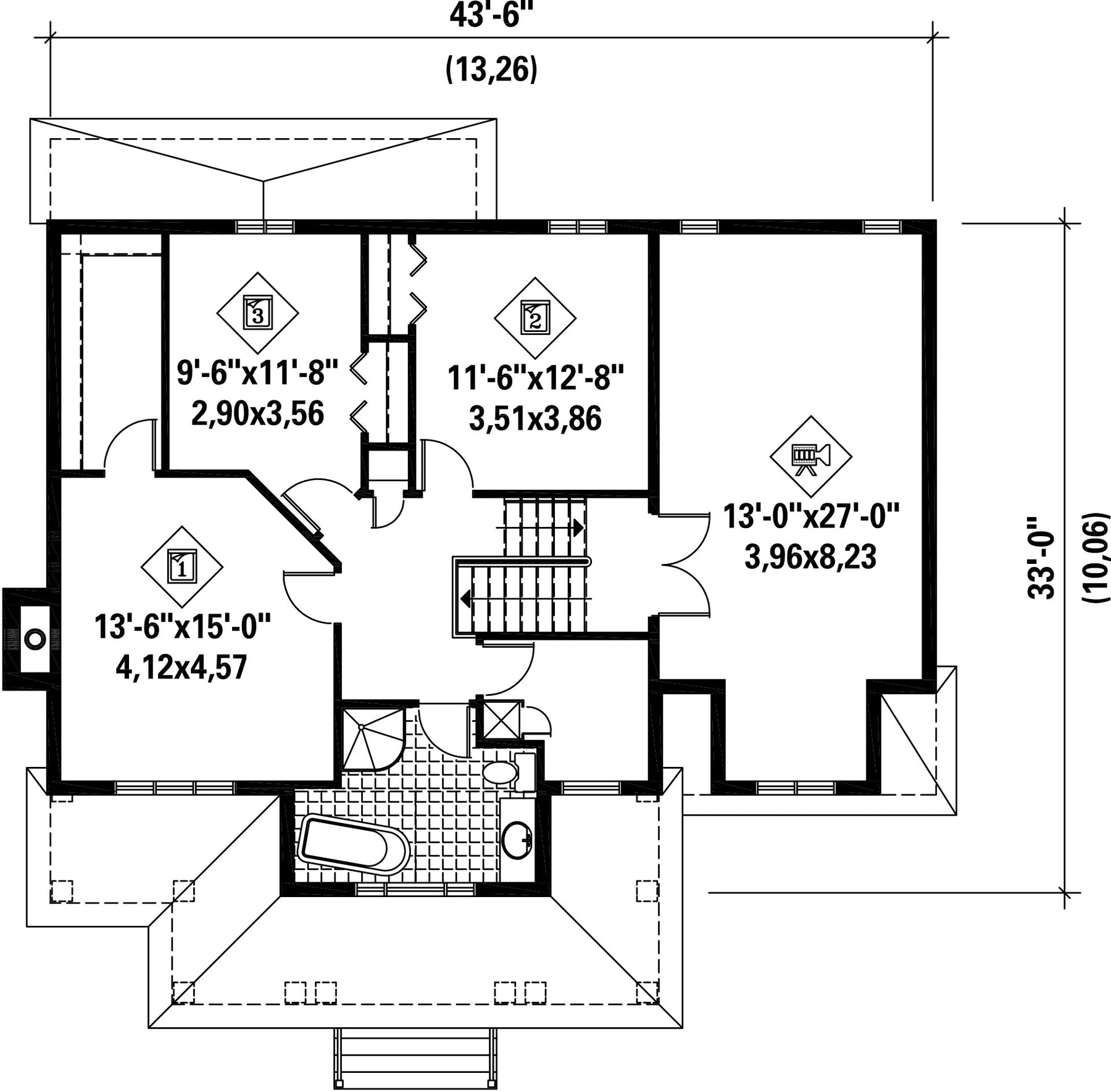
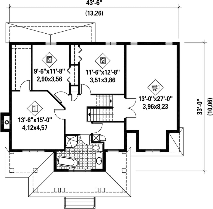
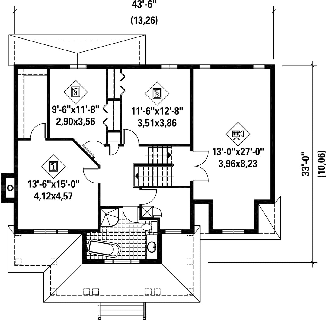
The second floor has 1,256 square feet of living space and includes a master bedroom with a large walk-in closet, two additional bedrooms, a family bathroom with adjoining laundry room, as well as a room located above the garage that can be used as a home theater.
The ground floor covers 989 square feet and includes a large closed entrance hall, an open dining room and living room with a fireplace, a kitchen with an island, a powder room and a 378 square foot one-car garage.
The second floor has 1,256 square feet of living space and includes a master bedroom with a large walk-in closet, two additional bedrooms, a family bathroom with adjoining laundry room, as well as a room located above the garage that can be used as a home theater.
Additional info
Measurements: Imperial| House style | Country |
Construction price
Approximate amount equivalent to what it would cost to have a general contractor (Montreal's South Shore region) build a similar home, excluding the lot and the infrastructure.
|
443856 $ |
|---|---|---|---|
| Front | 43 ft 6 in | Total living surface | 2245 ft² |
| Depth | 37 ft | Bathrooms | 1 |
| Height | 36 ft 5 in | Bedrooms | 3 |
| Master bedroom | Walk in | Master bedroom - comments | --- |
| First floor area | 989 ft² | Exterior walls | Aluminum |
| Second floor area | 1256 ft² | Kitchen | U shaped + Dining room + Island |
| Garage area | 378 ft² | Garages | 1 |
| Garage wall | 8 ft | First floor wall | 9 ft |
| Second floor wall | 8 ft | Front/back roof slope | 8/12 |
| Left/right roof slope | 12/12 |
| House style | Country |
|---|---|
|
Construction price
Approximate amount equivalent to what it would cost to have a general contractor (Montreal's South Shore region) build a similar home, excluding the lot and the infrastructure.
|
443856 $ |
| Front | 43 ft 6 in |
| Total living surface | 2245 ft² |
| Depth | 37 ft |
| Bathrooms | 1 |
| Height | 36 ft 5 in |
| Bedrooms | 3 |
| Master bedroom | Walk in |
| Master bedroom - comments | --- |
| First floor area | 989 ft² |
| Exterior walls | Aluminum |
| Second floor area | 1256 ft² |
| Kitchen | U shaped + Dining room + Island |
| Garage area | 378 ft² |
| Garages | 1 |
| Garage wall | 8 ft |
| First floor wall | 9 ft |
| Second floor wall | 8 ft |
| Front/back roof slope | 8/12 |
| Left/right roof slope | 12/12 |