Description
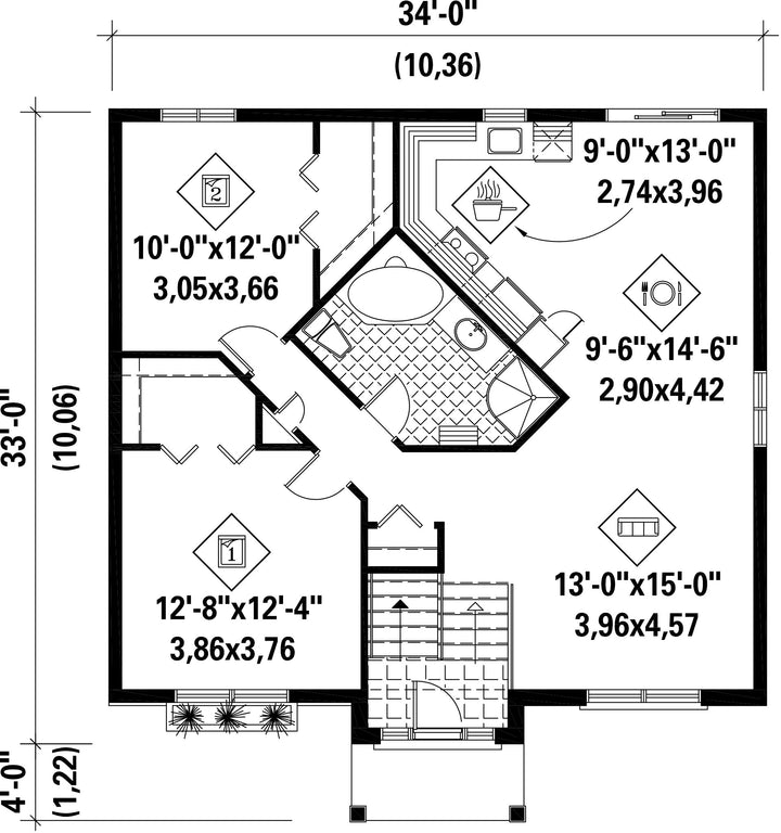
Thanks to roof gables, a porch with decorative posts and architectural details, this bungalow with a partial brick facing has an undeniably elegant style. The house is 34 feet wide by 33 feet deep and provides 1,072 square feet of living space.
The home consists of a kitchen, an open living and dining room, a bathroom and two bedrooms including a master bedroom with a large walk-in closet.
The home consists of a kitchen, an open living and dining room, a bathroom and two bedrooms including a master bedroom with a large walk-in closet.
Additional info
Measurements: Imperial| House style | Classical |
Construction price
Approximate amount equivalent to what it would cost to have a general contractor (Montreal's South Shore region) build a similar home, excluding the lot and the infrastructure.
|
255932 $ |
|---|---|---|---|
| Front | 34 ft | Total living surface | 1072 ft² |
| Depth | 33 ft | Bathrooms | 1 |
| Height | 21 ft 11 in | Bedrooms | 2 |
| Master bedroom | Walk in | ||
| First floor area | 1072 ft² | Exterior walls | Aluminum + Brick |
| Kitchen | Dining room | ||
| Garages | 0 | ||
| First floor wall | 8 ft | ||
| Front/back roof slope | 6/12 | ||
| Left/right roof slope | 10/12 |
| House style | Classical |
|---|---|
|
Construction price
Approximate amount equivalent to what it would cost to have a general contractor (Montreal's South Shore region) build a similar home, excluding the lot and the infrastructure.
|
255932 $ |
| Front | 34 ft |
| Total living surface | 1072 ft² |
| Depth | 33 ft |
| Bathrooms | 1 |
| Height | 21 ft 11 in |
| Bedrooms | 2 |
| Master bedroom | Walk in |
| First floor area | 1072 ft² |
| Exterior walls | Aluminum + Brick |
| Kitchen | Dining room |
| Garages | 0 |
| First floor wall | 8 ft |
| Front/back roof slope | 6/12 |
| Left/right roof slope | 10/12 |