Description
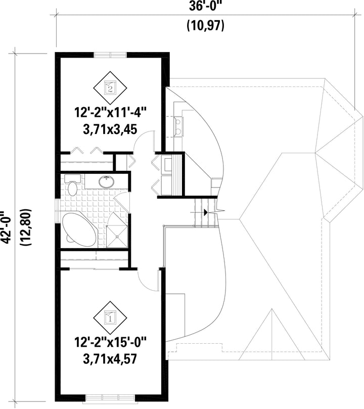
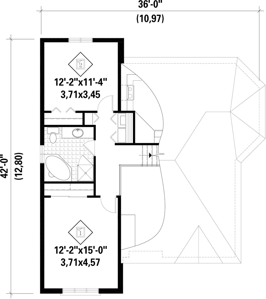
Thanks to its many large windows, this lovely split-level house is very bright. The residence is 36 feet wide by 42 feet deep and has a living area of 1514 square feet.
It includes two bedrooms, two bathrooms, a family room, a kitchen, a dining room, a living room and a one-car garage.
It includes two bedrooms, two bathrooms, a family room, a kitchen, a dining room, a living room and a one-car garage.
Additional info
Measurements: Imperial| House style | Classic |
Construction price
Approximate amount equivalent to what it would cost to have a general contractor (Montreal's South Shore region) build a similar home, excluding the lot and the infrastructure.
|
348615 $ |
|---|---|---|---|
| Front | 36 ft | Total living surface | 1514 ft² |
| Depth | 42 ft | Bathrooms | 2 |
| Height | 27 ft 6 in | Bedrooms | 2 |
| Master bedroom | N / A | ||
| First floor area | 931 ft² | Exterior walls | Aluminum + Brick |
| Second floor area | 583 ft² | Kitchen | U-shaped + Dining room |
| Garage area | 270 ft² | Garages | 1 |
| Garage wall | 8 ft | First floor wall | 8 ft |
| Second floor wall | 8 ft | ||
| Left/right roof slope | 14/12 |
| House style | Classic |
|---|---|
|
Construction price
Approximate amount equivalent to what it would cost to have a general contractor (Montreal's South Shore region) build a similar home, excluding the lot and the infrastructure.
|
348615 $ |
| Front | 36 ft |
| Total living surface | 1514 ft² |
| Depth | 42 ft |
| Bathrooms | 2 |
| Height | 27 ft 6 in |
| Bedrooms | 2 |
| Master bedroom | N / A |
| First floor area | 931 ft² |
| Exterior walls | Aluminum + Brick |
| Second floor area | 583 ft² |
| Kitchen | U-shaped + Dining room |
| Garage area | 270 ft² |
| Garages | 1 |
| Garage wall | 8 ft |
| First floor wall | 8 ft |
| Second floor wall | 8 ft |
| Left/right roof slope | 14/12 |