10004
10004
10004
10004

10004


Jeux de plans - Sets of plans
Regular price$945.00
/

This site is protected by hCaptcha and the hCaptcha Privacy Policy and Terms of Service apply.

Description

NULL

Additional info

Measurements: Imperial

House style Classical Construction price 
Approximate amount equivalent to what it would cost to have a general contractor (Montreal's South Shore region) build a similar home, excluding the lot and the infrastructure.
292387 $
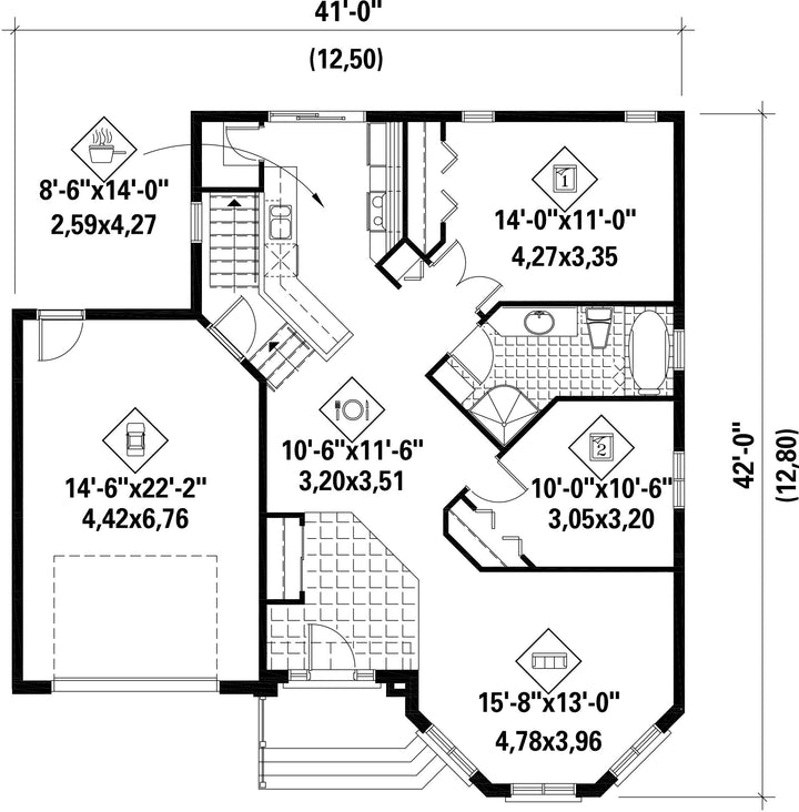
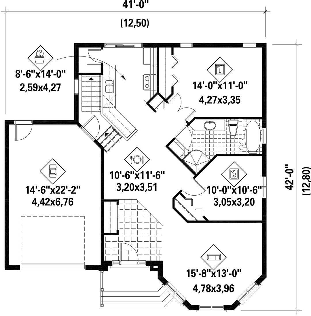
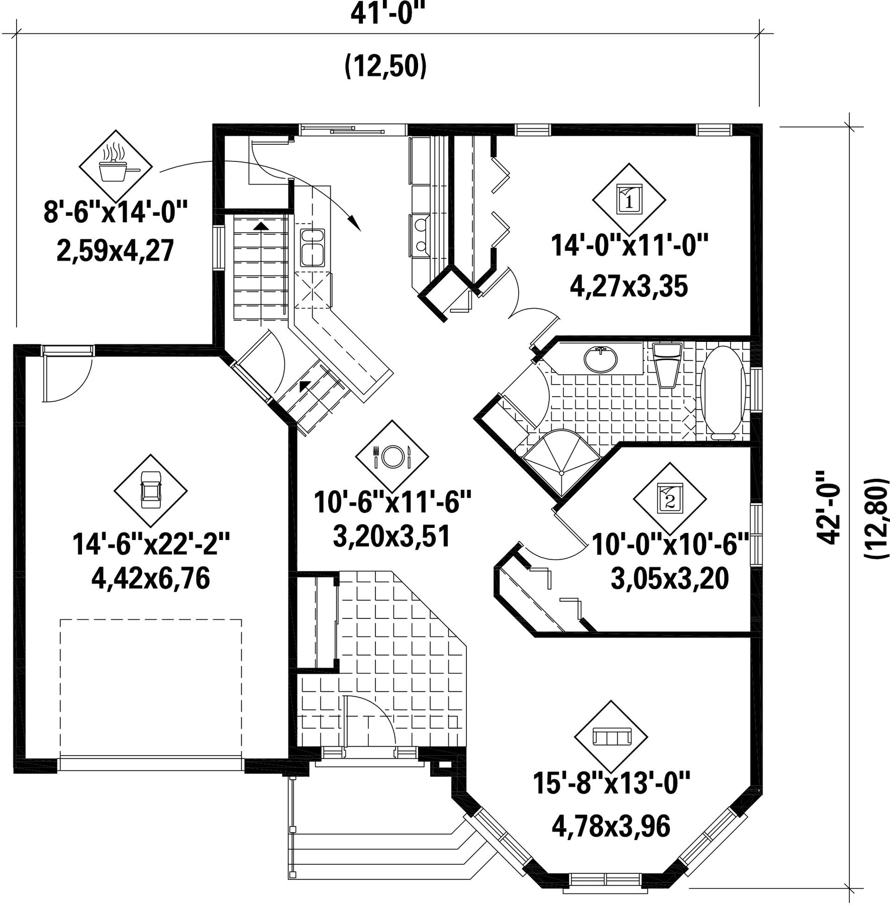
Front 41 ft Total living surface 1063 ft²
Depth 42 ftBathrooms 1
Height 25 ftBedrooms 2
Master bedroom Double doors
First floor area 1063 ft² Exterior walls Stucco + Brick
Kitchen Laboratory + Dining room
Garage area 344 ft² Garages 1
Garage wall 8 ftFirst floor wall 8 ft
Front/back roof slope 10/12
Left/right roof slope 10/12
House style Classical
Construction price 
Approximate amount equivalent to what it would cost to have a general contractor (Montreal's South Shore region) build a similar home, excluding the lot and the infrastructure.
292387 $
Front 41 ft
Total living surface 1063 ft²
Depth 42 ft
Bathrooms 1
Height 25 ft
Bedrooms 2
Master bedroom Double doors
First floor area 1063 ft²
Exterior walls Stucco + Brick
Kitchen Laboratory + Dining room
Garage area 344 ft²
Garages 1
Garage wall 8 ft
First floor wall 8 ft
Front/back roof slope 10/12
Left/right roof slope 10/12

Ces plans de maison pourraient également vous intéresser


Recently viewed