Description
NULL
Additional info
Measurements: Imperial| House style | Urban |
Construction price
Approximate amount equivalent to what it would cost to have a general contractor (Montreal's South Shore region) build a similar home, excluding the lot and the infrastructure.
|
426799 $ |
|---|---|---|---|
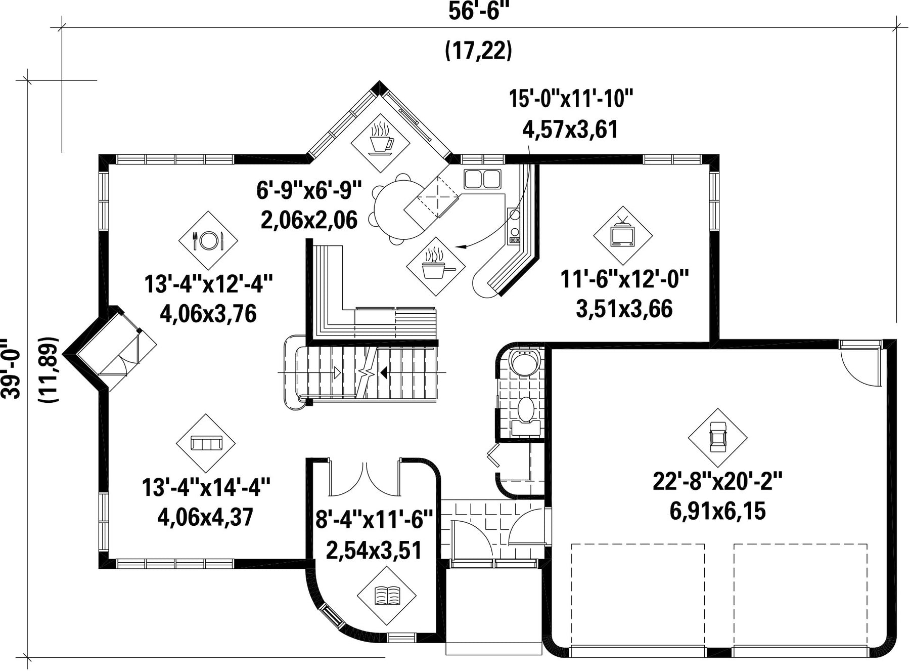
| Front | 56 ft 6 in | Total living surface | 1865 ft² |
| Depth | 39 ft | Bathrooms | 1 |
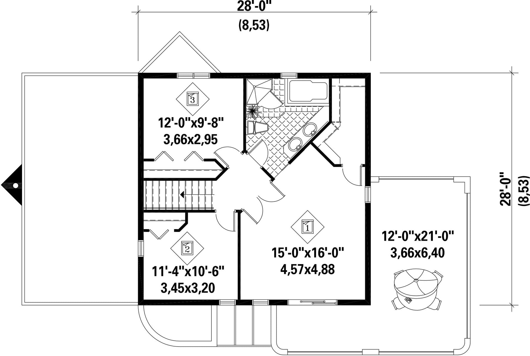
| Height | 20 ft 9 in | Bedrooms | 3 |
| Master bedroom | Wardrobe + Double Doors | ||
| First floor area | 1081 ft² | Exterior walls | Aggregates |
| Second floor area | 784 ft² | Kitchen | Dining area + U-shape |
| Garage area | 498 ft² | Garages | 2 |
| Garage wall | 8 ft | First floor wall | 8 ft |
| Second floor wall | 8 ft | Front/back roof slope | 0/12 |
| Left/right roof slope | 0/12 |
| House style | Urban |
|---|---|
|
Construction price
Approximate amount equivalent to what it would cost to have a general contractor (Montreal's South Shore region) build a similar home, excluding the lot and the infrastructure.
|
426799 $ |
| Front | 56 ft 6 in |
| Total living surface | 1865 ft² |
| Depth | 39 ft |
| Bathrooms | 1 |
| Height | 20 ft 9 in |
| Bedrooms | 3 |
| Master bedroom | Wardrobe + Double Doors |
| First floor area | 1081 ft² |
| Exterior walls | Aggregates |
| Second floor area | 784 ft² |
| Kitchen | Dining area + U-shape |
| Garage area | 498 ft² |
| Garages | 2 |
| Garage wall | 8 ft |
| First floor wall | 8 ft |
| Second floor wall | 8 ft |
| Front/back roof slope | 0/12 |
| Left/right roof slope | 0/12 |