Description
NULL
Additional info
Measurements: Imperial| House style | Modern |
Construction price
Approximate amount equivalent to what it would cost to have a general contractor (Montreal's South Shore region) build a similar home, excluding the lot and the infrastructure.
|
260997 $ |
|---|---|---|---|
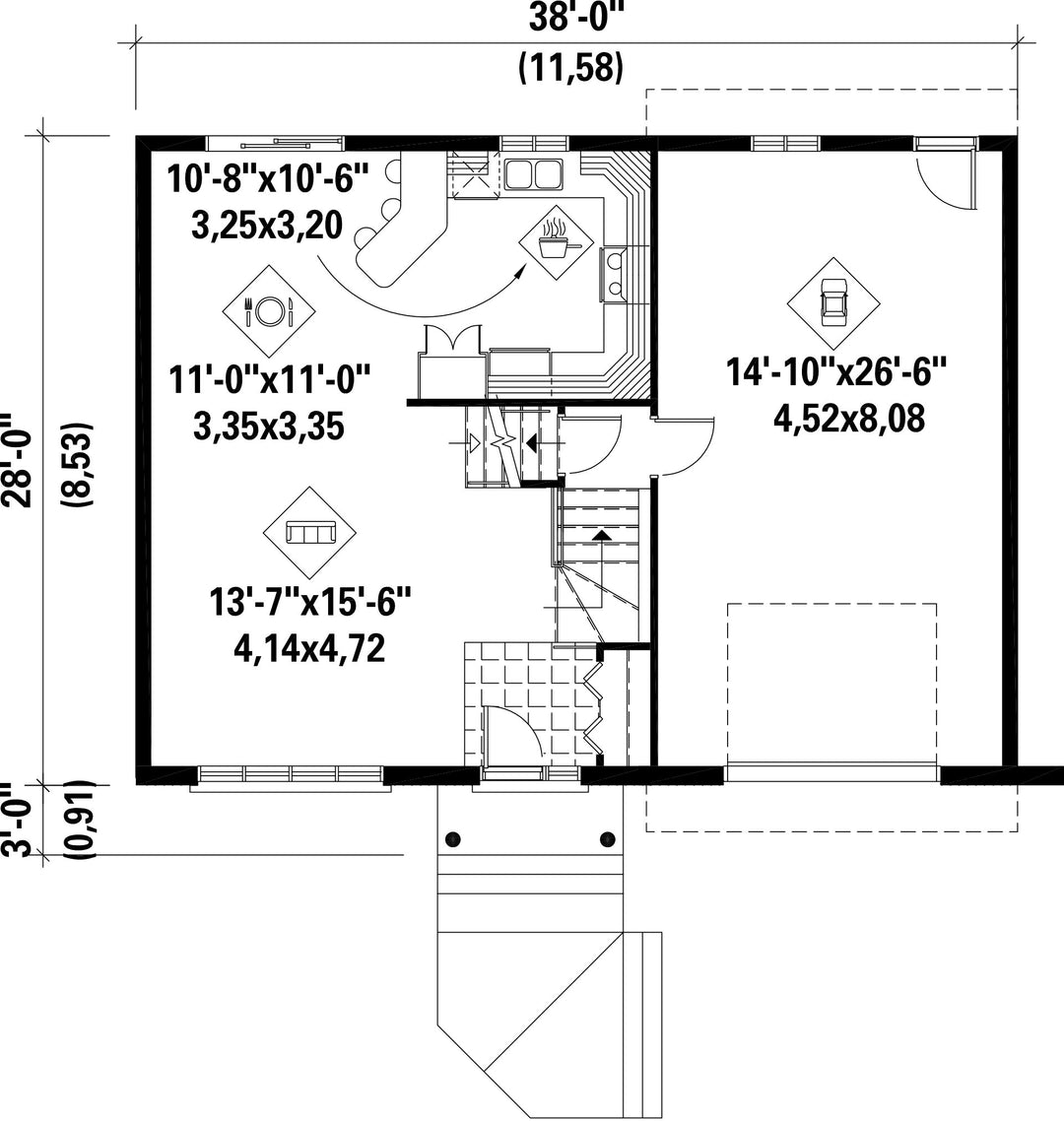
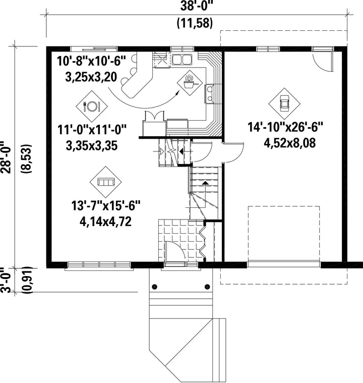
| Front | 38 ft | Total living surface | 1152 ft² |
| Depth | 28 ft | Bathrooms | 1 |
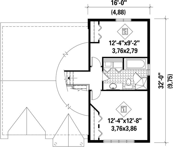
| Height | 23 ft 6 in | Bedrooms | 2 |
| Master bedroom | N / A | ||
| First floor area | 630 ft² | Exterior walls | Aggregates + Brick |
| Second floor area | 522 ft² | Kitchen | Breakfast bar + U-shaped layout + Dining room |
| Garage area | 434 ft² | Garages | 1 |
| Garage wall | 8 ft | First floor wall | 8 ft |
| Second floor wall | 8 ft | Front/back roof slope | 6/12 |
| Left/right roof slope | 7/12 |
| House style | Modern |
|---|---|
|
Construction price
Approximate amount equivalent to what it would cost to have a general contractor (Montreal's South Shore region) build a similar home, excluding the lot and the infrastructure.
|
260997 $ |
| Front | 38 ft |
| Total living surface | 1152 ft² |
| Depth | 28 ft |
| Bathrooms | 1 |
| Height | 23 ft 6 in |
| Bedrooms | 2 |
| Master bedroom | N / A |
| First floor area | 630 ft² |
| Exterior walls | Aggregates + Brick |
| Second floor area | 522 ft² |
| Kitchen | Breakfast bar + U-shaped layout + Dining room |
| Garage area | 434 ft² |
| Garages | 1 |
| Garage wall | 8 ft |
| First floor wall | 8 ft |
| Second floor wall | 8 ft |
| Front/back roof slope | 6/12 |
| Left/right roof slope | 7/12 |