Description
NULL
Additional info
Measurements: Imperial| House style | European |
Construction price
Approximate amount equivalent to what it would cost to have a general contractor (Montreal's South Shore region) build a similar home, excluding the lot and the infrastructure.
|
372989 $ |
|---|---|---|---|
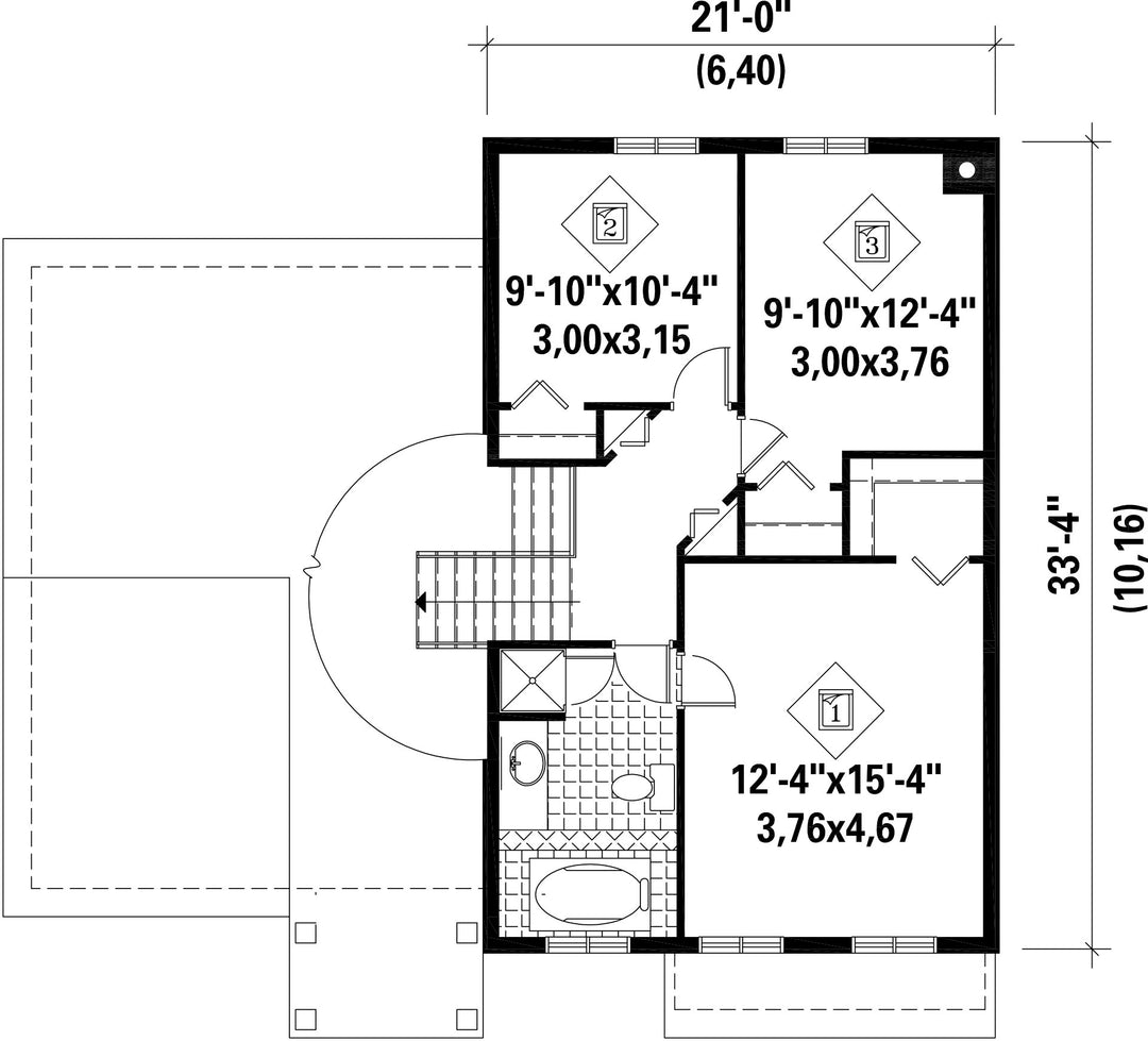
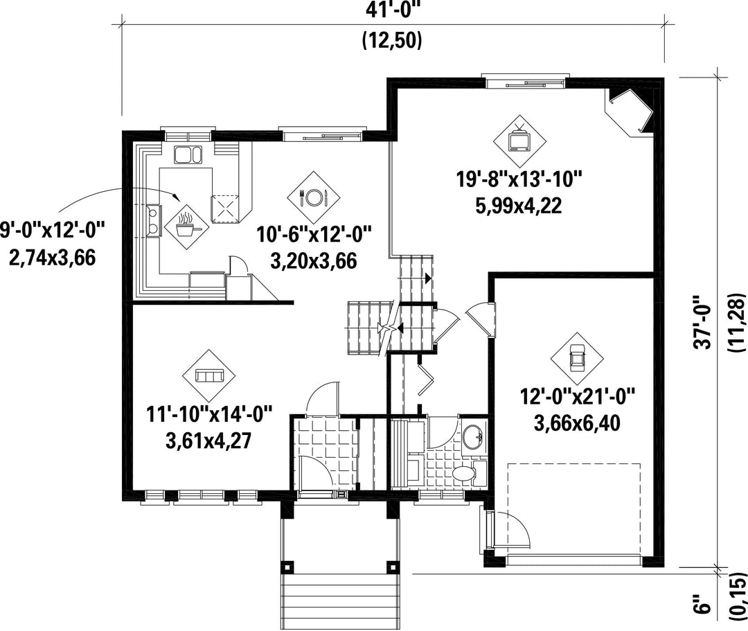
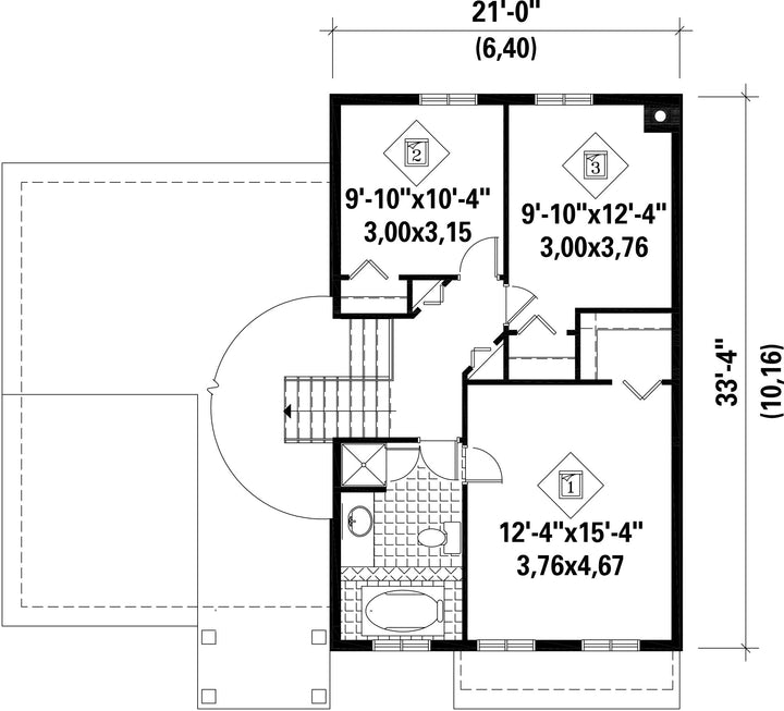
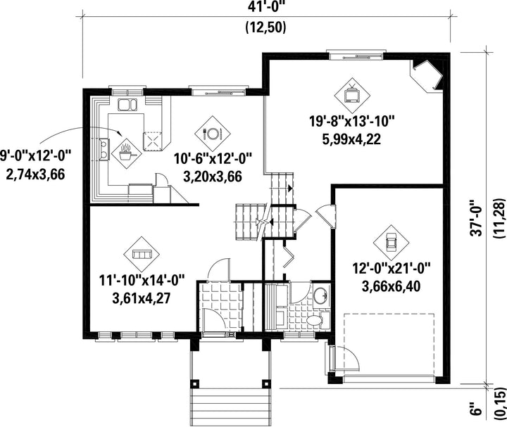
| Front | 41 ft | Total living surface | 1716 ft² |
| Depth | 37 ft | Bathrooms | 2 |
| Height | 27 ft 3 in | Bedrooms | 3 |
| Master bedroom | N / A | ||
| First floor area | 1016 ft² | Exterior walls | Aluminum + Brick |
| Second floor area | 700 ft² | Kitchen | Meal counter + Dining room |
| Garage area | 284 ft² | Garages | 1 |
| Garage wall | 8 ft | First floor wall | 8 ft |
| Second floor wall | 8 ft | Front/back roof slope | 6/12 |
| House style | European |
|---|---|
|
Construction price
Approximate amount equivalent to what it would cost to have a general contractor (Montreal's South Shore region) build a similar home, excluding the lot and the infrastructure.
|
372989 $ |
| Front | 41 ft |
| Total living surface | 1716 ft² |
| Depth | 37 ft |
| Bathrooms | 2 |
| Height | 27 ft 3 in |
| Bedrooms | 3 |
| Master bedroom | N / A |
| First floor area | 1016 ft² |
| Exterior walls | Aluminum + Brick |
| Second floor area | 700 ft² |
| Kitchen | Meal counter + Dining room |
| Garage area | 284 ft² |
| Garages | 1 |
| Garage wall | 8 ft |
| First floor wall | 8 ft |
| Second floor wall | 8 ft |
| Front/back roof slope | 6/12 |