Description
These two brick cottages built side by side are 45 feet wide by 30 feet deep and provide 3,420 square feet of living space.
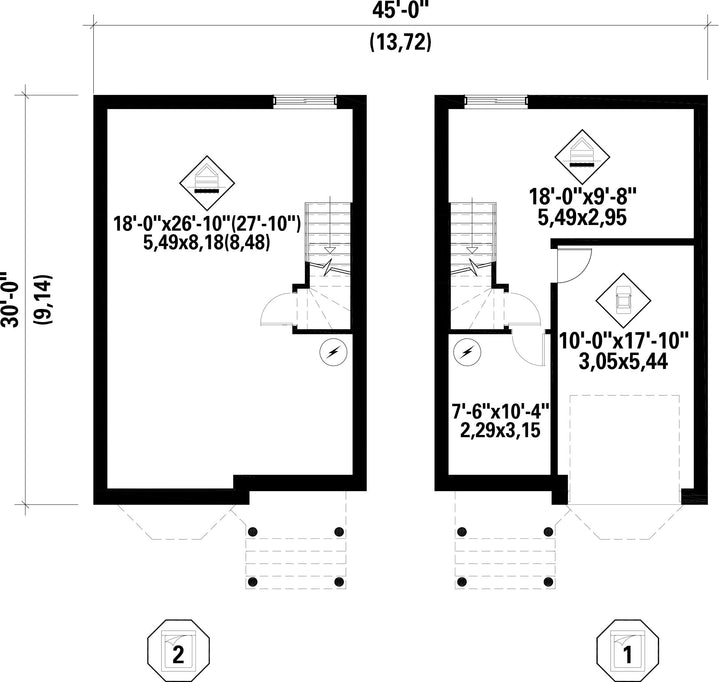
The basement of each unit measures 974 square feet. One of the two units has an open area. The other includes two rooms that can be used as a den, a storage room or a workshop, as well as a 210 square foot one-car garage.
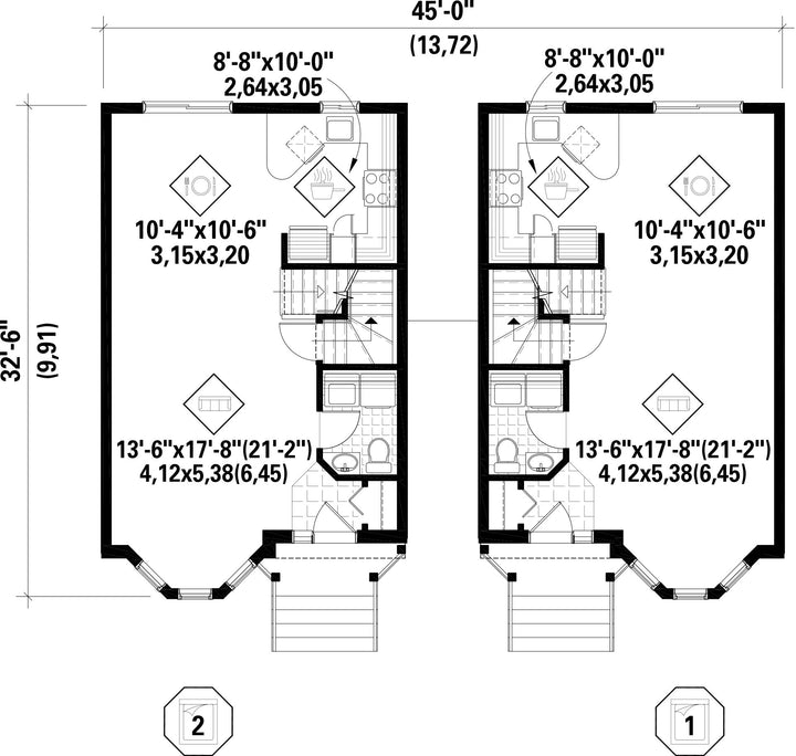
With 1,214 square feet of living space, both houses have identical open ground floors that include a living room, a dining room, a functional kitchen and a powder room.
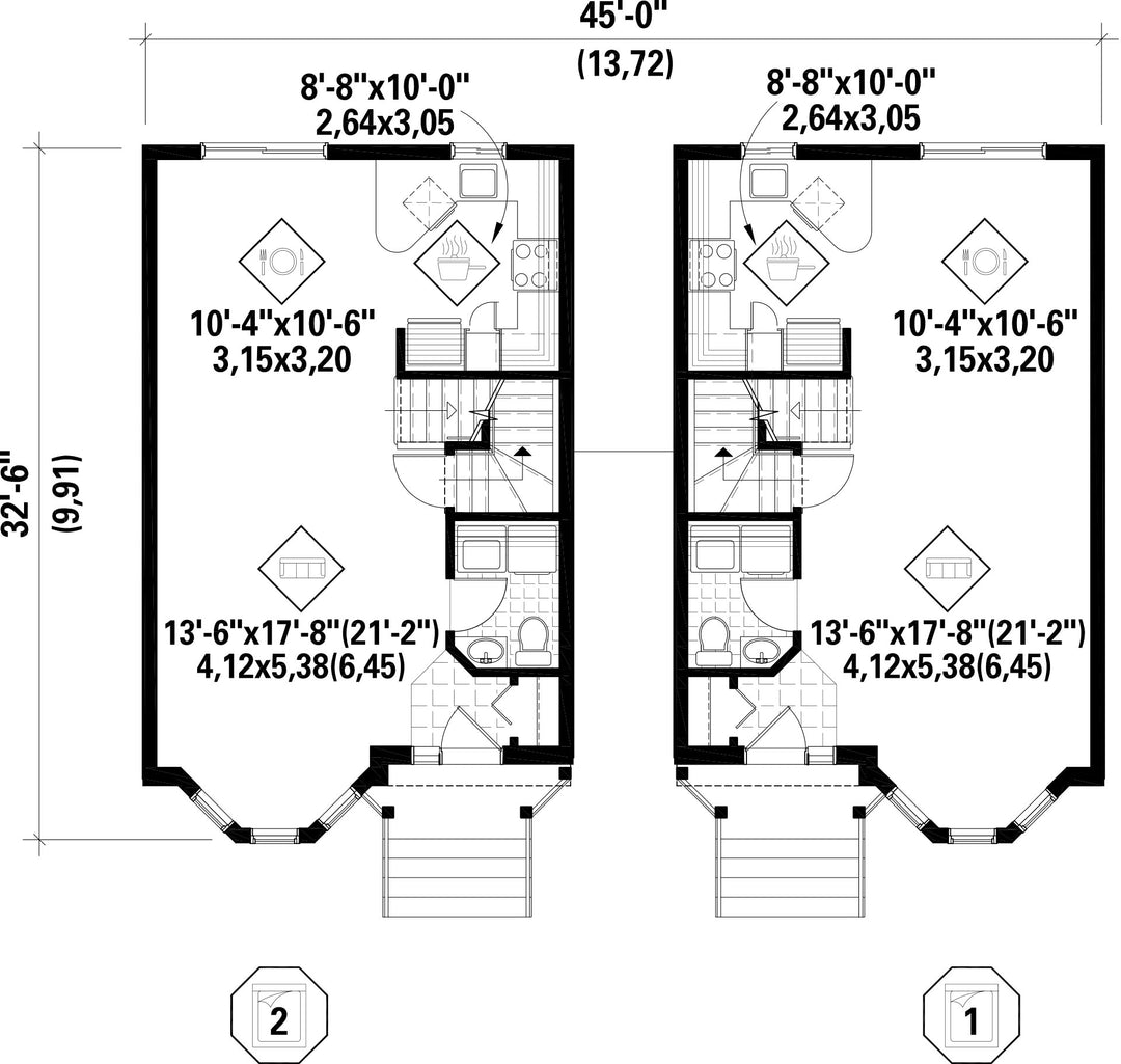
The upper floor covers 1,232 square feet and is almost identical in both homes. One of the houses has a bedroom with a large walk-in closet, a bathroom and a reading room, the other one has a large master bedroom with a reading area and a private bathroom.
The basement of each unit measures 974 square feet. One of the two units has an open area. The other includes two rooms that can be used as a den, a storage room or a workshop, as well as a 210 square foot one-car garage.
With 1,214 square feet of living space, both houses have identical open ground floors that include a living room, a dining room, a functional kitchen and a powder room.
The upper floor covers 1,232 square feet and is almost identical in both homes. One of the houses has a bedroom with a large walk-in closet, a bathroom and a reading room, the other one has a large master bedroom with a reading area and a private bathroom.
Additional info
Measurements: Imperial| House style | Victorian |
Construction price
Approximate amount equivalent to what it would cost to have a general contractor (Montreal's South Shore region) build a similar home, excluding the lot and the infrastructure.
|
512905 $ |
|---|---|---|---|
| Front | 45 ft | Total living surface | 3420 ft² |
| Depth | 30 ft | Bathrooms | 2 |
| Height | 28 ft 10 in | Bedrooms | 3 |
| Master bedroom | N / A | ||
| First floor area | 1214 ft² | Exterior walls | Aluminum + Brick |
| Second floor area | 1232 ft² | Kitchen | U-shape |
| Garage area | 210 ft² | Garages | 1 |
| Garage wall | 8 ft | First floor wall | 8 ft |
| Second floor wall | 8 ft | Front/back roof slope | 6/12 |
| Basement area | 974 ft² |
| House style | Victorian |
|---|---|
|
Construction price
Approximate amount equivalent to what it would cost to have a general contractor (Montreal's South Shore region) build a similar home, excluding the lot and the infrastructure.
|
512905 $ |
| Front | 45 ft |
| Total living surface | 3420 ft² |
| Depth | 30 ft |
| Bathrooms | 2 |
| Height | 28 ft 10 in |
| Bedrooms | 3 |
| Master bedroom | N / A |
| First floor area | 1214 ft² |
| Exterior walls | Aluminum + Brick |
| Second floor area | 1232 ft² |
| Kitchen | U-shape |
| Garage area | 210 ft² |
| Garages | 1 |
| Garage wall | 8 ft |
| First floor wall | 8 ft |
| Second floor wall | 8 ft |
| Front/back roof slope | 6/12 |
| Basement area | 974 ft² |