Description
NULL
Additional info
Measurements: Imperial| House style | Victorian |
Construction price
Approximate amount equivalent to what it would cost to have a general contractor (Montreal's South Shore region) build a similar home, excluding the lot and the infrastructure.
|
338093 $ |
|---|---|---|---|
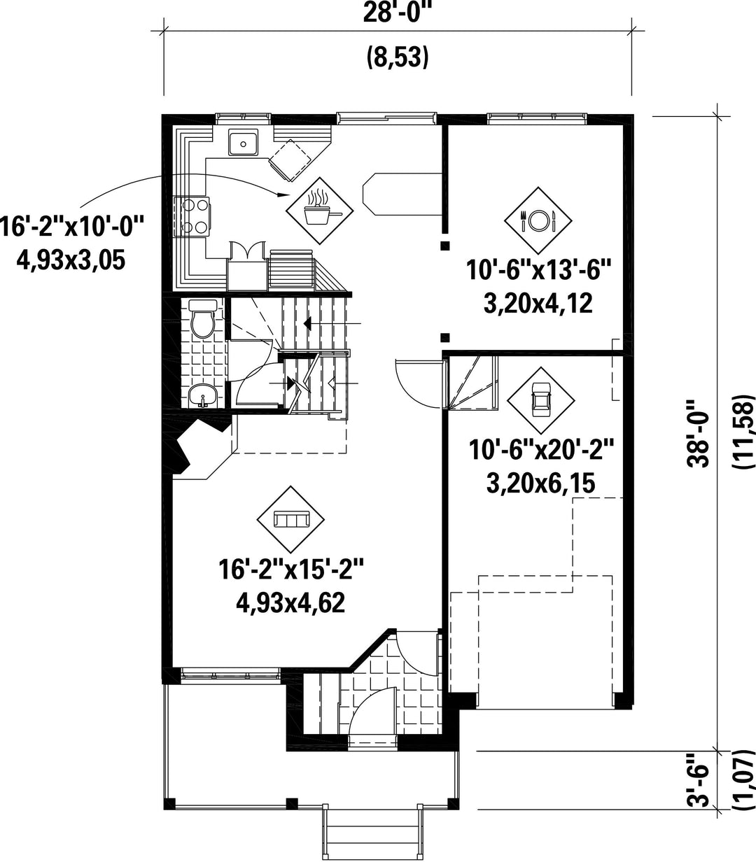
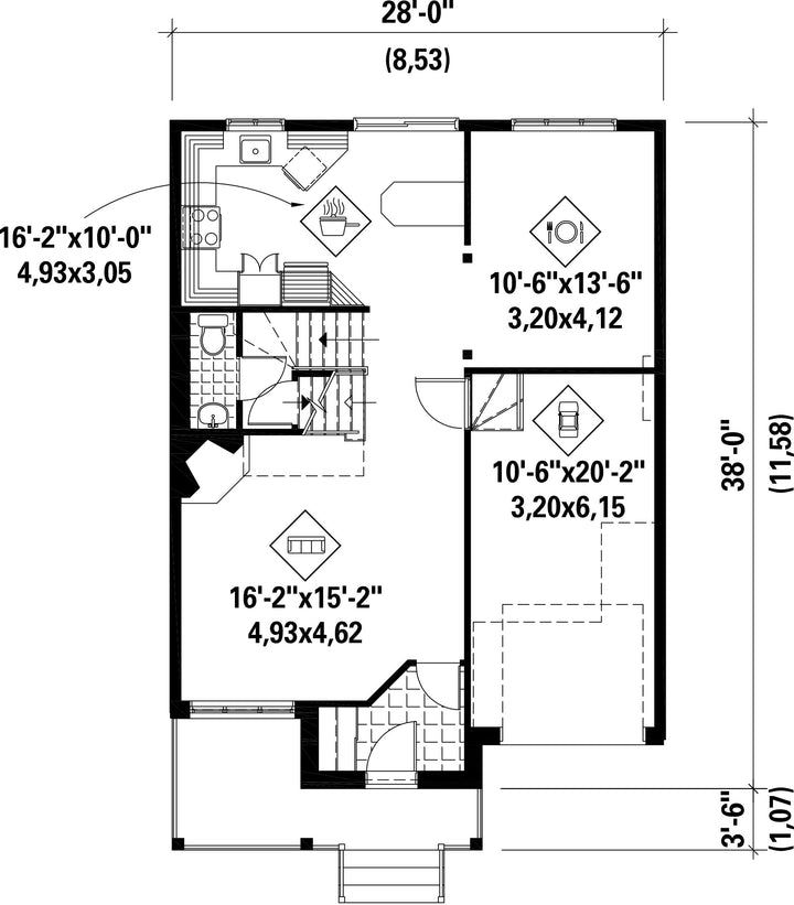
| Front | 28 ft | Total living surface | 1677 ft² |
| Depth | 38 ft | Bathrooms | 1 |
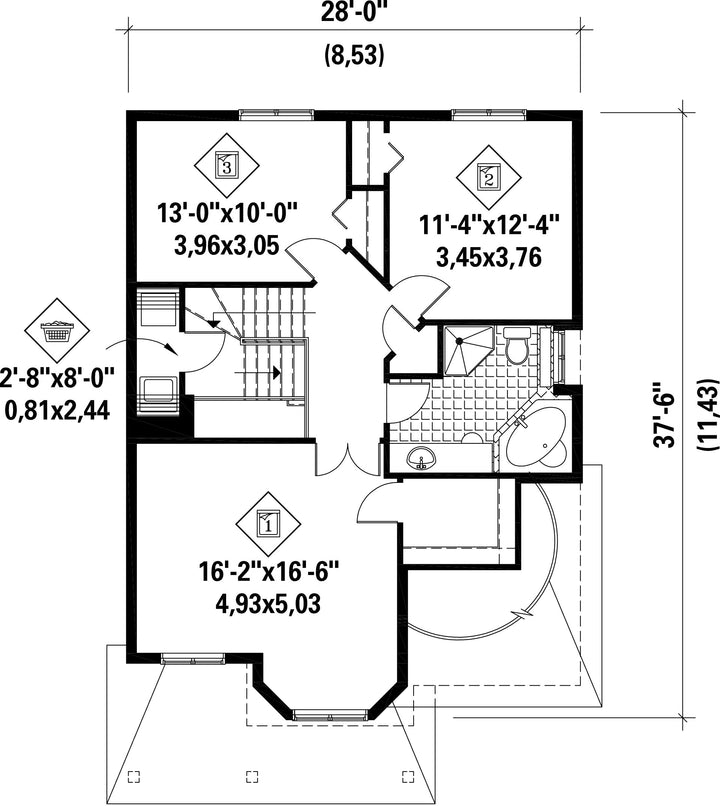
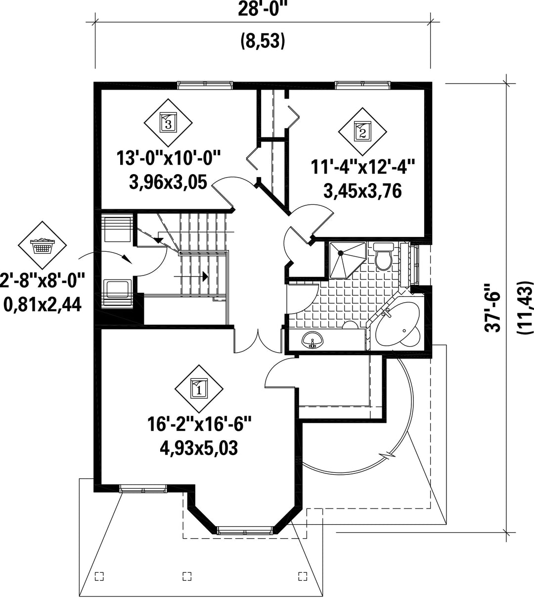
| Height | 30 ft 3 in | Bedrooms | 3 |
| Master bedroom | Wardrobe + Double Doors | ||
| First floor area | 776 ft² | Exterior walls | Aluminum + Brick |
| Second floor area | 901 ft² | Kitchen | Dining area + U-shape + Dining room |
| Garage area | 233 ft² | Garages | 1 |
| Garage wall | 8 ft | First floor wall | 8 ft |
| Second floor wall | 8 ft | Front/back roof slope | 12/12+7/12 |
| Left/right roof slope | 12/12 |
| House style | Victorian |
|---|---|
|
Construction price
Approximate amount equivalent to what it would cost to have a general contractor (Montreal's South Shore region) build a similar home, excluding the lot and the infrastructure.
|
338093 $ |
| Front | 28 ft |
| Total living surface | 1677 ft² |
| Depth | 38 ft |
| Bathrooms | 1 |
| Height | 30 ft 3 in |
| Bedrooms | 3 |
| Master bedroom | Wardrobe + Double Doors |
| First floor area | 776 ft² |
| Exterior walls | Aluminum + Brick |
| Second floor area | 901 ft² |
| Kitchen | Dining area + U-shape + Dining room |
| Garage area | 233 ft² |
| Garages | 1 |
| Garage wall | 8 ft |
| First floor wall | 8 ft |
| Second floor wall | 8 ft |
| Front/back roof slope | 12/12+7/12 |
| Left/right roof slope | 12/12 |