Description
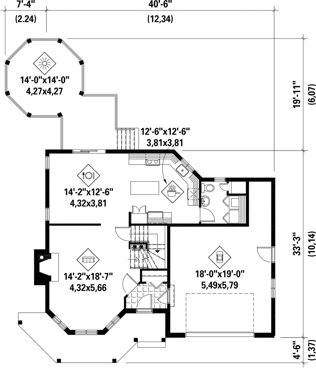
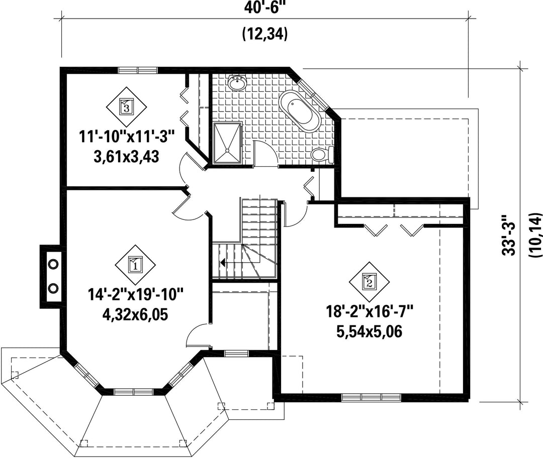
This beautiful Victorian-style two storey house really stands out with its architectural details, its brick and aluminum siding and the rear gazebo. The home is 40 feet 6 inches wide by 33 feet 3 inches deep and has a 1918 square foot living area.
With 811 square feet of living space, the ground floor includes a living room with fireplace, a large kitchen with an island, a dining room, a powder room as well as a 407 square foot two-car garage with storage area.
The second floor covers 1107 square feet and includes three large bedrooms and a bathroom.
With 811 square feet of living space, the ground floor includes a living room with fireplace, a large kitchen with an island, a dining room, a powder room as well as a 407 square foot two-car garage with storage area.
The second floor covers 1107 square feet and includes three large bedrooms and a bathroom.
Additional info
Measurements: Imperial| House style | Victorian |
Construction price
Approximate amount equivalent to what it would cost to have a general contractor (Montreal's South Shore region) build a similar home, excluding the lot and the infrastructure.
|
412374 $ |
|---|---|---|---|
| Front | 40 ft 6 in | Total living surface | 1918 ft² |
| Depth | 33 ft 3 in | Bathrooms | 1 |
| Height | 33 ft 8 in | Bedrooms | 3 |
| Master bedroom | Wardrobe | ||
| First floor area | 811 ft² | Exterior walls | Aluminum + Brick |
| Second floor area | 1107 ft² | Kitchen | Island |
| Garage area | 407 ft² | Garages | 2 |
| Garage wall | 8 ft | First floor wall | 8 ft |
| Second floor wall | 8 ft | Front/back roof slope | 8/12 |
| Left/right roof slope | 14/12 |
| House style | Victorian |
|---|---|
|
Construction price
Approximate amount equivalent to what it would cost to have a general contractor (Montreal's South Shore region) build a similar home, excluding the lot and the infrastructure.
|
412374 $ |
| Front | 40 ft 6 in |
| Total living surface | 1918 ft² |
| Depth | 33 ft 3 in |
| Bathrooms | 1 |
| Height | 33 ft 8 in |
| Bedrooms | 3 |
| Master bedroom | Wardrobe |
| First floor area | 811 ft² |
| Exterior walls | Aluminum + Brick |
| Second floor area | 1107 ft² |
| Kitchen | Island |
| Garage area | 407 ft² |
| Garages | 2 |
| Garage wall | 8 ft |
| First floor wall | 8 ft |
| Second floor wall | 8 ft |
| Front/back roof slope | 8/12 |
| Left/right roof slope | 14/12 |