Description
The turret and architectural ornaments give this elegant house a decidedly Victorian look. The inviting and functional home is 42 feet wide by 31 feet deep and has a living area of 1,534 square feet.
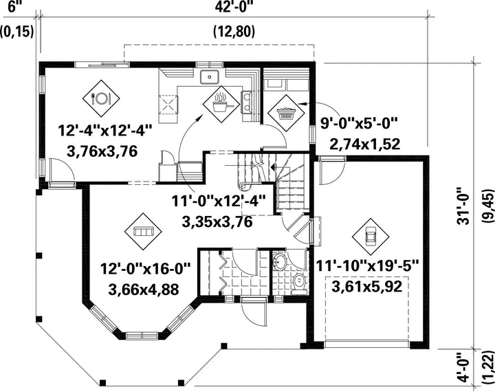
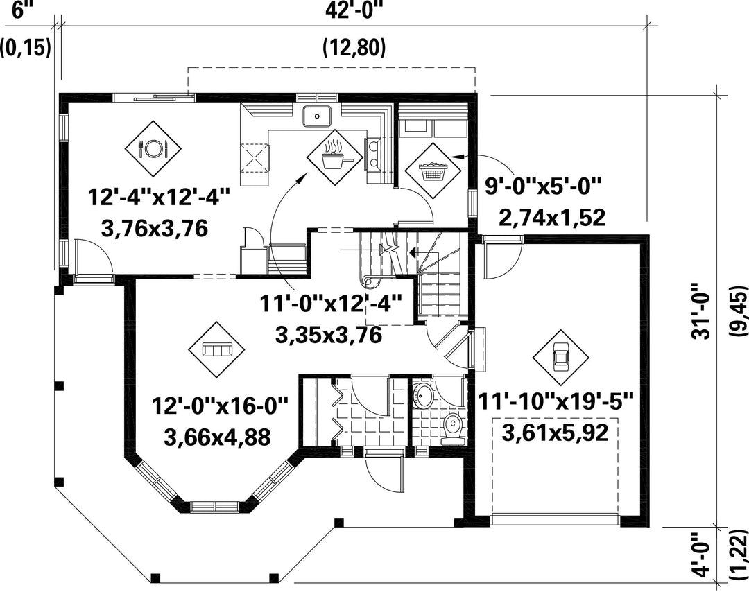
The ground floor has a living area of 752 square feet and includes a living room, a kitchen, a dining room, a powder room, a laundry room as well as a 261 square feet two-car garage.
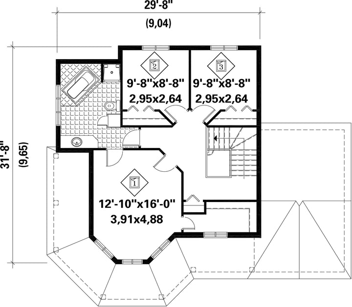
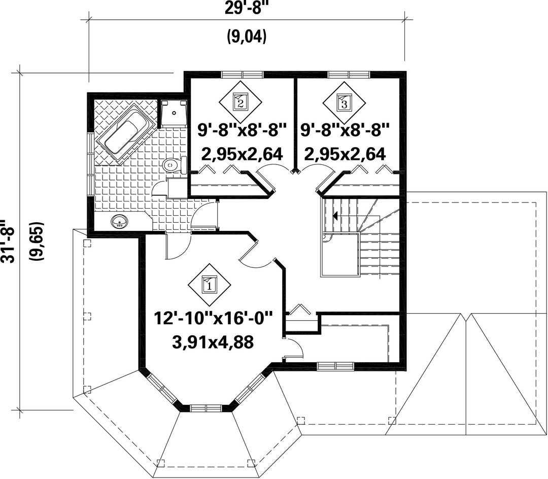
The second floor has a living of 782 square feet and includes a bathroom and three bedrooms. The master bedroom, located in the turret, is exceptionally bright thanks to several windows.
The ground floor has a living area of 752 square feet and includes a living room, a kitchen, a dining room, a powder room, a laundry room as well as a 261 square feet two-car garage.
The second floor has a living of 782 square feet and includes a bathroom and three bedrooms. The master bedroom, located in the turret, is exceptionally bright thanks to several windows.
Additional info
Measurements: Imperial| House style | Victorian |
Construction price
Approximate amount equivalent to what it would cost to have a general contractor (Montreal's South Shore region) build a similar home, excluding the lot and the infrastructure.
|
328568 $ |
|---|---|---|---|
| Front | 42 ft | Total living surface | 1534 ft² |
| Depth | 31 ft | Bathrooms | 1 |
| Height | 32 ft 7 in | Bedrooms | 3 |
| Master bedroom | Walk in | ||
| First floor area | 752 ft² | Exterior walls | Aluminum + Brick + Fish scale covering |
| Second floor area | 782 ft² | Kitchen | U shaped |
| Garage area | 261 ft² | Garages | 1 |
| Garage wall | 8 ft | First floor wall | 8 ft |
| Second floor wall | 8 ft | ||
| Left/right roof slope | 12/12 |
| House style | Victorian |
|---|---|
|
Construction price
Approximate amount equivalent to what it would cost to have a general contractor (Montreal's South Shore region) build a similar home, excluding the lot and the infrastructure.
|
328568 $ |
| Front | 42 ft |
| Total living surface | 1534 ft² |
| Depth | 31 ft |
| Bathrooms | 1 |
| Height | 32 ft 7 in |
| Bedrooms | 3 |
| Master bedroom | Walk in |
| First floor area | 752 ft² |
| Exterior walls | Aluminum + Brick + Fish scale covering |
| Second floor area | 782 ft² |
| Kitchen | U shaped |
| Garage area | 261 ft² |
| Garages | 1 |
| Garage wall | 8 ft |
| First floor wall | 8 ft |
| Second floor wall | 8 ft |
| Left/right roof slope | 12/12 |