Description
Thanks to its architectural details, brick facing and small veranda, this two-storey house is most charming. It is 38 feet wide by 34 feet deep and provides 1,515 square feet of living space.
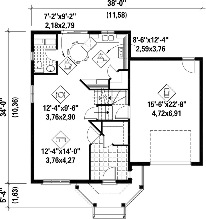
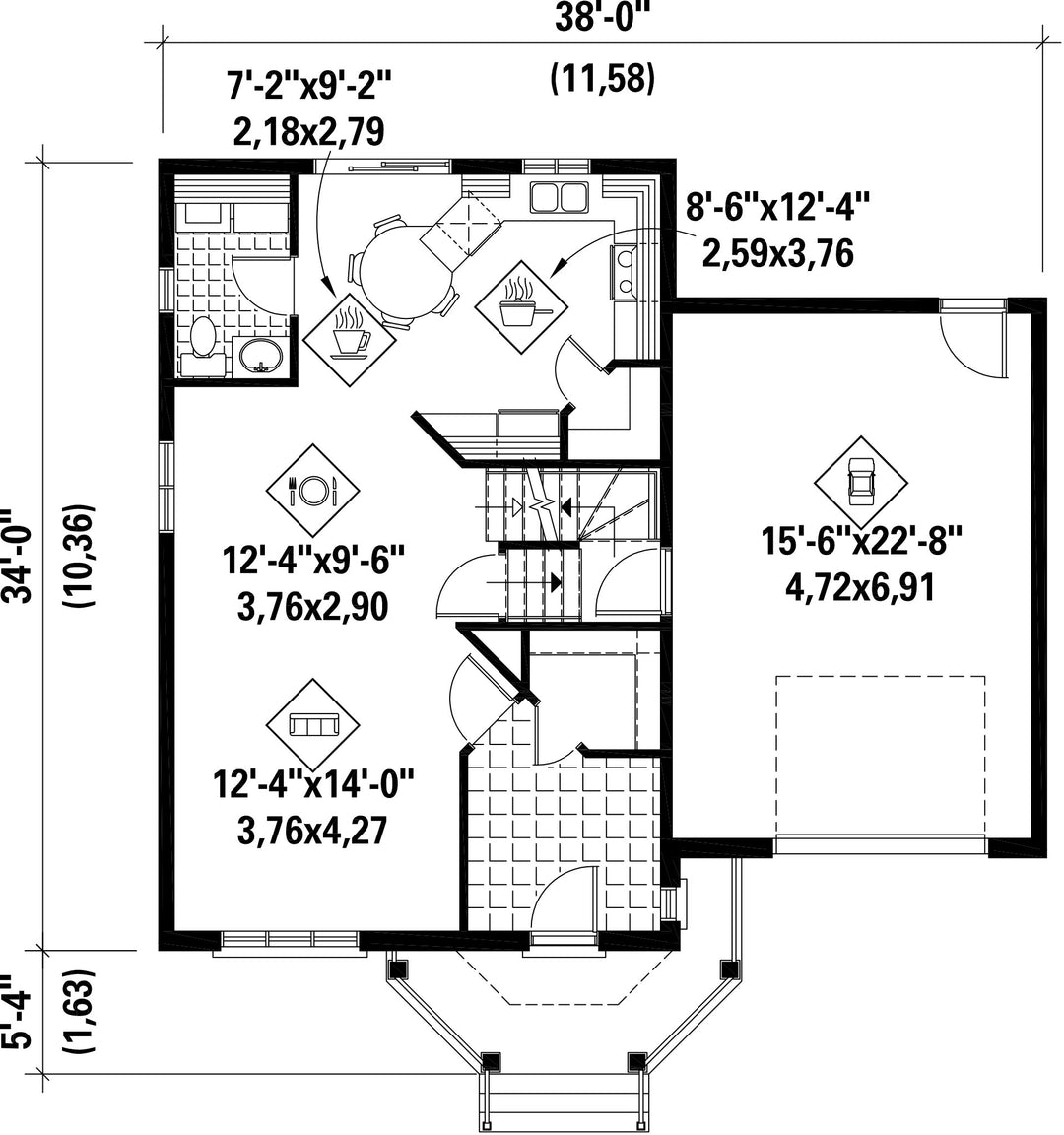
The ground floor offers 750 square feet of living space and includes a large entrance hall leading to an open living and dining area, a powder room, a large kitchen with a practical breakfast nook, and a 384 square foot one-car garage.
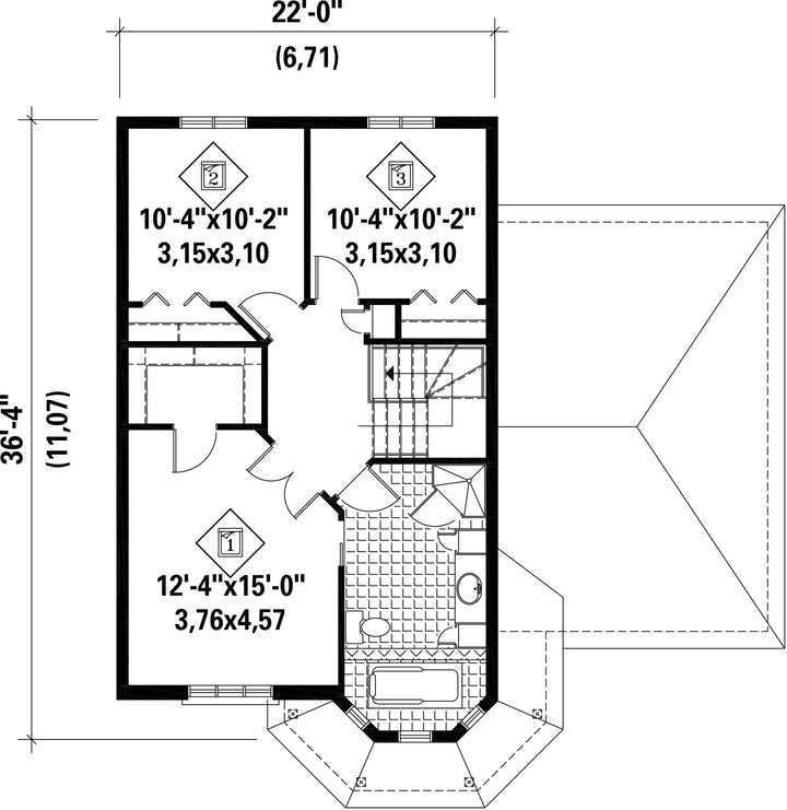
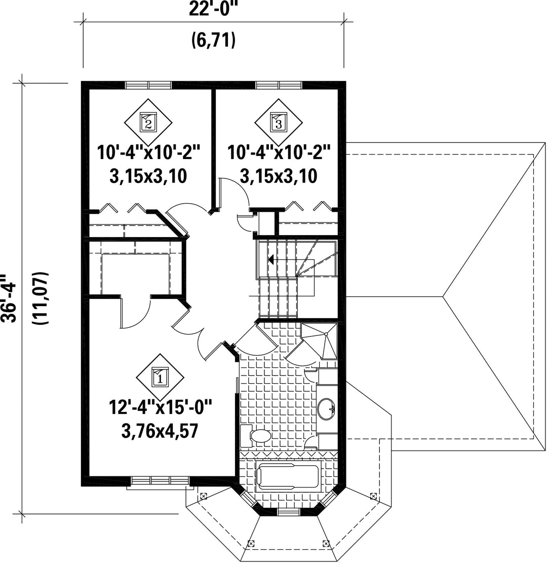
Spread over 765 square feet, the second floor consists of three bedrooms, including two of identical size located at the back of the house and a master bedroom with a large walk-in closet at the front of the house, as well as a bathroom with a podium bath.
The ground floor offers 750 square feet of living space and includes a large entrance hall leading to an open living and dining area, a powder room, a large kitchen with a practical breakfast nook, and a 384 square foot one-car garage.
Spread over 765 square feet, the second floor consists of three bedrooms, including two of identical size located at the back of the house and a master bedroom with a large walk-in closet at the front of the house, as well as a bathroom with a podium bath.
Additional info
Measurements: Imperial| House style | Victorian |
Construction price
Approximate amount equivalent to what it would cost to have a general contractor (Montreal's South Shore region) build a similar home, excluding the lot and the infrastructure.
|
318226 $ |
|---|---|---|---|
| Front | 38 ft | Total living surface | 1515 ft² |
| Depth | 34 ft | Bathrooms | 1 |
| Height | 33 ft 6 in | Bedrooms | 3 |
| Master bedroom | Bathtub + Shower + Single sink + Wardrobe + Double doors + Toilet | ||
| First floor area | 750 ft² | Exterior walls | Aluminum + Brick |
| Second floor area | 765 ft² | Kitchen | Meal counter |
| Garage area | 384 ft² | Garages | 1 |
| Garage wall | 8 ft | First floor wall | 8 ft |
| Second floor wall | 8 ft | ||
| Left/right roof slope | 12/12 |
| House style | Victorian |
|---|---|
|
Construction price
Approximate amount equivalent to what it would cost to have a general contractor (Montreal's South Shore region) build a similar home, excluding the lot and the infrastructure.
|
318226 $ |
| Front | 38 ft |
| Total living surface | 1515 ft² |
| Depth | 34 ft |
| Bathrooms | 1 |
| Height | 33 ft 6 in |
| Bedrooms | 3 |
| Master bedroom | Bathtub + Shower + Single sink + Wardrobe + Double doors + Toilet |
| First floor area | 750 ft² |
| Exterior walls | Aluminum + Brick |
| Second floor area | 765 ft² |
| Kitchen | Meal counter |
| Garage area | 384 ft² |
| Garages | 1 |
| Garage wall | 8 ft |
| First floor wall | 8 ft |
| Second floor wall | 8 ft |
| Left/right roof slope | 12/12 |