Description
NULL
Additional info
Measurements: Imperial| House style | Victorian |
Construction price
Approximate amount equivalent to what it would cost to have a general contractor (Montreal's South Shore region) build a similar home, excluding the lot and the infrastructure.
|
736296 $ |
|---|---|---|---|
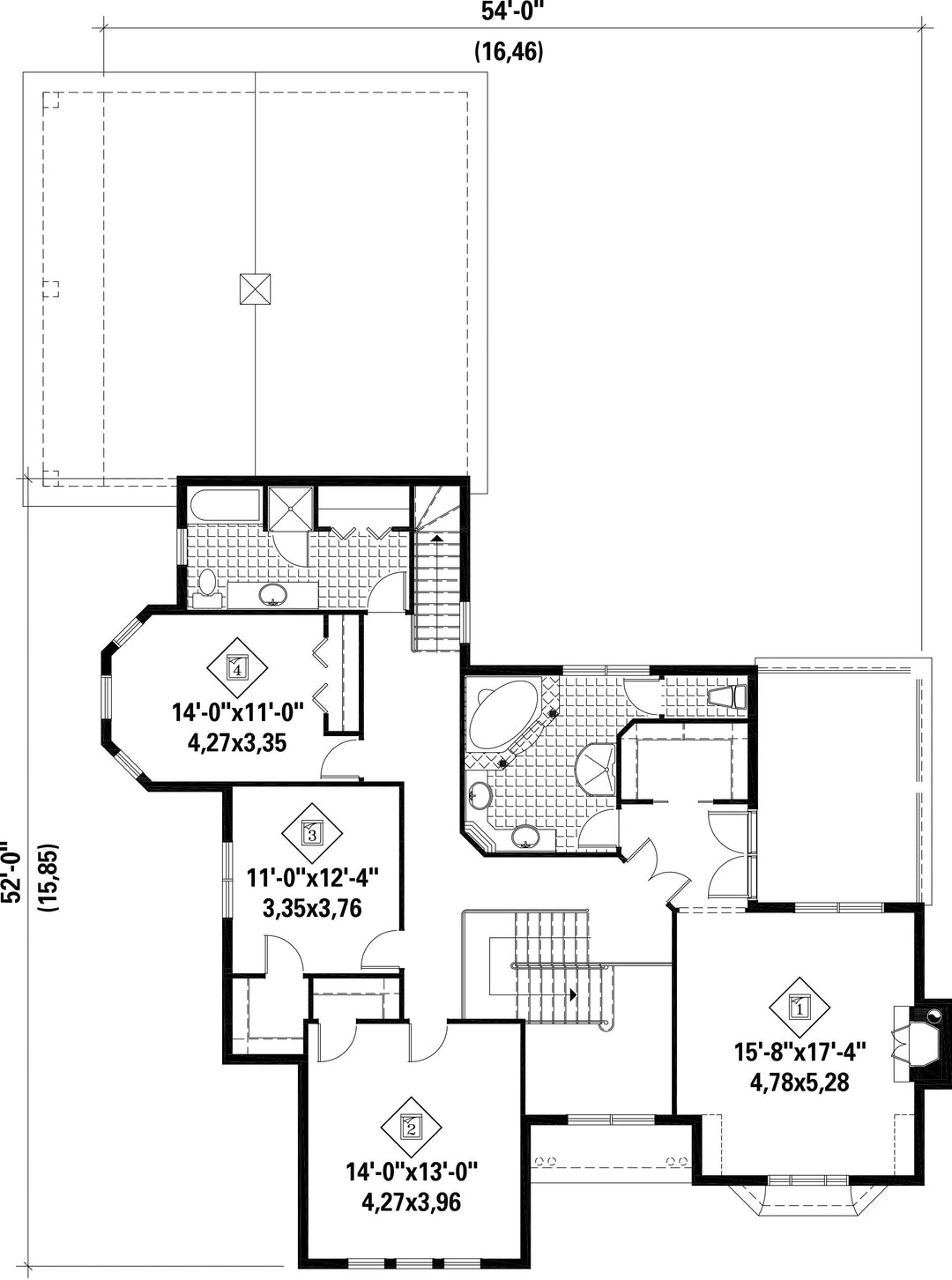
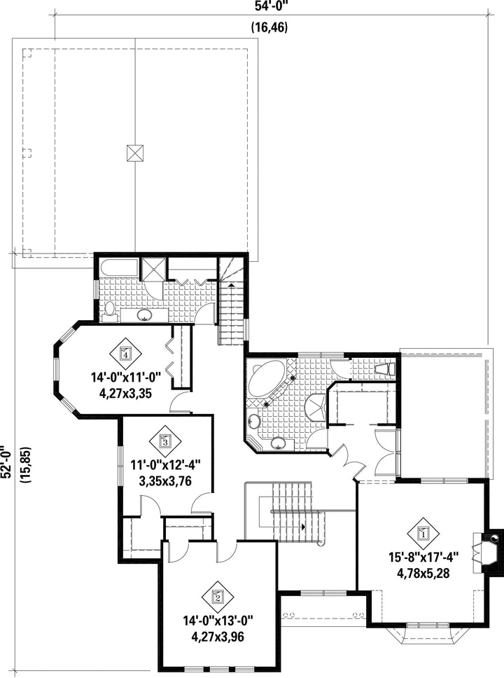
| Front | 54 ft | Total living surface | 3573 ft² |
| Depth | 77 ft | Bathrooms | 2 |
| Height | 32 ft 5 in | Bedrooms | 4 |
| Master bedroom | Podium bath + Shower + Fireplace + Double sink + Wardrobe + Double doors + Toilet | ||
| First floor area | 1870 ft² | Exterior walls | Aluminum + Brick + Fish Scales |
| Second floor area | 1703 ft² | Kitchen | Laboratory + Dining Room |
| Garage area | 615 ft² | Garages | 2 |
| Garage wall | 8 ft | First floor wall | 9 ft |
| Second floor wall | 8 ft | Front/back roof slope | 12/12 |
| Left/right roof slope | 12/12 |
| House style | Victorian |
|---|---|
|
Construction price
Approximate amount equivalent to what it would cost to have a general contractor (Montreal's South Shore region) build a similar home, excluding the lot and the infrastructure.
|
736296 $ |
| Front | 54 ft |
| Total living surface | 3573 ft² |
| Depth | 77 ft |
| Bathrooms | 2 |
| Height | 32 ft 5 in |
| Bedrooms | 4 |
| Master bedroom | Podium bath + Shower + Fireplace + Double sink + Wardrobe + Double doors + Toilet |
| First floor area | 1870 ft² |
| Exterior walls | Aluminum + Brick + Fish Scales |
| Second floor area | 1703 ft² |
| Kitchen | Laboratory + Dining Room |
| Garage area | 615 ft² |
| Garages | 2 |
| Garage wall | 8 ft |
| First floor wall | 9 ft |
| Second floor wall | 8 ft |
| Front/back roof slope | 12/12 |
| Left/right roof slope | 12/12 |