Description
This two-storey house has several interesting features such as double entrance doors, French doors overlooking a small balcony, decorative moldings and a turret in the front. All these architectural details give it an elegant look. The house is 44 feet wide by 31 feet deep and provides 1,730 square feet of living area.
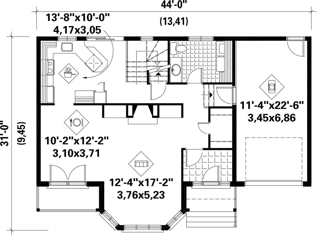
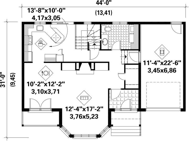
With an 857 square foot living area, the ground floor includes a closed entrance hall, a powder room with a laundry area, an open living room with a fireplace and a dining room, and a kitchen with a lunch counter. There is also a 288 square foot one-car garage with a back door.
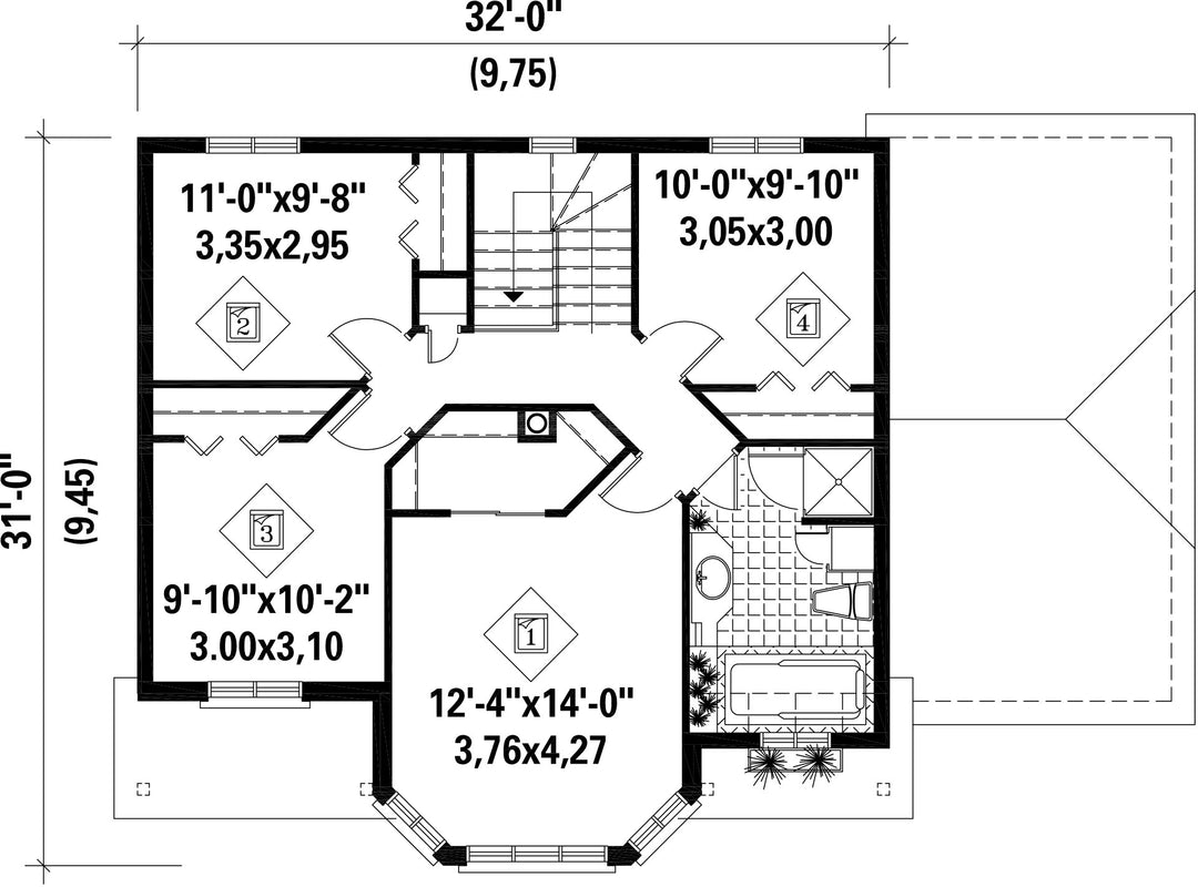
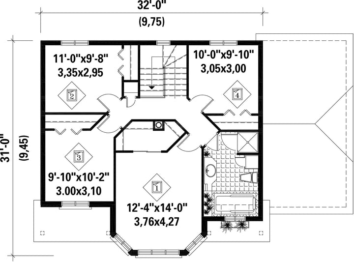
The upper floor covers 873 square feet and consists of a bathroom and four bedrooms including a master bedroom located in the turret with a large walk-in closet.
With an 857 square foot living area, the ground floor includes a closed entrance hall, a powder room with a laundry area, an open living room with a fireplace and a dining room, and a kitchen with a lunch counter. There is also a 288 square foot one-car garage with a back door.
The upper floor covers 873 square feet and consists of a bathroom and four bedrooms including a master bedroom located in the turret with a large walk-in closet.
Additional info
Measurements: Imperial| House style | Victorian |
Construction price
Approximate amount equivalent to what it would cost to have a general contractor (Montreal's South Shore region) build a similar home, excluding the lot and the infrastructure.
|
352480 $ |
|---|---|---|---|
| Front | 44 ft | Total living surface | 1730 ft² |
| Depth | 31 ft | Bathrooms | 1 |
| Height | 33 ft 8 in | Bedrooms | 4 |
| Master bedroom | Wardrobe | ||
| First floor area | 857 ft² | Exterior walls | Aluminum + Brick |
| Second floor area | 873 ft² | Kitchen | Lunch counter + L-shaped |
| Garage area | 288 ft² | Garages | 1 |
| Garage wall | 8 ft | First floor wall | 8 ft |
| Second floor wall | 8 ft | Front/back roof slope | 12/12 |
| Left/right roof slope | 12/12 |
| House style | Victorian |
|---|---|
|
Construction price
Approximate amount equivalent to what it would cost to have a general contractor (Montreal's South Shore region) build a similar home, excluding the lot and the infrastructure.
|
352480 $ |
| Front | 44 ft |
| Total living surface | 1730 ft² |
| Depth | 31 ft |
| Bathrooms | 1 |
| Height | 33 ft 8 in |
| Bedrooms | 4 |
| Master bedroom | Wardrobe |
| First floor area | 857 ft² |
| Exterior walls | Aluminum + Brick |
| Second floor area | 873 ft² |
| Kitchen | Lunch counter + L-shaped |
| Garage area | 288 ft² |
| Garages | 1 |
| Garage wall | 8 ft |
| First floor wall | 8 ft |
| Second floor wall | 8 ft |
| Front/back roof slope | 12/12 |
| Left/right roof slope | 12/12 |