Description
This pretty two-storey house stands out thanks to a brick facade, lovely decorative moldings and a veranda surrounding the front turret. The home provides 1,705 square feet of living space, has a 341 square foot one-car garage, and is 36 feet wide by 36 feet deep.
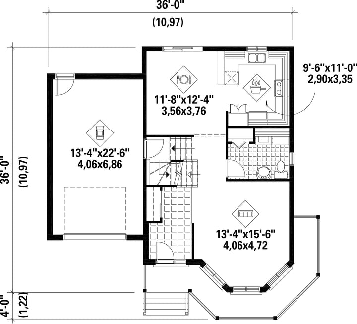
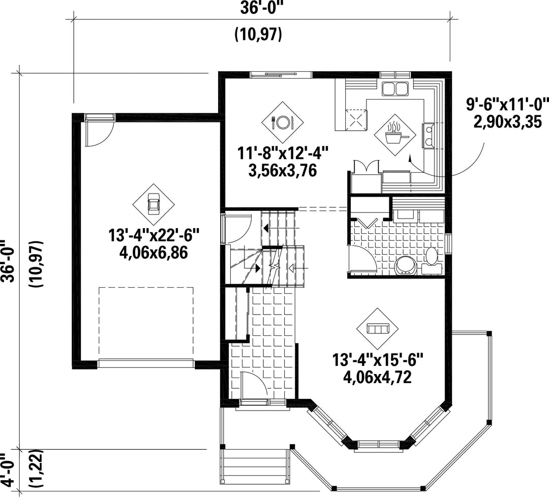
The ground floor covers 743 square feet and includes a powder room, a living room, a U-shaped kitchen with a lunch counter, and a dining room.
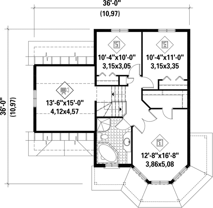
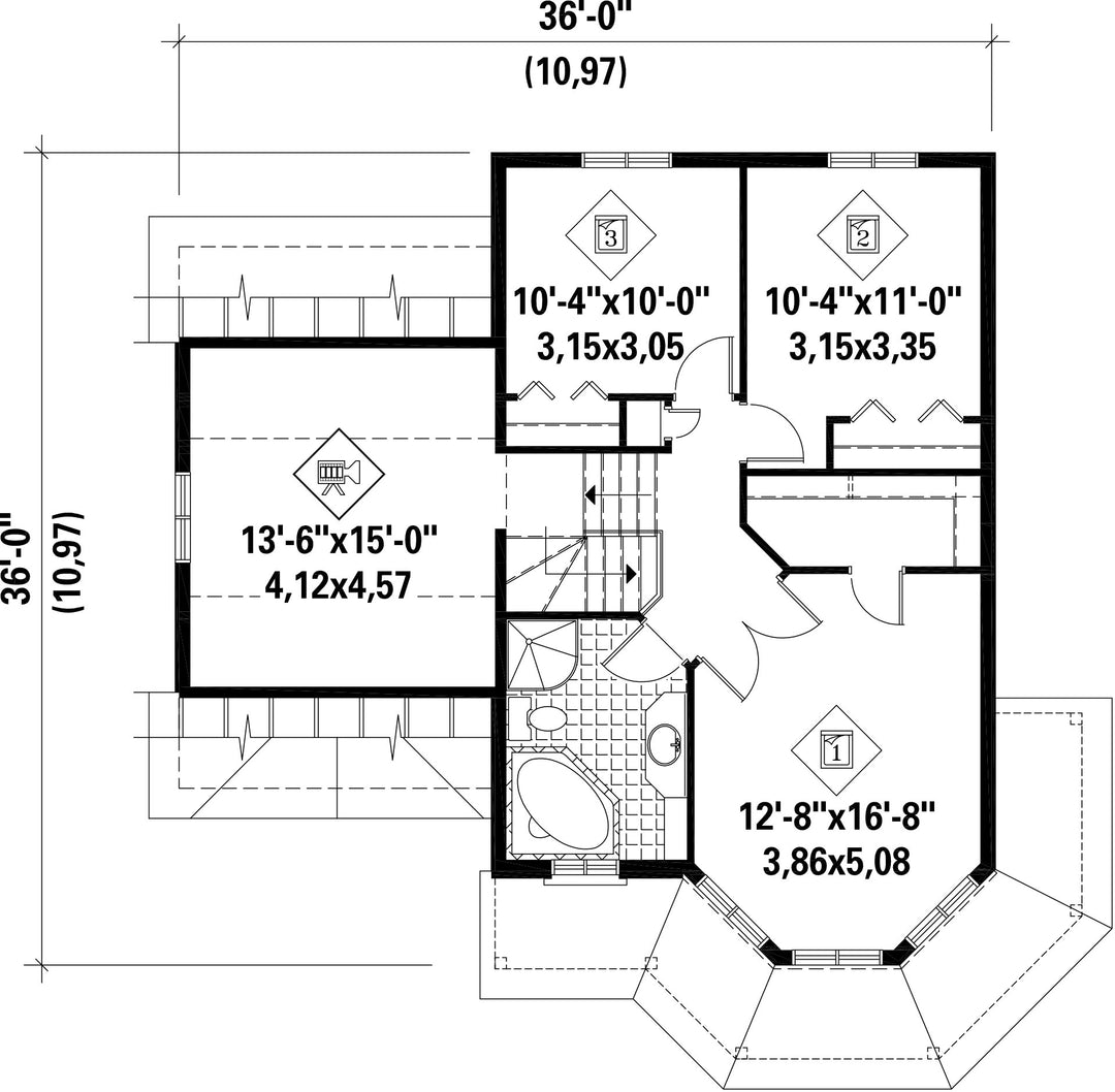
The upper floor has a 962 square foot living area that consists of a bathroom, three bedrooms, including a master bedroom with French doors and a large walk-in closet, as well as a room with a cathedral ceiling located above the garage that can be used as a home theater.
The ground floor covers 743 square feet and includes a powder room, a living room, a U-shaped kitchen with a lunch counter, and a dining room.
The upper floor has a 962 square foot living area that consists of a bathroom, three bedrooms, including a master bedroom with French doors and a large walk-in closet, as well as a room with a cathedral ceiling located above the garage that can be used as a home theater.
Additional info
Measurements: Imperial| House style | Victorian |
Construction price
Approximate amount equivalent to what it would cost to have a general contractor (Montreal's South Shore region) build a similar home, excluding the lot and the infrastructure.
|
336238 $ |
|---|---|---|---|
| Front | 36 ft | Total living surface | 1705 ft² |
| Depth | 36 ft | Bathrooms | 1 |
| Height | 33 ft 10 in | Bedrooms | 3 |
| Master bedroom | Walk in + Double doors | ||
| First floor area | 743 ft² | Exterior walls | Aluminum + Brick |
| Second floor area | 962 ft² | Kitchen | Snack + U shaped |
| Garage area | 341 ft² | Garages | 1 |
| Garage wall | 8 ft | First floor wall | 8 ft |
| Second floor wall | 8 ft | Front/back roof slope | 12/12 |
| Left/right roof slope | 12/12 |
| House style | Victorian |
|---|---|
|
Construction price
Approximate amount equivalent to what it would cost to have a general contractor (Montreal's South Shore region) build a similar home, excluding the lot and the infrastructure.
|
336238 $ |
| Front | 36 ft |
| Total living surface | 1705 ft² |
| Depth | 36 ft |
| Bathrooms | 1 |
| Height | 33 ft 10 in |
| Bedrooms | 3 |
| Master bedroom | Walk in + Double doors |
| First floor area | 743 ft² |
| Exterior walls | Aluminum + Brick |
| Second floor area | 962 ft² |
| Kitchen | Snack + U shaped |
| Garage area | 341 ft² |
| Garages | 1 |
| Garage wall | 8 ft |
| First floor wall | 8 ft |
| Second floor wall | 8 ft |
| Front/back roof slope | 12/12 |
| Left/right roof slope | 12/12 |