20360
20360
20360
20360
20360
20360

20360


Jeux de plans - Sets of plans
Regular price$1,089.00
/

This site is protected by hCaptcha and the hCaptcha Privacy Policy and Terms of Service apply.

Description

NULL

Additional info

Measurements: Imperial

House style Victorian Construction price 
Approximate amount equivalent to what it would cost to have a general contractor (Montreal's South Shore region) build a similar home, excluding the lot and the infrastructure.
322923 $
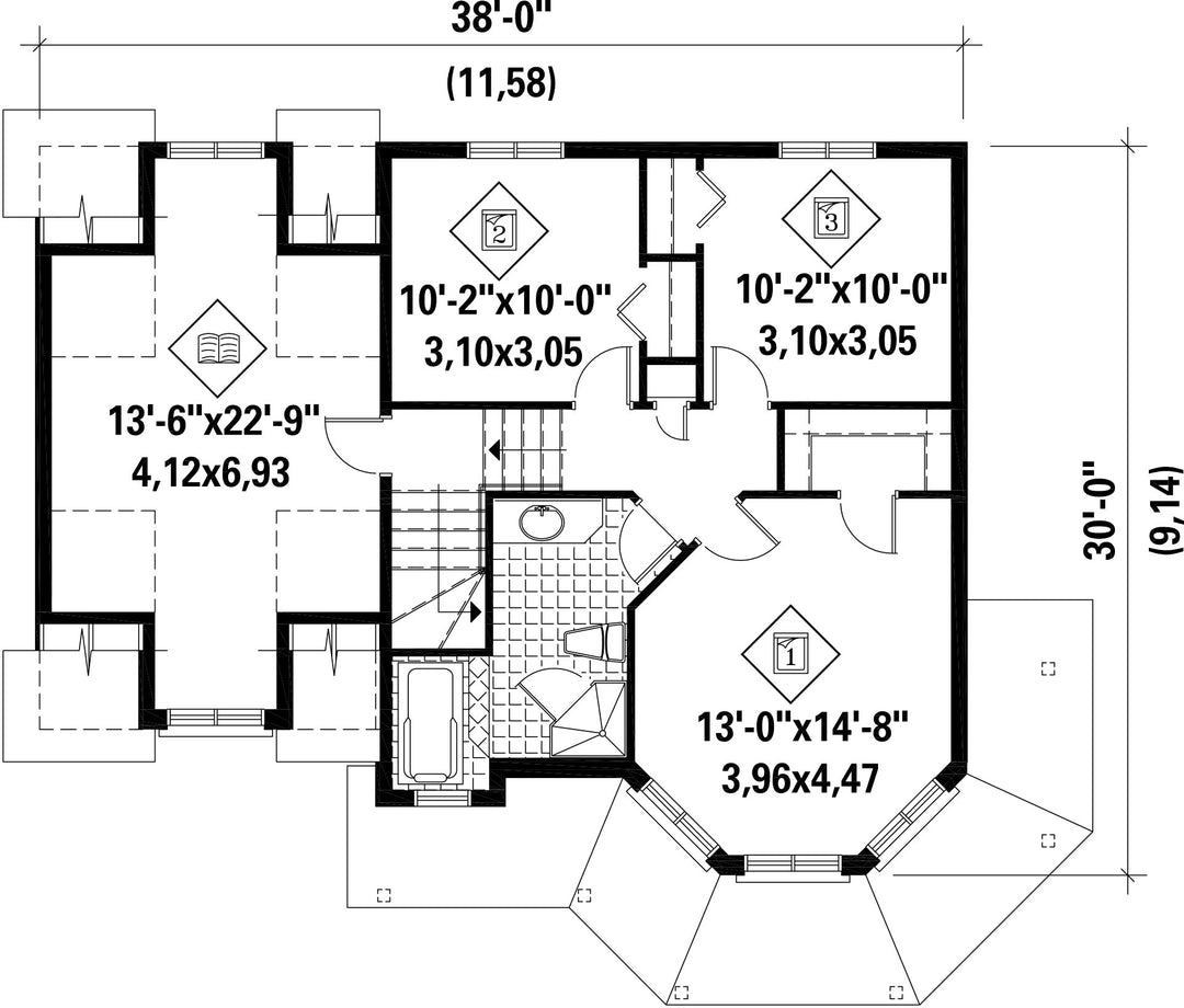
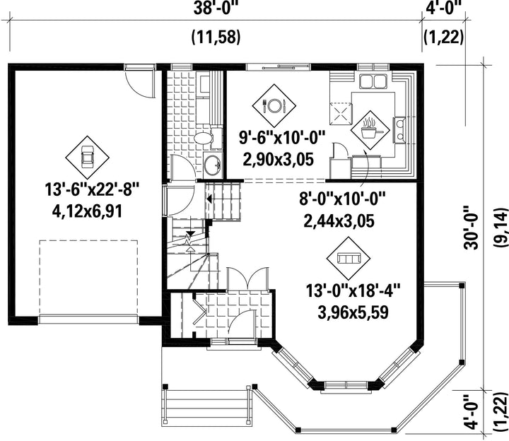
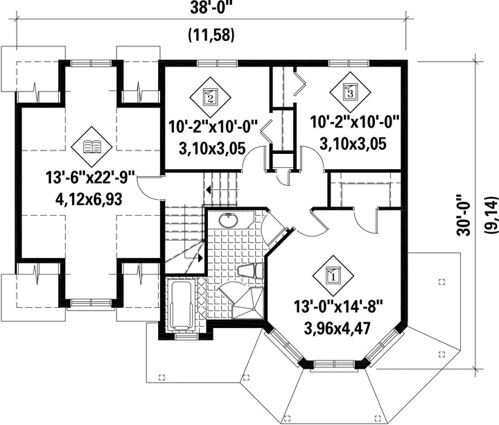
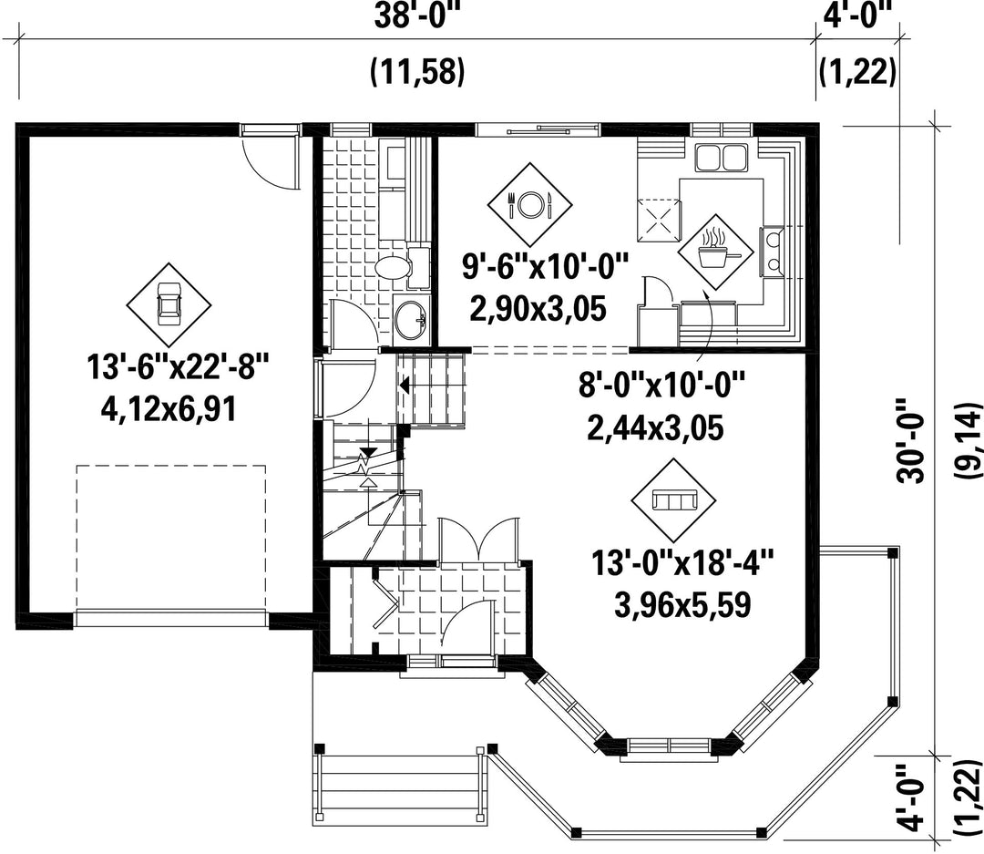
Front 38 ft Total living surface 1602 ft²
Depth 30 ftBathrooms 1
Height 36 ftBedrooms 3
Master bedroom Walk in
First floor area 664 ft² Exterior walls Aluminum + Cedar + Brick
Second floor area 938 ft² Kitchen U shaped
Garage area 336 ft² Garages 1
Garage wall 8 ftFirst floor wall 8 ft
Second floor wall 8 ftFront/back roof slope 12/12
House style Victorian
Construction price 
Approximate amount equivalent to what it would cost to have a general contractor (Montreal's South Shore region) build a similar home, excluding the lot and the infrastructure.
322923 $
Front 38 ft
Total living surface 1602 ft²
Depth 30 ft
Bathrooms 1
Height 36 ft
Bedrooms 3
Master bedroom Walk in
First floor area 664 ft²
Exterior walls Aluminum + Cedar + Brick
Second floor area 938 ft²
Kitchen U shaped
Garage area 336 ft²
Garages 1
Garage wall 8 ft
First floor wall 8 ft
Second floor wall 8 ft
Front/back roof slope 12/12

Ces plans de maison pourraient également vous intéresser


Recently viewed