Description
NULL
Additional info
Measurements: Imperial| House style | Victorian |
Construction price
Approximate amount equivalent to what it would cost to have a general contractor (Montreal's South Shore region) build a similar home, excluding the lot and the infrastructure.
|
302280 $ |
|---|---|---|---|
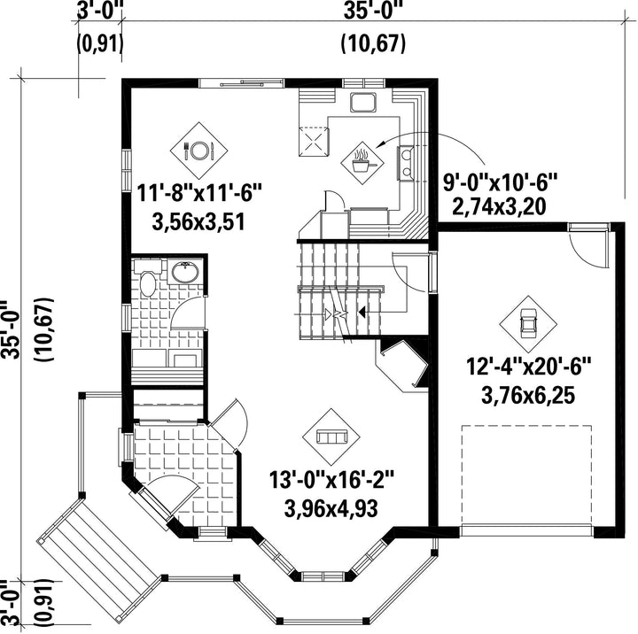
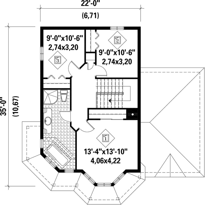
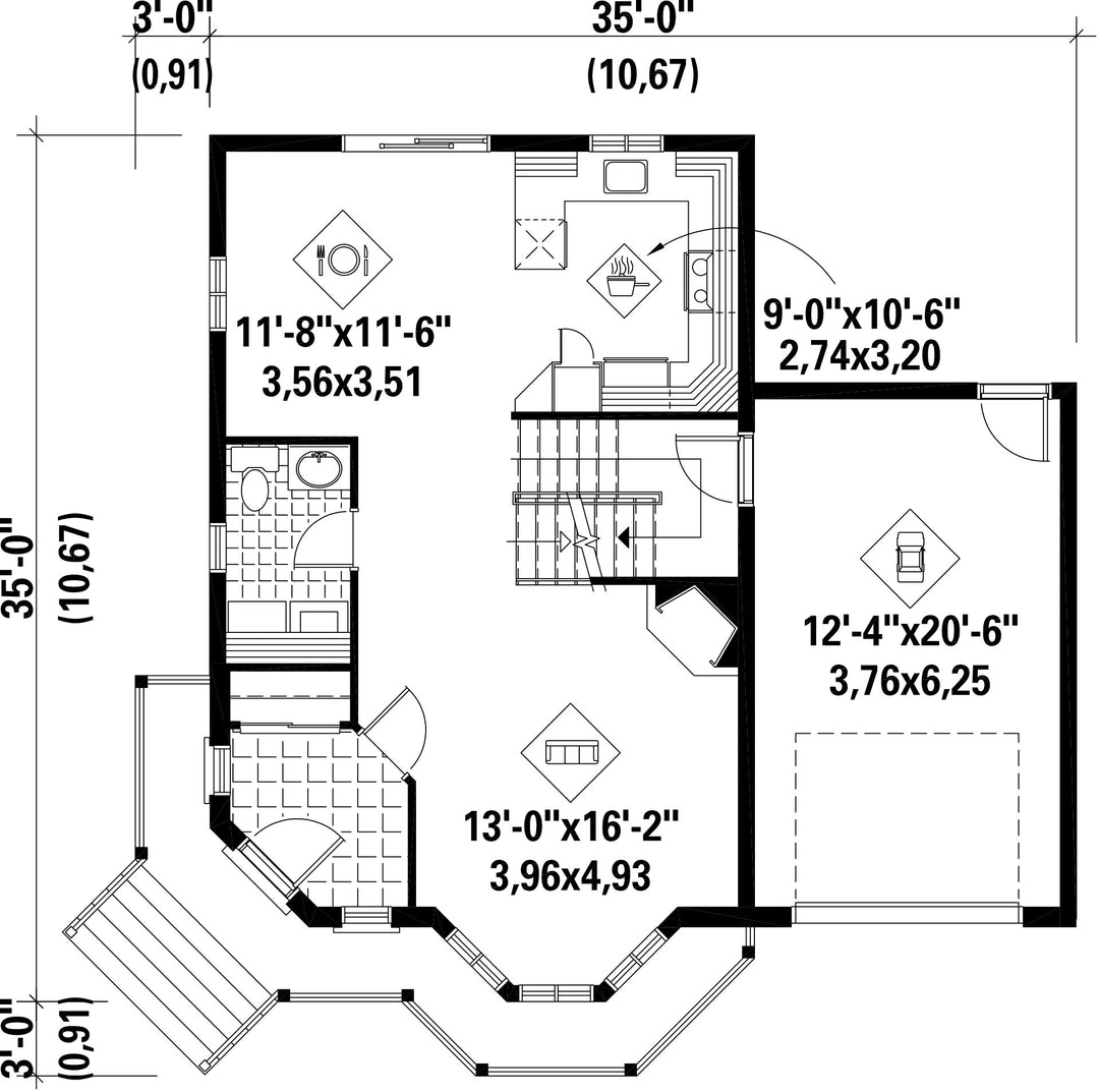
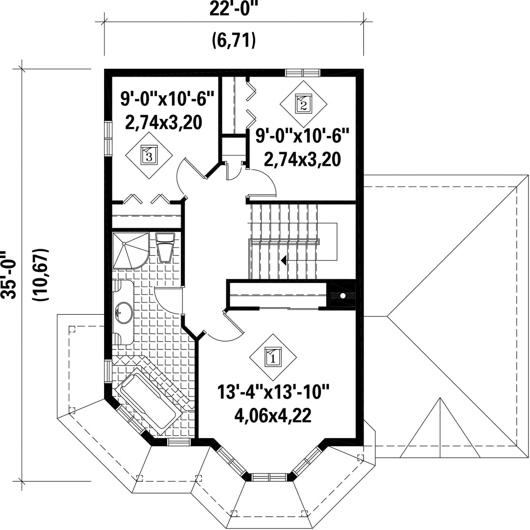
| Front | 35 ft | Total living surface | 1434 ft² |
| Depth | 35 ft | Bathrooms | 1 |
| Height | 30 ft 8 in | Bedrooms | 3 |
| Master bedroom | N / A | Master bedroom - comments | --- |
| First floor area | 717 ft² | Exterior walls | Aluminum + Brick |
| Second floor area | 717 ft² | Kitchen | U-shape |
| Garage area | 286 ft² | Garages | 1 |
| Garage wall | 8 ft | First floor wall | 9 ft |
| Second floor wall | 8 ft | Front/back roof slope | 8/12 |
| Left/right roof slope | 8/12 |
| House style | Victorian |
|---|---|
|
Construction price
Approximate amount equivalent to what it would cost to have a general contractor (Montreal's South Shore region) build a similar home, excluding the lot and the infrastructure.
|
302280 $ |
| Front | 35 ft |
| Total living surface | 1434 ft² |
| Depth | 35 ft |
| Bathrooms | 1 |
| Height | 30 ft 8 in |
| Bedrooms | 3 |
| Master bedroom | N / A |
| Master bedroom - comments | --- |
| First floor area | 717 ft² |
| Exterior walls | Aluminum + Brick |
| Second floor area | 717 ft² |
| Kitchen | U-shape |
| Garage area | 286 ft² |
| Garages | 1 |
| Garage wall | 8 ft |
| First floor wall | 9 ft |
| Second floor wall | 8 ft |
| Front/back roof slope | 8/12 |
| Left/right roof slope | 8/12 |