Description
NULL
Additional info
Measurements: Imperial| House style | Victorian |
Construction price
Approximate amount equivalent to what it would cost to have a general contractor (Montreal's South Shore region) build a similar home, excluding the lot and the infrastructure.
|
430656 $ |
|---|---|---|---|
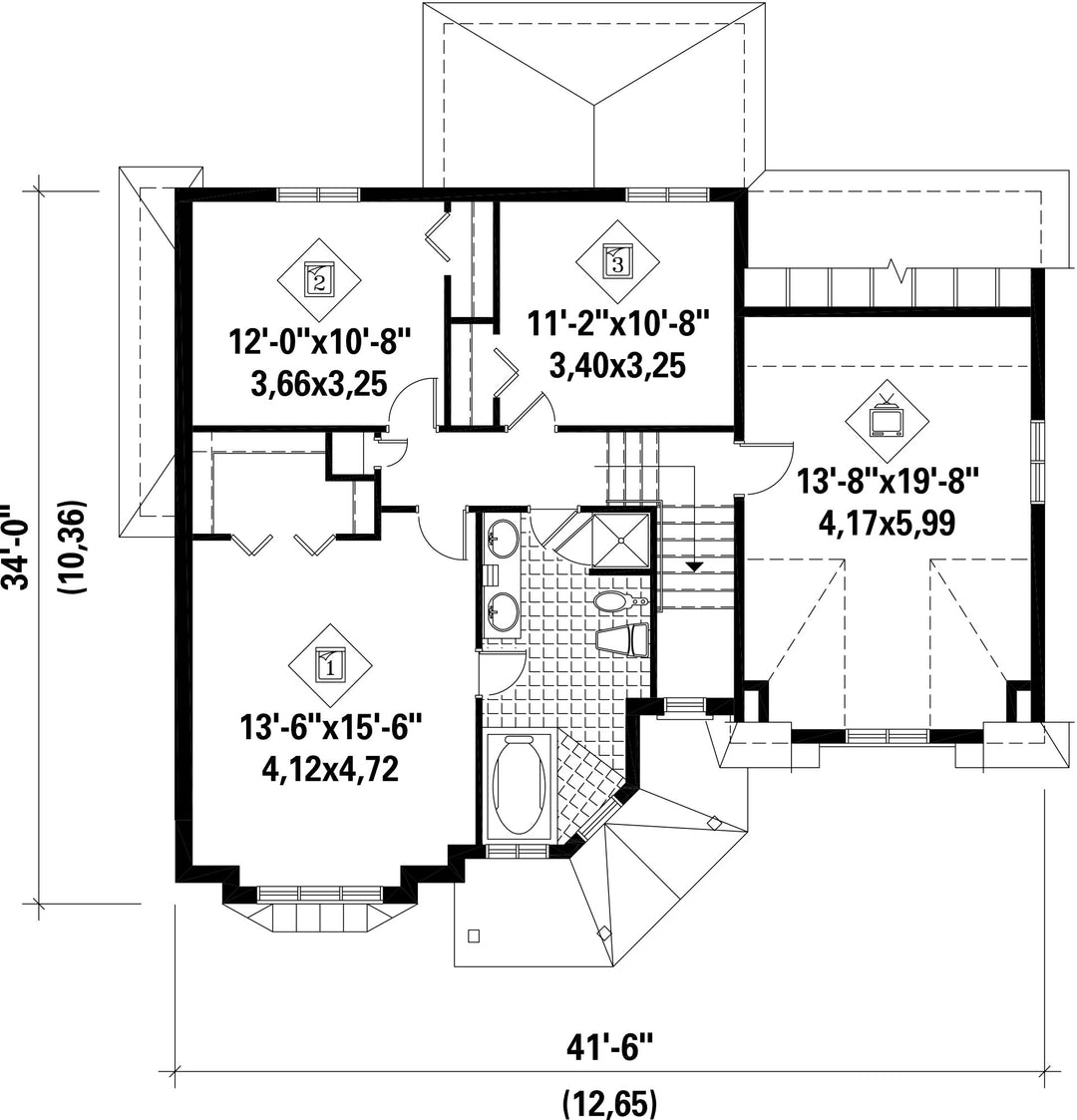
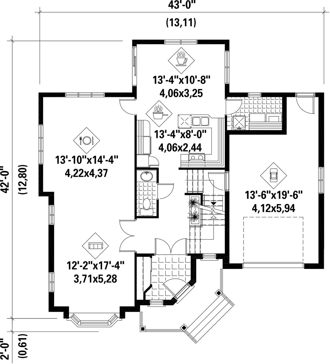
| Front | 43 ft | Total living surface | 2186 ft² |
| Depth | 42 ft | Bathrooms | 1 |
| Height | 32 ft 3 in | Bedrooms | 3 |
| Master bedroom | Wardrobe | ||
| First floor area | 1045 ft² | Exterior walls | Aluminum + Brick |
| Second floor area | 1141 ft² | Kitchen | Dining area + L-shaped + Dining room |
| Garage area | 327 ft² | Garages | 1 |
| Garage wall | 8 ft | First floor wall | 8 ft |
| Second floor wall | 8 ft | Front/back roof slope | 10/12 |
| House style | Victorian |
|---|---|
|
Construction price
Approximate amount equivalent to what it would cost to have a general contractor (Montreal's South Shore region) build a similar home, excluding the lot and the infrastructure.
|
430656 $ |
| Front | 43 ft |
| Total living surface | 2186 ft² |
| Depth | 42 ft |
| Bathrooms | 1 |
| Height | 32 ft 3 in |
| Bedrooms | 3 |
| Master bedroom | Wardrobe |
| First floor area | 1045 ft² |
| Exterior walls | Aluminum + Brick |
| Second floor area | 1141 ft² |
| Kitchen | Dining area + L-shaped + Dining room |
| Garage area | 327 ft² |
| Garages | 1 |
| Garage wall | 8 ft |
| First floor wall | 8 ft |
| Second floor wall | 8 ft |
| Front/back roof slope | 10/12 |