Description
This magnificent urban two-storey house has unique features, both indoors and outdoors. The house is 33 feet 10 inches wide by 33 feet deep and provides 1,581 square feet of living space. There is also a 261 square-foot one-car garage. Planimage also features another version of the same plan, but with a single-pitch roof. Refer to plan 21224.
The open ground floor has a 741 square-foot living area and the ceilings are nine feet high. It features a double-height living room separated from the dining room by a three-sided gas fireplace, as well as a kitchen with a large island that can sit four people. The powder room and the laundry room are located on the garage landing.
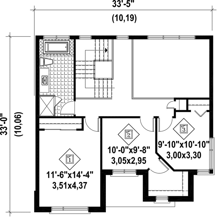
The second floor provides 840 square feet of living space and includes three bedrooms and a bathroom. Its mezzanine overlooks the living room.
The open ground floor has a 741 square-foot living area and the ceilings are nine feet high. It features a double-height living room separated from the dining room by a three-sided gas fireplace, as well as a kitchen with a large island that can sit four people. The powder room and the laundry room are located on the garage landing.
The second floor provides 840 square feet of living space and includes three bedrooms and a bathroom. Its mezzanine overlooks the living room.
Additional info
Measurements: Imperial| House style | Urban |
Construction price
Approximate amount equivalent to what it would cost to have a general contractor (Montreal's South Shore region) build a similar home, excluding the lot and the infrastructure.
|
393506 $ |
|---|---|---|---|
| Front | 33 ft 10 in | Total living surface | 1581 ft² |
| Depth | 33 ft | Bathrooms | 1 |
| Height | 26 ft 4 in | Bedrooms | 3 |
| Master bedroom | N / A | ||
| First floor area | 741 ft² | Exterior walls | Aluminum + Wood + Brick + Stone |
| Second floor area | 840 ft² | Kitchen | Laboratory + Island |
| Garage area | 261 ft² | Garages | 1 |
| Garage wall | 8 ft | First floor wall | 9 ft |
| Second floor wall | 8 ft | Front/back roof slope | N / A |
| Left/right roof slope | N / A |
| House style | Urban |
|---|---|
|
Construction price
Approximate amount equivalent to what it would cost to have a general contractor (Montreal's South Shore region) build a similar home, excluding the lot and the infrastructure.
|
393506 $ |
| Front | 33 ft 10 in |
| Total living surface | 1581 ft² |
| Depth | 33 ft |
| Bathrooms | 1 |
| Height | 26 ft 4 in |
| Bedrooms | 3 |
| Master bedroom | N / A |
| First floor area | 741 ft² |
| Exterior walls | Aluminum + Wood + Brick + Stone |
| Second floor area | 840 ft² |
| Kitchen | Laboratory + Island |
| Garage area | 261 ft² |
| Garages | 1 |
| Garage wall | 8 ft |
| First floor wall | 9 ft |
| Second floor wall | 8 ft |
| Front/back roof slope | N / A |
| Left/right roof slope | N / A |