Description
Who wouldn't dream about a safe haven like this one? This lovely two-storey cottage, contemporary in style, will be ideally situated near a lake with its large windows and its rear screened veranda. The cottage is 30 feet wide by 30 feet deep and offers a living area of 1,296 square feet.
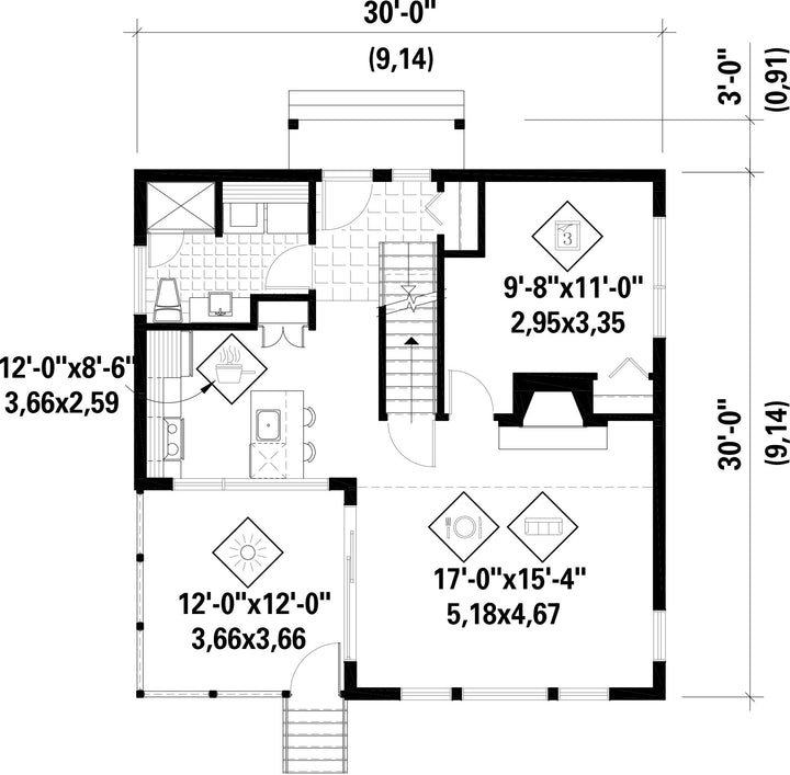
The 756 square feet ground floor of this secondary residence has a small vestibule with a closet, a bathroom with space available for a washer and a dryer, a kitchen with lunch counter, an open-plan area including a dining room and a living room with wood fireplace opening on to a veranda and a cathedral ceiling.
The 540 square feet mezzanine upstairs, overlooking the living room, has two bedrooms, the main bedroom having a wardrobe and a private terrace.
The 756 square feet ground floor of this secondary residence has a small vestibule with a closet, a bathroom with space available for a washer and a dryer, a kitchen with lunch counter, an open-plan area including a dining room and a living room with wood fireplace opening on to a veranda and a cathedral ceiling.
The 540 square feet mezzanine upstairs, overlooking the living room, has two bedrooms, the main bedroom having a wardrobe and a private terrace.
Additional info
Measurements: Imperial| House style | Urban |
Construction price
Approximate amount equivalent to what it would cost to have a general contractor (Montreal's South Shore region) build a similar home, excluding the lot and the infrastructure.
|
307997 $ |
|---|---|---|---|
| Front | 30 ft | Total living surface | 1296 ft² |
| Depth | 30 ft | Bathrooms | 1 |
| Height | 30 ft 6 in | Bedrooms | 3 |
| Master bedroom | Wardrobe | ||
| First floor area | 756 ft² | Exterior walls | Drink |
| Second floor area | 540 ft² | Kitchen | Meal counter + Laboratory |
| Garages | 0 | ||
| First floor wall | 10 ft | ||
| Second floor wall | 8 ft | Front/back roof slope | 4/12 |
| Left/right roof slope | N / A |
| House style | Urban |
|---|---|
|
Construction price
Approximate amount equivalent to what it would cost to have a general contractor (Montreal's South Shore region) build a similar home, excluding the lot and the infrastructure.
|
307997 $ |
| Front | 30 ft |
| Total living surface | 1296 ft² |
| Depth | 30 ft |
| Bathrooms | 1 |
| Height | 30 ft 6 in |
| Bedrooms | 3 |
| Master bedroom | Wardrobe |
| First floor area | 756 ft² |
| Exterior walls | Drink |
| Second floor area | 540 ft² |
| Kitchen | Meal counter + Laboratory |
| Garages | 0 |
| First floor wall | 10 ft |
| Second floor wall | 8 ft |
| Front/back roof slope | 4/12 |
| Left/right roof slope | N / A |