Description
Ideal to enjoy nature, in summer or wintertime, this lovely cottage has large panoramic windows and a wood exterior cladding. This secondary residence is 30 feet wide by 40 feet deep and has a living area of 1,838 square feet.
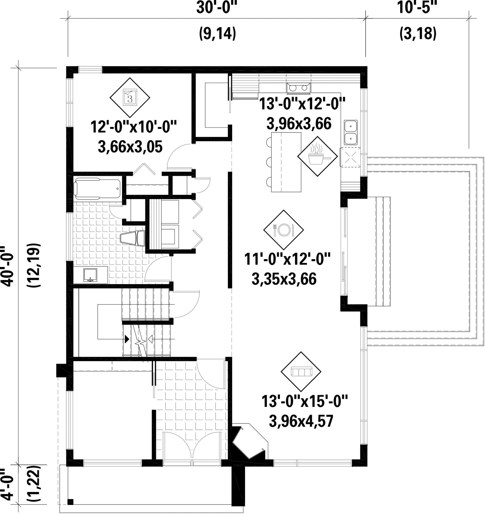
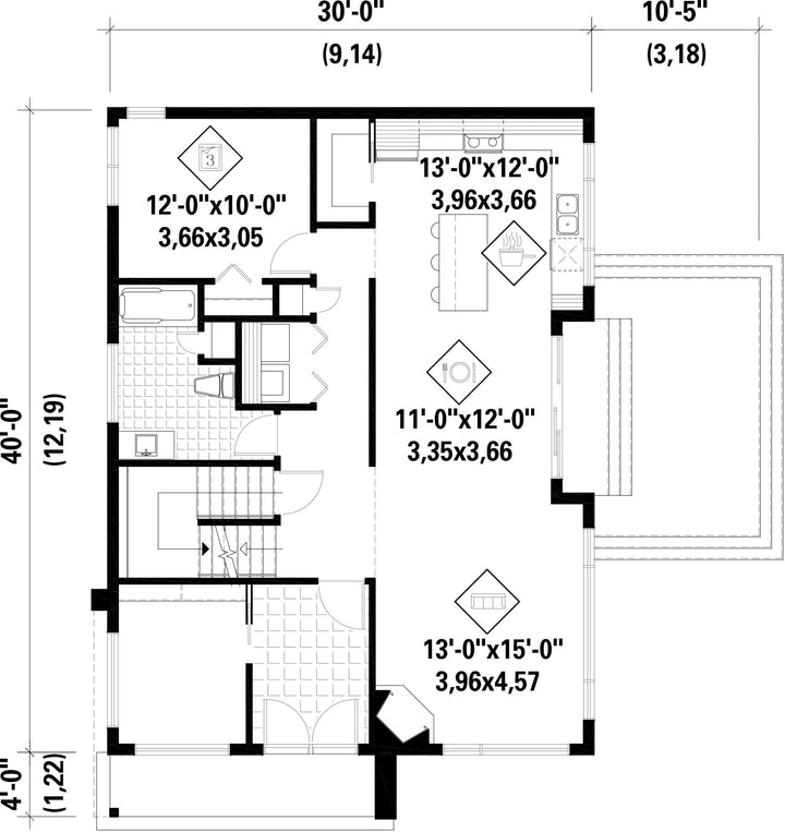
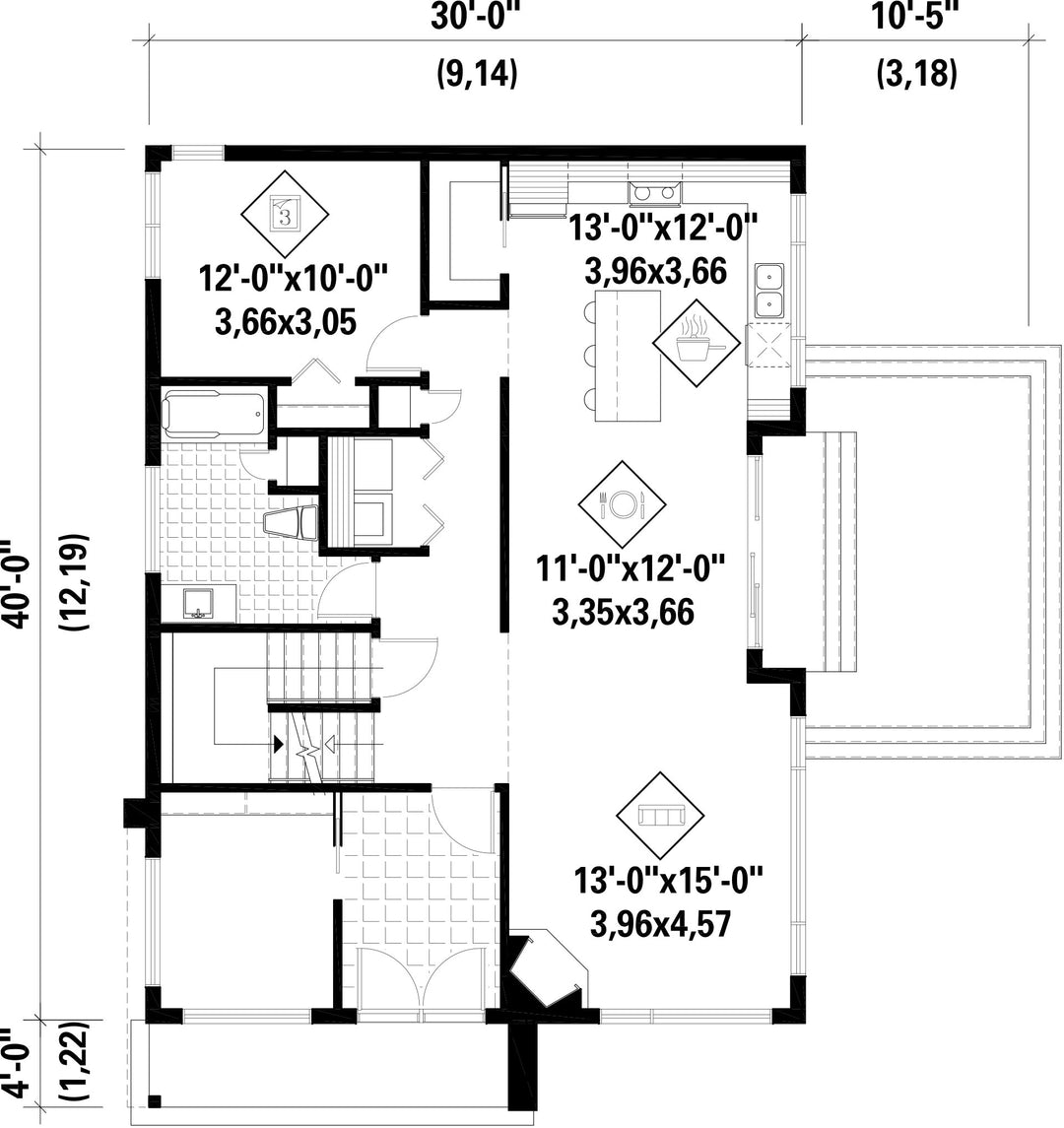
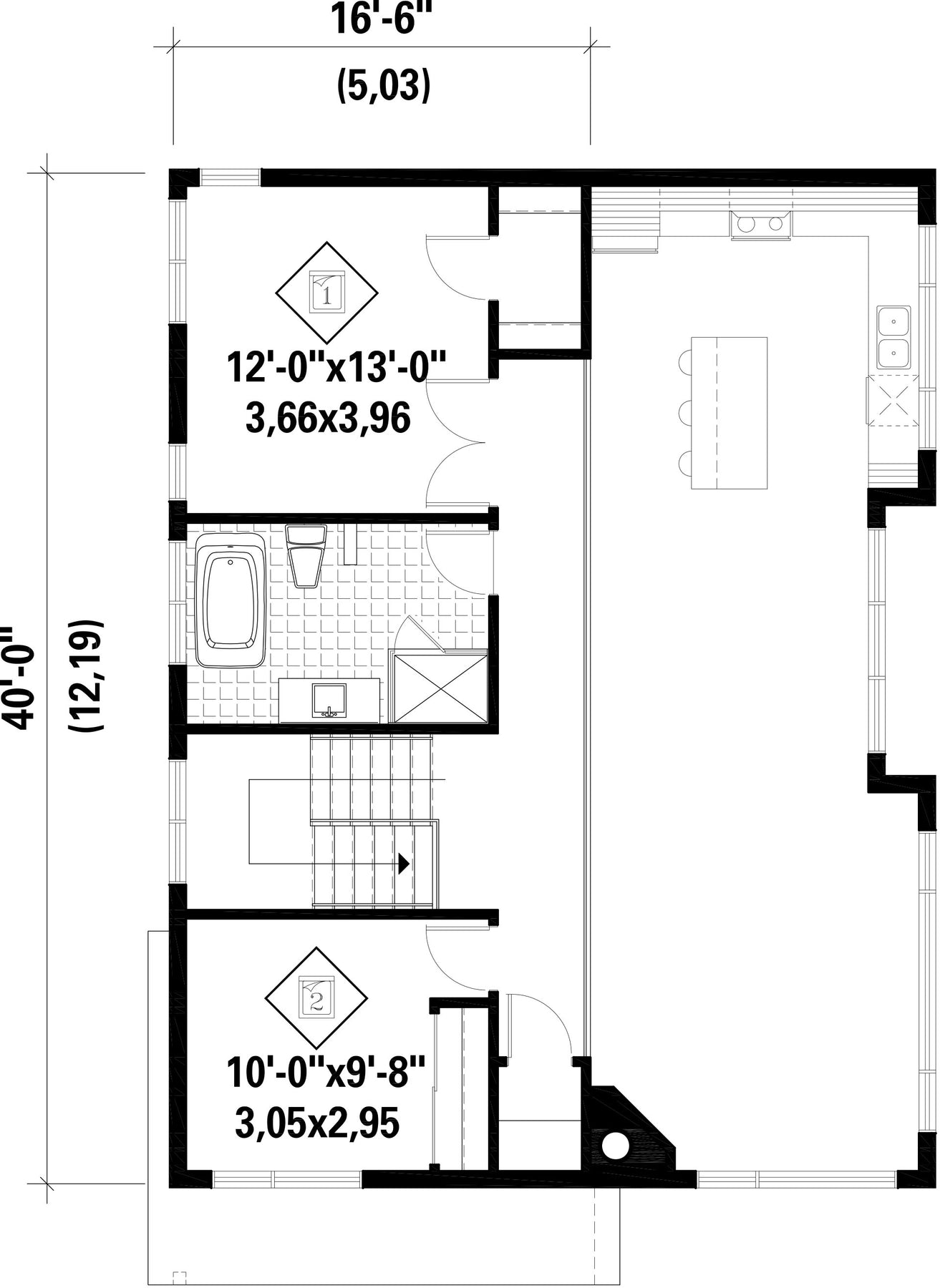
With its living area of 1,178 square feet, the ground floor has a large vestibule with a large walk-in closet, a closet with space available for a washer and a dryer, a bathroom, a bedroom, as well as a kitchen with an island and a large pantry, a dining room and a living room with a wood fireplace at a corner located in an open area with cathedral ceiling and under an overhead mezzanine.
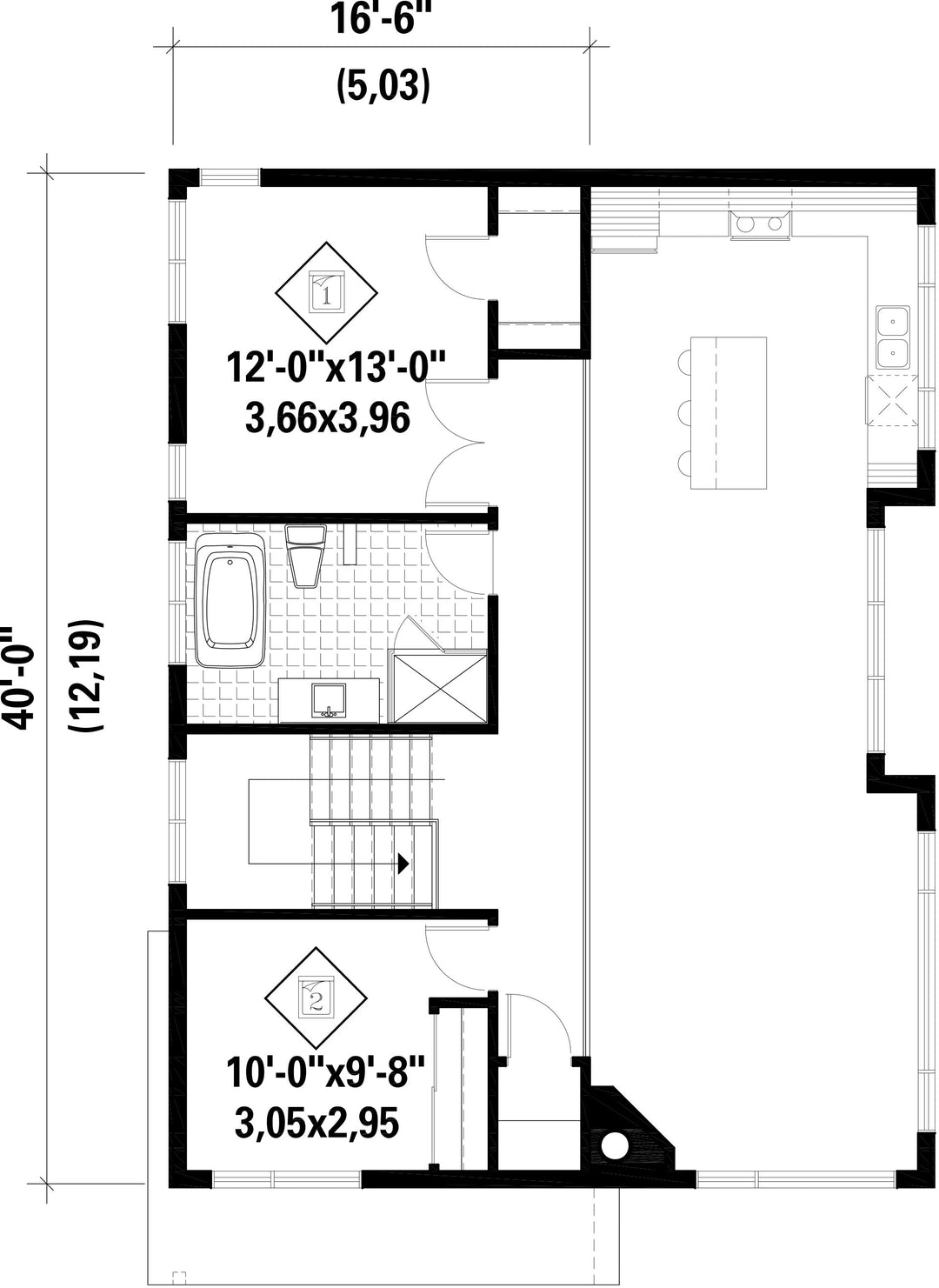
With 660 square feet, the upstairs mezzanine has a bathroom and two bedrooms.
With its living area of 1,178 square feet, the ground floor has a large vestibule with a large walk-in closet, a closet with space available for a washer and a dryer, a bathroom, a bedroom, as well as a kitchen with an island and a large pantry, a dining room and a living room with a wood fireplace at a corner located in an open area with cathedral ceiling and under an overhead mezzanine.
With 660 square feet, the upstairs mezzanine has a bathroom and two bedrooms.
Additional info
Measurements: Imperial| House style | Urban |
Construction price
Approximate amount equivalent to what it would cost to have a general contractor (Montreal's South Shore region) build a similar home, excluding the lot and the infrastructure.
|
426303 $ |
|---|---|---|---|
| Front | 30 ft | Total living surface | 1838 ft² |
| Depth | 40 ft | Bathrooms | 2 |
| Height | 27 ft 1 in | Bedrooms | 3 |
| Master bedroom | Wardrobe + Double Doors | ||
| First floor area | 1178 ft² | Exterior walls | Drink |
| Second floor area | 660 ft² | Kitchen | L-shaped + Island |
| Garages | 0 | ||
| First floor wall | 10 ft | ||
| Second floor wall | 8 ft | Front/back roof slope | N / A |
| Left/right roof slope | 4/12 |
| House style | Urban |
|---|---|
|
Construction price
Approximate amount equivalent to what it would cost to have a general contractor (Montreal's South Shore region) build a similar home, excluding the lot and the infrastructure.
|
426303 $ |
| Front | 30 ft |
| Total living surface | 1838 ft² |
| Depth | 40 ft |
| Bathrooms | 2 |
| Height | 27 ft 1 in |
| Bedrooms | 3 |
| Master bedroom | Wardrobe + Double Doors |
| First floor area | 1178 ft² |
| Exterior walls | Drink |
| Second floor area | 660 ft² |
| Kitchen | L-shaped + Island |
| Garages | 0 |
| First floor wall | 10 ft |
| Second floor wall | 8 ft |
| Front/back roof slope | N / A |
| Left/right roof slope | 4/12 |