Description
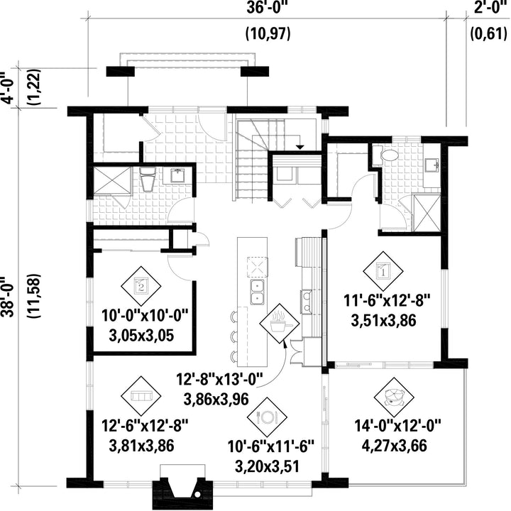
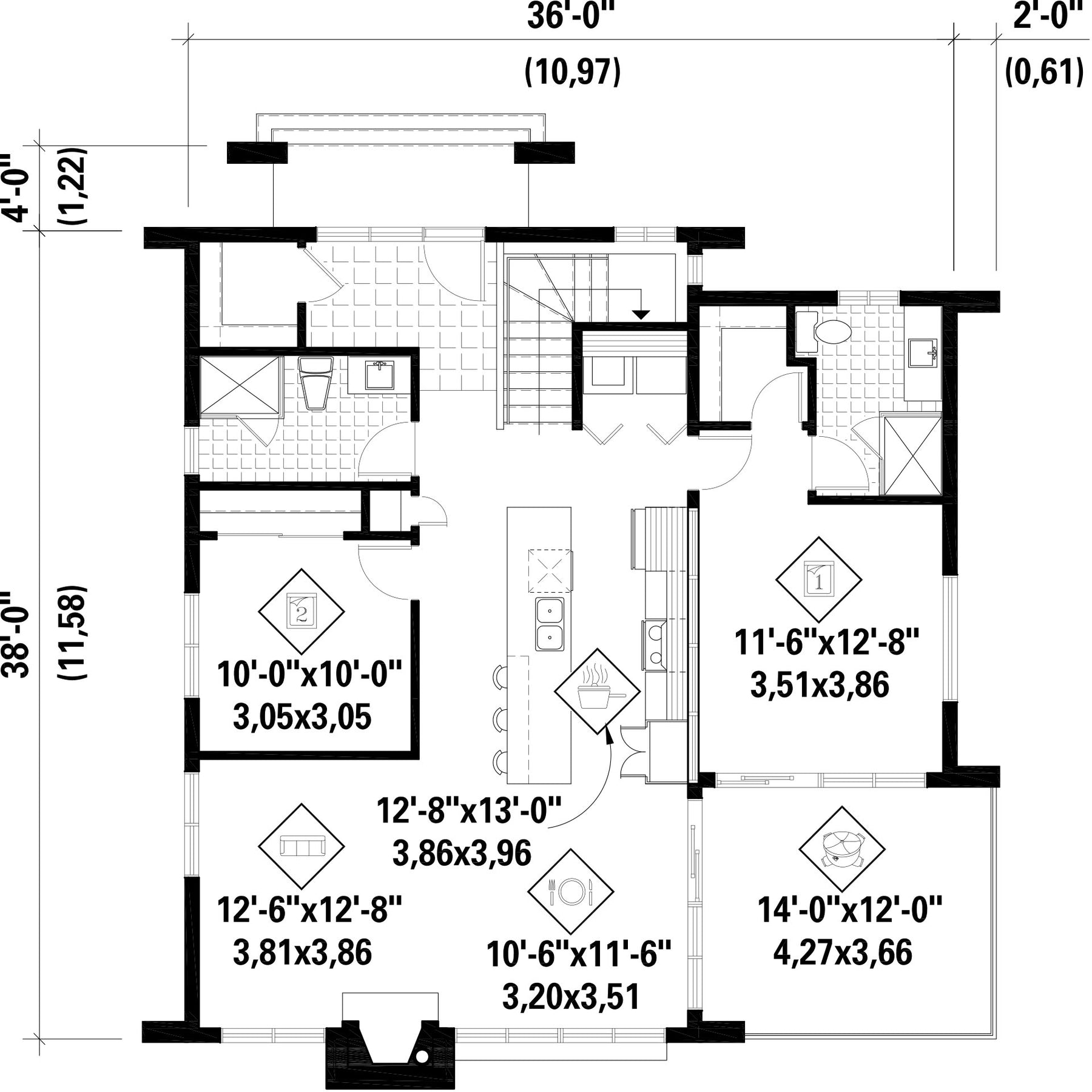
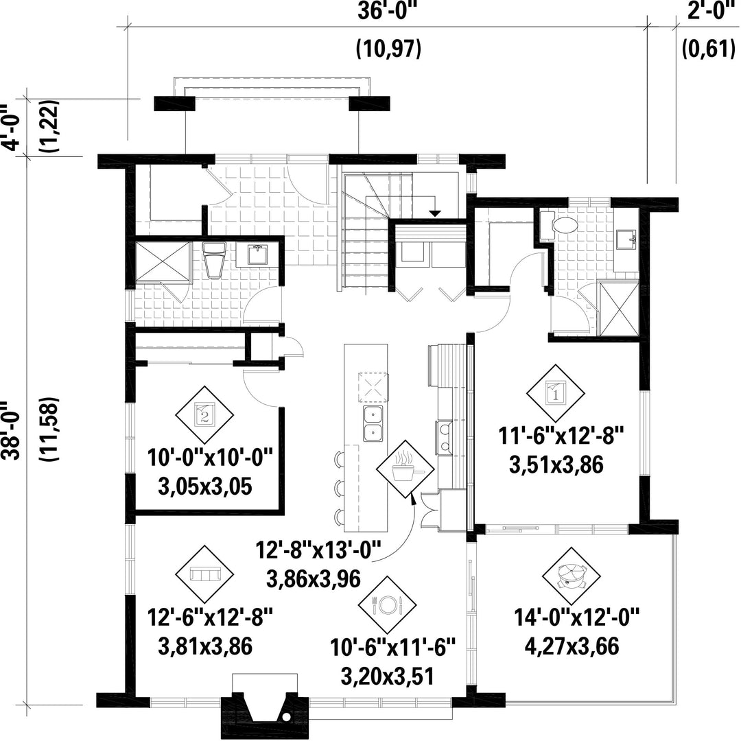
With its balcony and a generous fenestration, this pretty cottage is 36 feet wide by 38 feet deep, it offers a living area of 1,188 square feet and will certainly differentiate itself from the others.
In addition to a cathedral ceiling in every room, the cottage offers a large vestibule with a closet, a living room and a dining room sharing a wood fireplace and a kitchen with a center island where lots of natural light is provided by transoms located on top of the wall. It also provides a family bathroom and two bedrooms, including a master bedroom with private bathroom and a large wardrobe.
In addition to a cathedral ceiling in every room, the cottage offers a large vestibule with a closet, a living room and a dining room sharing a wood fireplace and a kitchen with a center island where lots of natural light is provided by transoms located on top of the wall. It also provides a family bathroom and two bedrooms, including a master bedroom with private bathroom and a large wardrobe.
Additional info
Measurements: Imperial| House style | Urban |
Construction price
Approximate amount equivalent to what it would cost to have a general contractor (Montreal's South Shore region) build a similar home, excluding the lot and the infrastructure.
|
360796 $ |
|---|---|---|---|
| Front | 36 ft | Total living surface | 1188 ft² |
| Depth | 38 ft | Bathrooms | 2 |
| Height | 28 ft 6 in | Bedrooms | 2 |
| Master bedroom | Shower + Single sink + Wardrobe + Toilet | ||
| First floor area | 1188 ft² | Exterior walls | Wood + Stone |
| Kitchen | Laboratory + Island | ||
| Garages | 0 | ||
| First floor wall | 10 ft | ||
| Front/back roof slope | N / A | ||
| Left/right roof slope | 4/12 |
| House style | Urban |
|---|---|
|
Construction price
Approximate amount equivalent to what it would cost to have a general contractor (Montreal's South Shore region) build a similar home, excluding the lot and the infrastructure.
|
360796 $ |
| Front | 36 ft |
| Total living surface | 1188 ft² |
| Depth | 38 ft |
| Bathrooms | 2 |
| Height | 28 ft 6 in |
| Bedrooms | 2 |
| Master bedroom | Shower + Single sink + Wardrobe + Toilet |
| First floor area | 1188 ft² |
| Exterior walls | Wood + Stone |
| Kitchen | Laboratory + Island |
| Garages | 0 |
| First floor wall | 10 ft |
| Front/back roof slope | N / A |
| Left/right roof slope | 4/12 |