Description
Clad in aluminum, stone and wood with several windows, this intergenerational house featuring two independent units is ideally suited for a family who wants to live with aging parents. The home is 36 feet wide by 38 feet deep, and provides a total living area of 2,051 square feet.
Each unit has its own entrance, one in front of the house, and the other on the side. Furthermore, both units can be accessed from the inside through a connecting door. The ground floor has a total living area of 1,328 square feet. The main unit has nine-foot high ceilings and features a powder room with a laundry area, a living room, a dining room and a kitchen that includes a large island with a sink. The smaller second unit features one bedroom in the front, a complete bathroom with a laundry area, as well as a living room, a dining room and a kitchen overlooking the back.
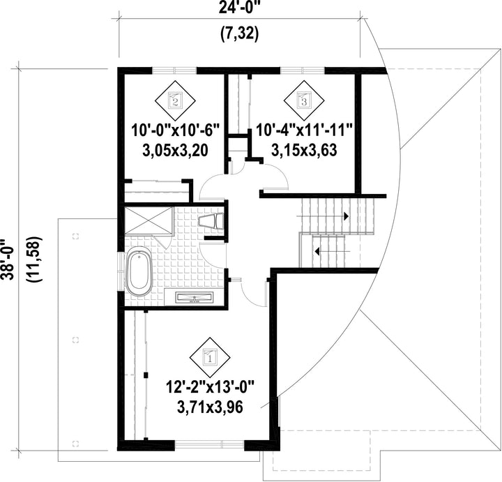
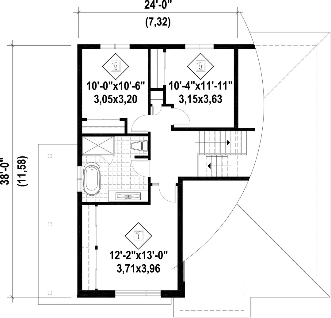
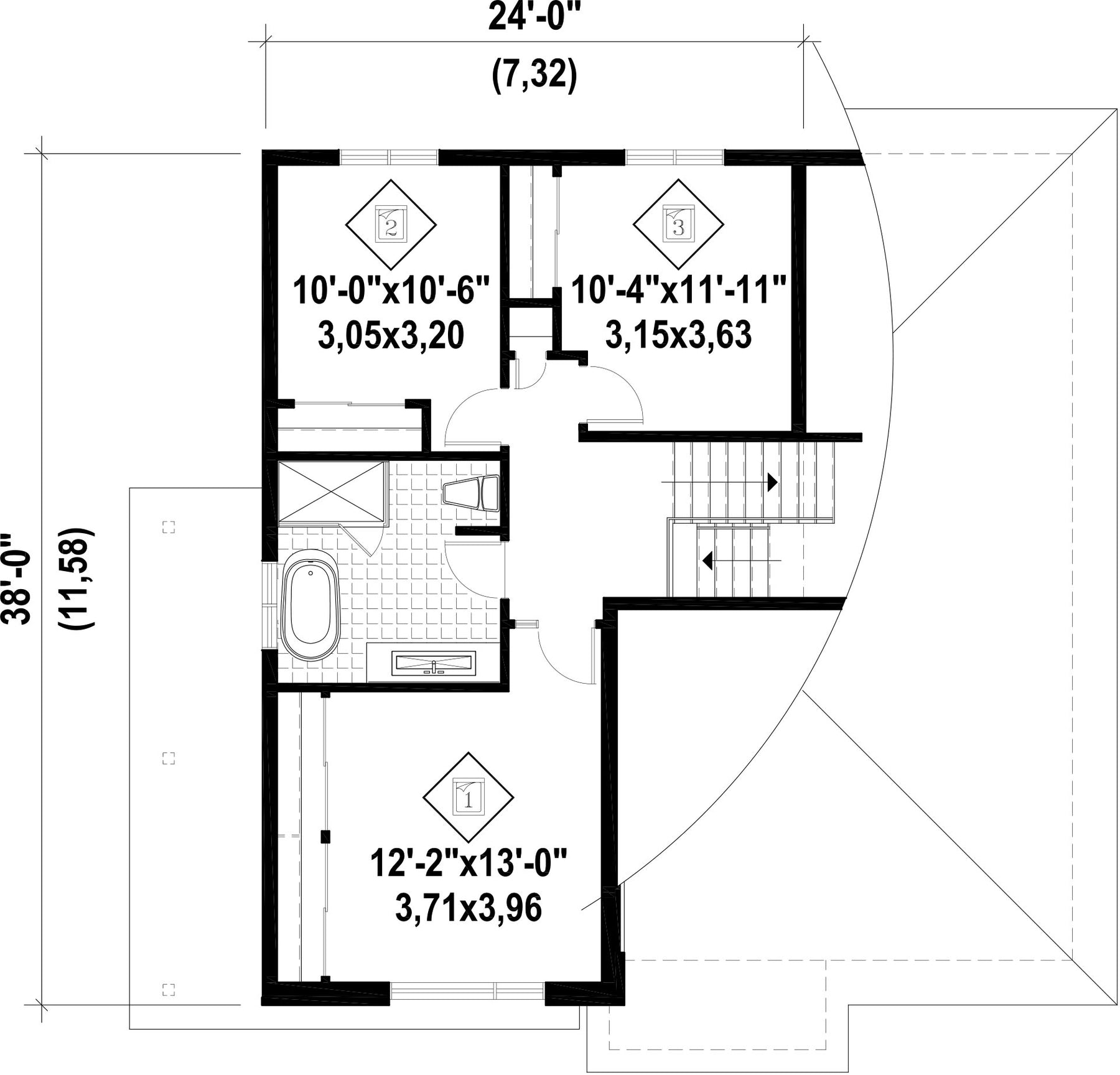
The main unit has an upper floor with a 723 square-foot living area that features a bathroom with a freestanding bathtub and a separate shower, and three bedrooms, including a master bedroom with a wall-to-wall closet.
Each unit has its own entrance, one in front of the house, and the other on the side. Furthermore, both units can be accessed from the inside through a connecting door. The ground floor has a total living area of 1,328 square feet. The main unit has nine-foot high ceilings and features a powder room with a laundry area, a living room, a dining room and a kitchen that includes a large island with a sink. The smaller second unit features one bedroom in the front, a complete bathroom with a laundry area, as well as a living room, a dining room and a kitchen overlooking the back.
The main unit has an upper floor with a 723 square-foot living area that features a bathroom with a freestanding bathtub and a separate shower, and three bedrooms, including a master bedroom with a wall-to-wall closet.
Additional info
Measurements: Imperial| House style | Urban |
Construction price
Approximate amount equivalent to what it would cost to have a general contractor (Montreal's South Shore region) build a similar home, excluding the lot and the infrastructure.
|
475294 $ |
|---|---|---|---|
| Front | 36 ft | Total living surface | 2051 ft² |
| Depth | 38 ft | Bathrooms | 2 |
| Height | 26 ft 8 in | Bedrooms | 4 |
| Master bedroom | N / A | ||
| First floor area | 1328 ft² | Exterior walls | Aluminum + Wood + Stone |
| Second floor area | 723 ft² | Kitchen | Laboratory + Island |
| Garages | 0 | ||
| First floor wall | 9 ft | ||
| Second floor wall | 8 ft | Front/back roof slope | 6/12 |
| Left/right roof slope | 6/12 |
| House style | Urban |
|---|---|
|
Construction price
Approximate amount equivalent to what it would cost to have a general contractor (Montreal's South Shore region) build a similar home, excluding the lot and the infrastructure.
|
475294 $ |
| Front | 36 ft |
| Total living surface | 2051 ft² |
| Depth | 38 ft |
| Bathrooms | 2 |
| Height | 26 ft 8 in |
| Bedrooms | 4 |
| Master bedroom | N / A |
| First floor area | 1328 ft² |
| Exterior walls | Aluminum + Wood + Stone |
| Second floor area | 723 ft² |
| Kitchen | Laboratory + Island |
| Garages | 0 |
| First floor wall | 9 ft |
| Second floor wall | 8 ft |
| Front/back roof slope | 6/12 |
| Left/right roof slope | 6/12 |