28244
28244
28244
28244

28244


This plan is offered with multiple variants. You can consult the variants by choosing a plan number in the menu below. The technical plan in the images as well as the information and dimensions table will update automatically.


Sets of plans
Regular price$1,440.00
/

This site is protected by hCaptcha and the hCaptcha Privacy Policy and Terms of Service apply.

Description

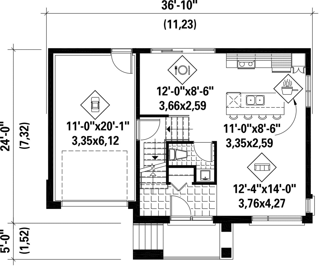
This lovely home will attract those who enjoy modern architecture as well as an open floor plan. This model can be designed in accordance with the tastes and needs of the owners. (Multiple Design Series)
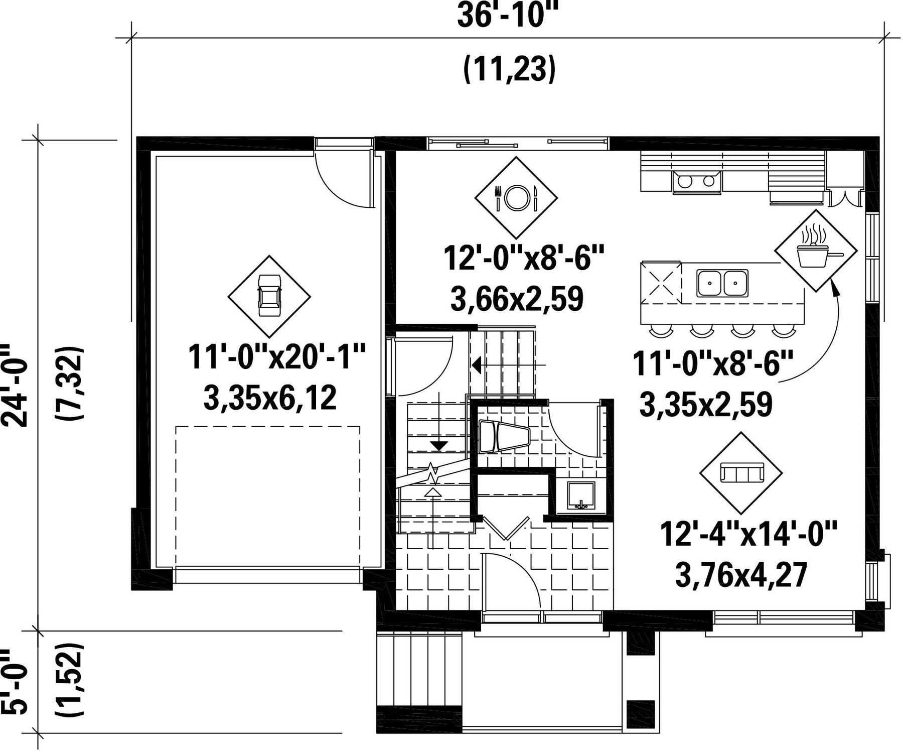
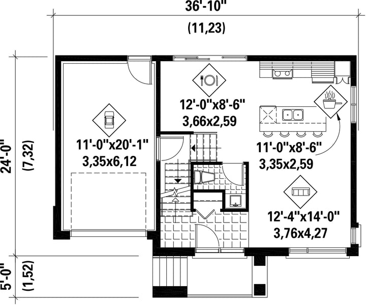
The ground floor includes a kitchen with an island, a dining room, a living room, and a powder room, in addition to a 265 square-foot one-car garage.
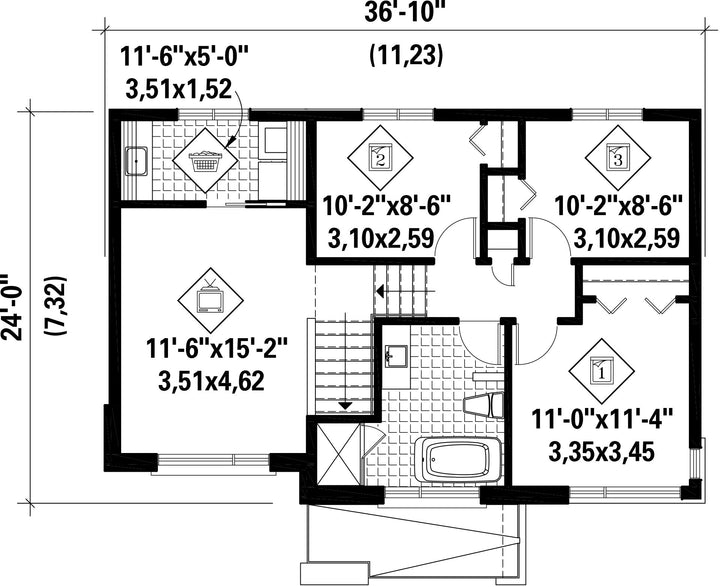
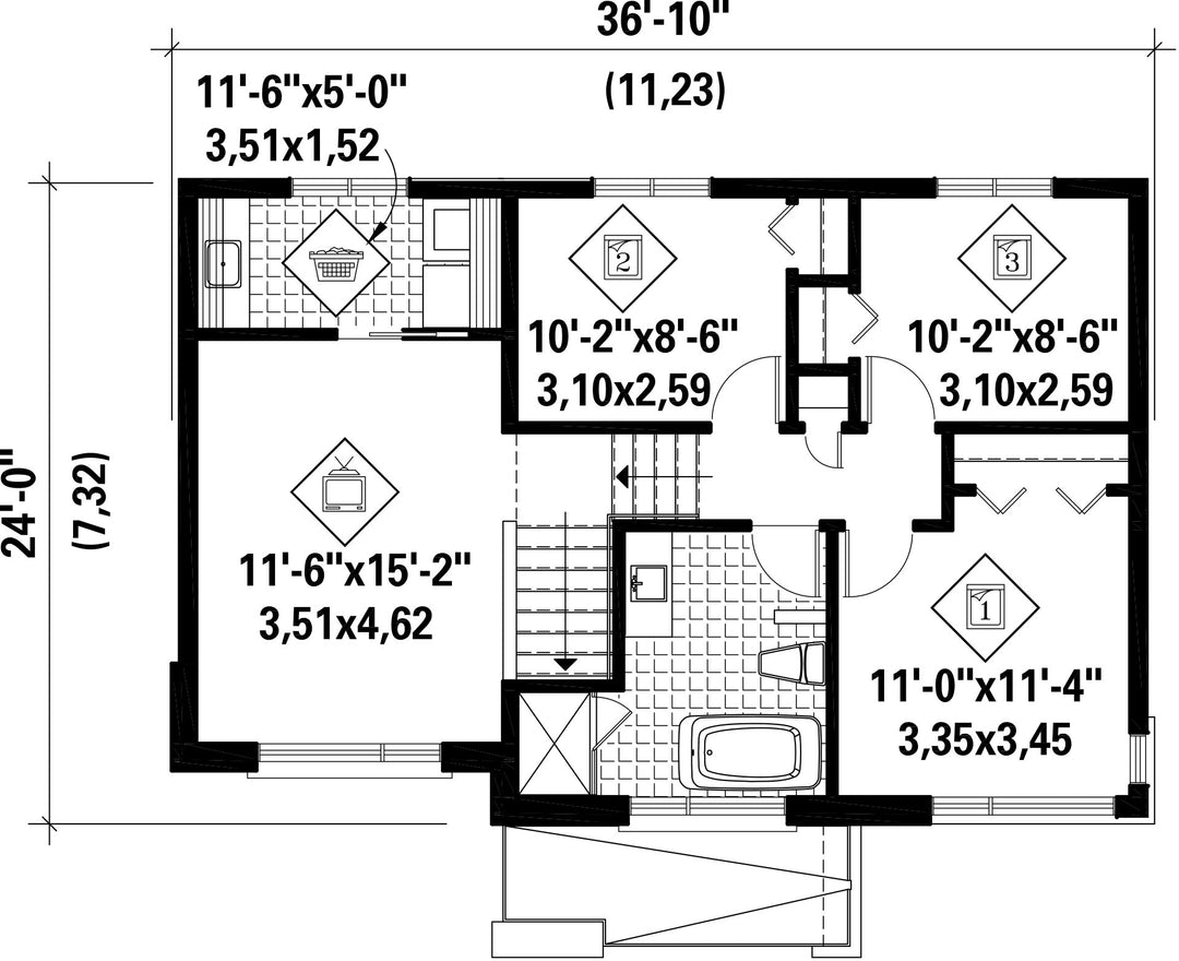
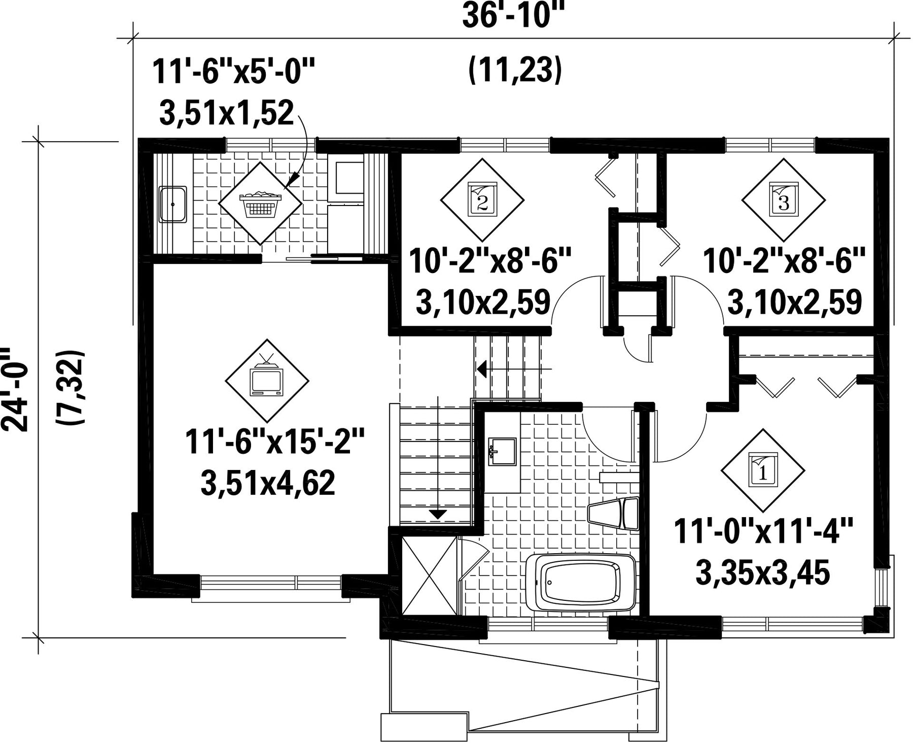
The upper floor features a den and a laundry room located above the garage, a bathroom with a freestanding bathtub and a separate shower, and can include two or three bedrooms, depending on the interior design chosen.

Additional info

Measurements: Imperial

House style Urban Construction price 
Approximate amount equivalent to what it would cost to have a general contractor (Montreal's South Shore region) build a similar home, excluding the lot and the infrastructure.
311926 $
Front 36 ft 10 in Total living surface 1419 ft²
Depth 24 ftBathrooms 1
Height 27 ft 9 inBedrooms 3
Master bedroom N / A
First floor area 579 ft² Exterior walls Aluminum + Wood + Brick + Stone
Second floor area 840 ft² Kitchen Laboratory + Island
Garage area 265 ft² Garages 1
Garage wall 8 ftFirst floor wall 8 ft
Second floor wall 8 ftFront/back roof slope 5/12
Left/right roof slope 6/12
House style Urban
Construction price 
Approximate amount equivalent to what it would cost to have a general contractor (Montreal's South Shore region) build a similar home, excluding the lot and the infrastructure.
311926 $
Front 36 ft 10 in
Total living surface 1419 ft²
Depth 24 ft
Bathrooms 1
Height 27 ft 9 in
Bedrooms 3
Master bedroom N / A
First floor area 579 ft²
Exterior walls Aluminum + Wood + Brick + Stone
Second floor area 840 ft²
Kitchen Laboratory + Island
Garage area 265 ft²
Garages 1
Garage wall 8 ft
First floor wall 8 ft
Second floor wall 8 ft
Front/back roof slope 5/12
Left/right roof slope 6/12

These house plans might also interest you


Recently viewed