Description
This lovely home will attract those who enjoy modern architecture as well as an open floor plan. This model can be designed in accordance with the tastes and needs of the owners. (Multiple Design Series)
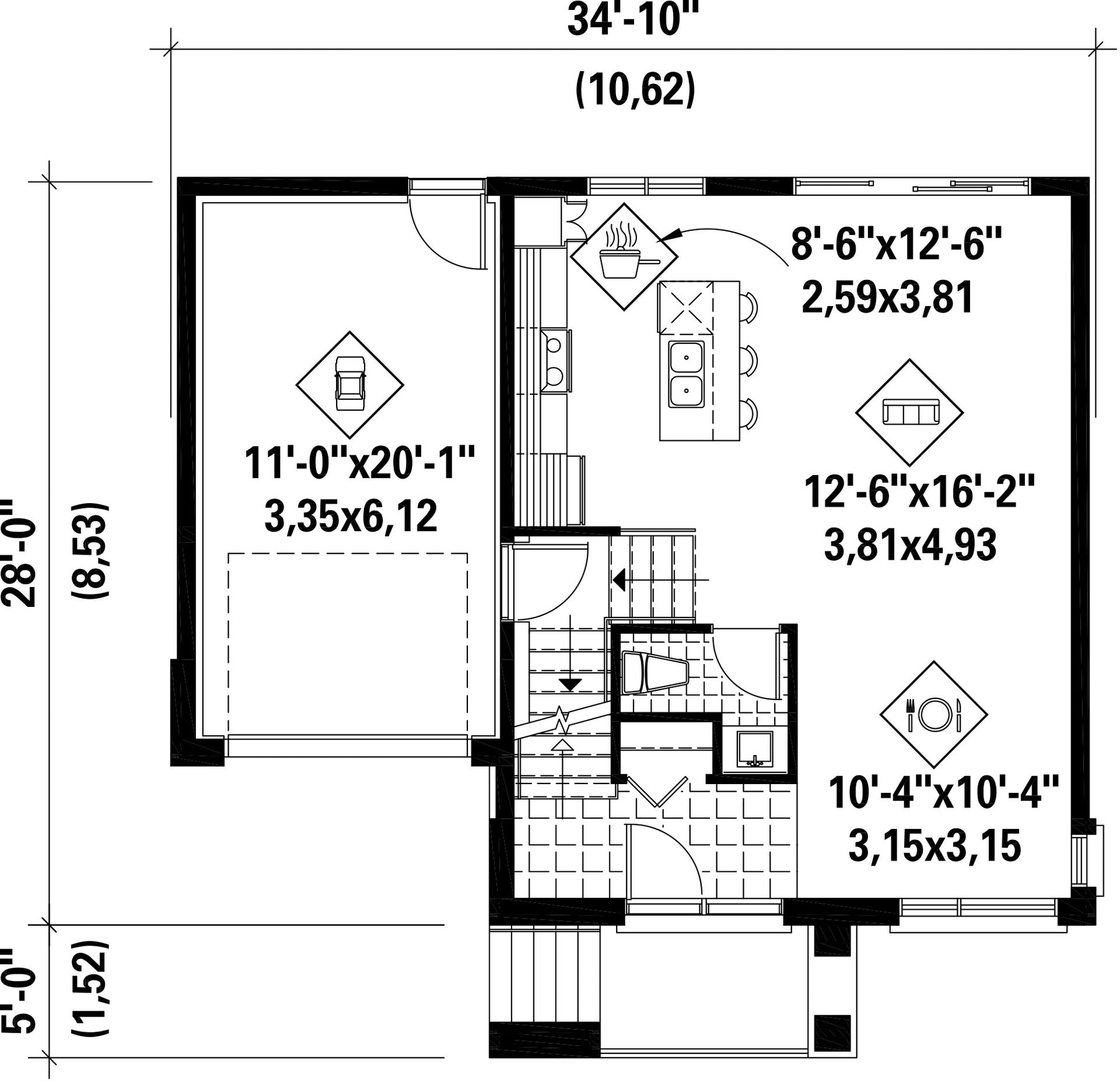
The ground floor includes a kitchen with an island, a dining room, a living room, and a powder room, in addition to a 265 square-foot one-car garage.
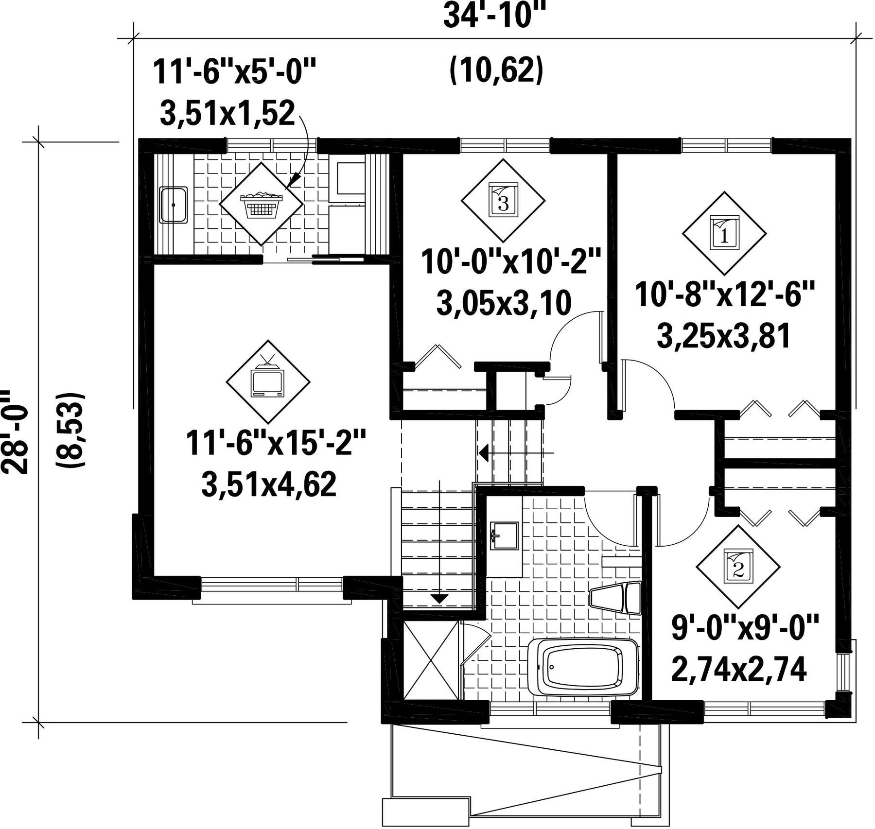
The upper floor features a den and a laundry room located above the garage, a bathroom with a freestanding bathtub and a separate shower, and can include two or three bedrooms, depending on the interior design chosen.
The ground floor includes a kitchen with an island, a dining room, a living room, and a powder room, in addition to a 265 square-foot one-car garage.
The upper floor features a den and a laundry room located above the garage, a bathroom with a freestanding bathtub and a separate shower, and can include two or three bedrooms, depending on the interior design chosen.
Additional info
Measurements: Imperial| House style | Urban |
Construction price
Approximate amount equivalent to what it would cost to have a general contractor (Montreal's South Shore region) build a similar home, excluding the lot and the infrastructure.
|
327315 $ |
|---|---|---|---|
| Front | 34 ft 10 in | Total living surface | 1502 ft² |
| Depth | 28 ft | Bathrooms | 1 |
| Height | 28 ft 6 in | Bedrooms | 3 |
| Master bedroom | N / A | ||
| First floor area | 621 ft² | Exterior walls | Aluminum + Wood + Brick + Stone |
| Second floor area | 881 ft² | Kitchen | Laboratory + Island |
| Garage area | 265 ft² | Garages | 1 |
| Garage wall | 8 ft | First floor wall | 8 ft |
| Second floor wall | 8 ft | Front/back roof slope | 5/12 |
| Left/right roof slope | 6/12 |
| House style | Urban |
|---|---|
|
Construction price
Approximate amount equivalent to what it would cost to have a general contractor (Montreal's South Shore region) build a similar home, excluding the lot and the infrastructure.
|
327315 $ |
| Front | 34 ft 10 in |
| Total living surface | 1502 ft² |
| Depth | 28 ft |
| Bathrooms | 1 |
| Height | 28 ft 6 in |
| Bedrooms | 3 |
| Master bedroom | N / A |
| First floor area | 621 ft² |
| Exterior walls | Aluminum + Wood + Brick + Stone |
| Second floor area | 881 ft² |
| Kitchen | Laboratory + Island |
| Garage area | 265 ft² |
| Garages | 1 |
| Garage wall | 8 ft |
| First floor wall | 8 ft |
| Second floor wall | 8 ft |
| Front/back roof slope | 5/12 |
| Left/right roof slope | 6/12 |