Description
This beautiful urban-style two-storey house has open area on the ground floor that can be designed in accordance with the tastes and needs of the owners. (Multiple Design Series).
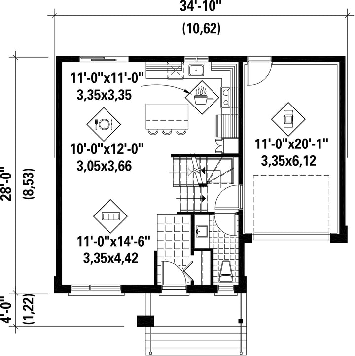
The ground floor features a kitchen with an island or a lunch counter, depending on the design chosen, a dining room, a living room, a powder room, and a 265 square-foot one-car garage.
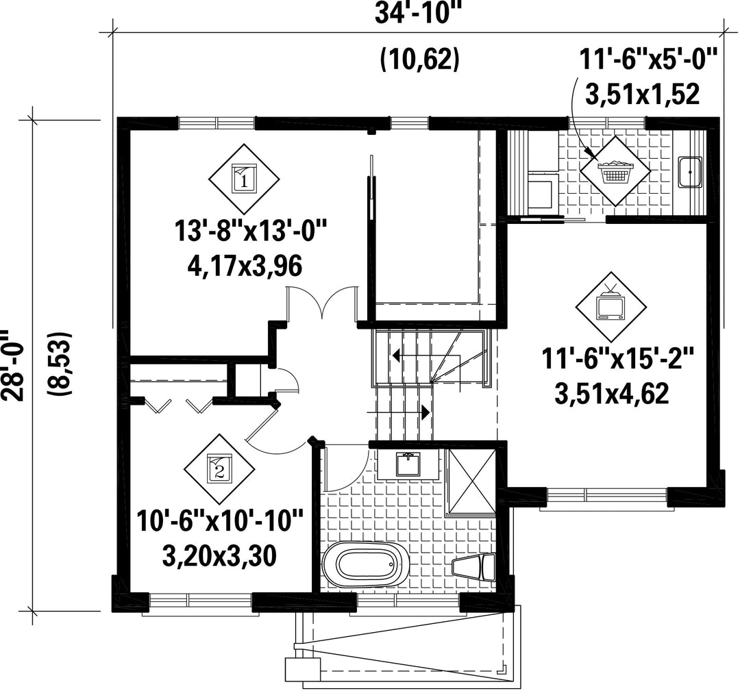
The upper floor includes a den and a laundry room located above the garage, a bathroom with a freestanding bathtub and a separate shower, and can feature two or three bedrooms, depending on the interior design chosen.
The ground floor features a kitchen with an island or a lunch counter, depending on the design chosen, a dining room, a living room, a powder room, and a 265 square-foot one-car garage.
The upper floor includes a den and a laundry room located above the garage, a bathroom with a freestanding bathtub and a separate shower, and can feature two or three bedrooms, depending on the interior design chosen.
Additional info
Measurements: Imperial| House style | Urban |
Construction price
Approximate amount equivalent to what it would cost to have a general contractor (Montreal's South Shore region) build a similar home, excluding the lot and the infrastructure.
|
326098 $ |
|---|---|---|---|
| Front | 34 ft 10 in | Total living surface | 1501 ft² |
| Depth | 28 ft | Bathrooms | 1 |
| Height | 29 ft 9 in | Bedrooms | 2 |
| Master bedroom | Double doors | ||
| First floor area | 618 ft² | Exterior walls | Aluminum + Brick + Stone |
| Second floor area | 883 ft² | Kitchen | L-shaped + Island |
| Garage area | 265 ft² | Garages | 1 |
| Garage wall | 8 ft | First floor wall | 8 ft |
| Second floor wall | 8 ft | Front/back roof slope | 6/12 |
| Left/right roof slope | 8/12 |
| House style | Urban |
|---|---|
|
Construction price
Approximate amount equivalent to what it would cost to have a general contractor (Montreal's South Shore region) build a similar home, excluding the lot and the infrastructure.
|
326098 $ |
| Front | 34 ft 10 in |
| Total living surface | 1501 ft² |
| Depth | 28 ft |
| Bathrooms | 1 |
| Height | 29 ft 9 in |
| Bedrooms | 2 |
| Master bedroom | Double doors |
| First floor area | 618 ft² |
| Exterior walls | Aluminum + Brick + Stone |
| Second floor area | 883 ft² |
| Kitchen | L-shaped + Island |
| Garage area | 265 ft² |
| Garages | 1 |
| Garage wall | 8 ft |
| First floor wall | 8 ft |
| Second floor wall | 8 ft |
| Front/back roof slope | 6/12 |
| Left/right roof slope | 8/12 |