Description
This small two-storey house is both modern and elegant thanks to its sleek lines and a perfect combination of brick, stone, wood and aluminum facing. The open area on the ground floor can be designed in accordance with the tastes and needs of the owners. (Multiple Design Series).
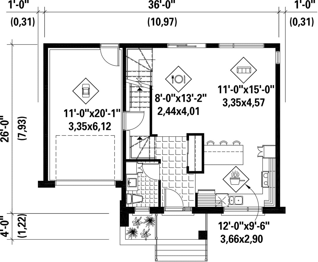
The ground floor includes a living and dining area in the back of the house, a powder room with a storage space, and a functional kitchen with a lunch counter in the front. There is also a 264 square-foot one-car garage.
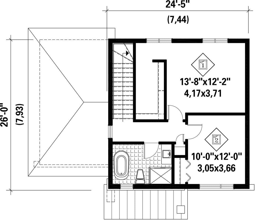
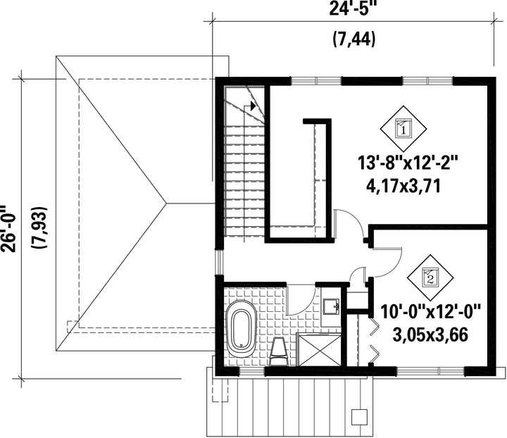
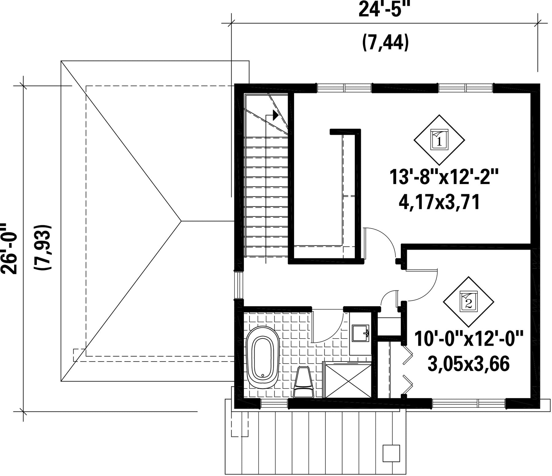
The upper floor includes a bathroom with a freestanding bathtub and a separate shower, and can feature two or three bedrooms, depending on the interior design chosen.
The ground floor includes a living and dining area in the back of the house, a powder room with a storage space, and a functional kitchen with a lunch counter in the front. There is also a 264 square-foot one-car garage.
The upper floor includes a bathroom with a freestanding bathtub and a separate shower, and can feature two or three bedrooms, depending on the interior design chosen.
Additional info
Measurements: Imperial| House style | Urban |
Construction price
Approximate amount equivalent to what it would cost to have a general contractor (Montreal's South Shore region) build a similar home, excluding the lot and the infrastructure.
|
295452 $ |
|---|---|---|---|
| Front | 36 ft | Total living surface | 1246 ft² |
| Depth | 26 ft | Bathrooms | 1 |
| Height | 30 ft 5 in | Bedrooms | 2 |
| Master bedroom | Wardrobe | ||
| First floor area | 625 ft² | Exterior walls | Aluminum + Wood + Brick + Stone |
| Second floor area | 621 ft² | Kitchen | Lunch counter + L-shaped |
| Garage area | 264 ft² | Garages | 1 |
| Garage wall | 8 ft | First floor wall | 9 ft |
| Second floor wall | 8 ft | Front/back roof slope | 6/12 |
| Left/right roof slope | 8/12 |
| House style | Urban |
|---|---|
|
Construction price
Approximate amount equivalent to what it would cost to have a general contractor (Montreal's South Shore region) build a similar home, excluding the lot and the infrastructure.
|
295452 $ |
| Front | 36 ft |
| Total living surface | 1246 ft² |
| Depth | 26 ft |
| Bathrooms | 1 |
| Height | 30 ft 5 in |
| Bedrooms | 2 |
| Master bedroom | Wardrobe |
| First floor area | 625 ft² |
| Exterior walls | Aluminum + Wood + Brick + Stone |
| Second floor area | 621 ft² |
| Kitchen | Lunch counter + L-shaped |
| Garage area | 264 ft² |
| Garages | 1 |
| Garage wall | 8 ft |
| First floor wall | 9 ft |
| Second floor wall | 8 ft |
| Front/back roof slope | 6/12 |
| Left/right roof slope | 8/12 |