Description
The porch overlooking the entrance enhances the appearance of this brick and stone two-storey house. The open area on the ground floor can be designed in accordance with the tastes and needs of the owners. (Multiple Design Series).
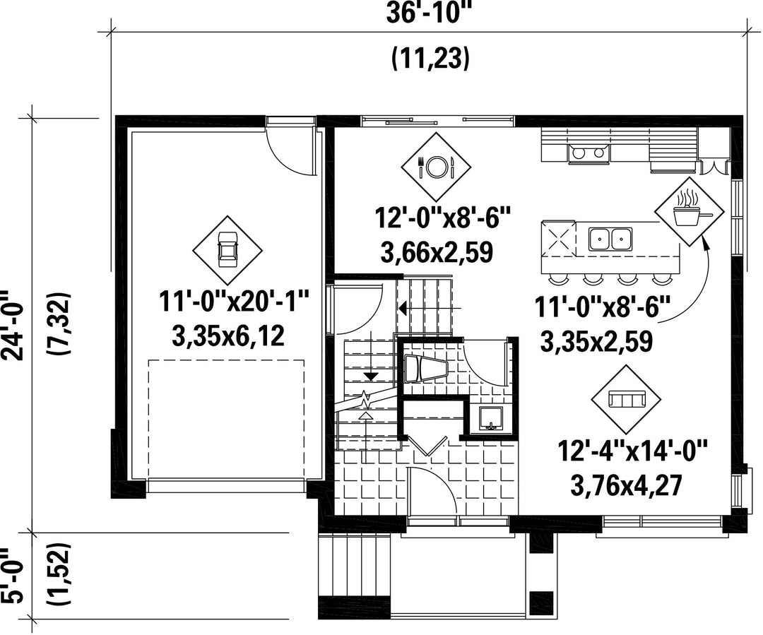
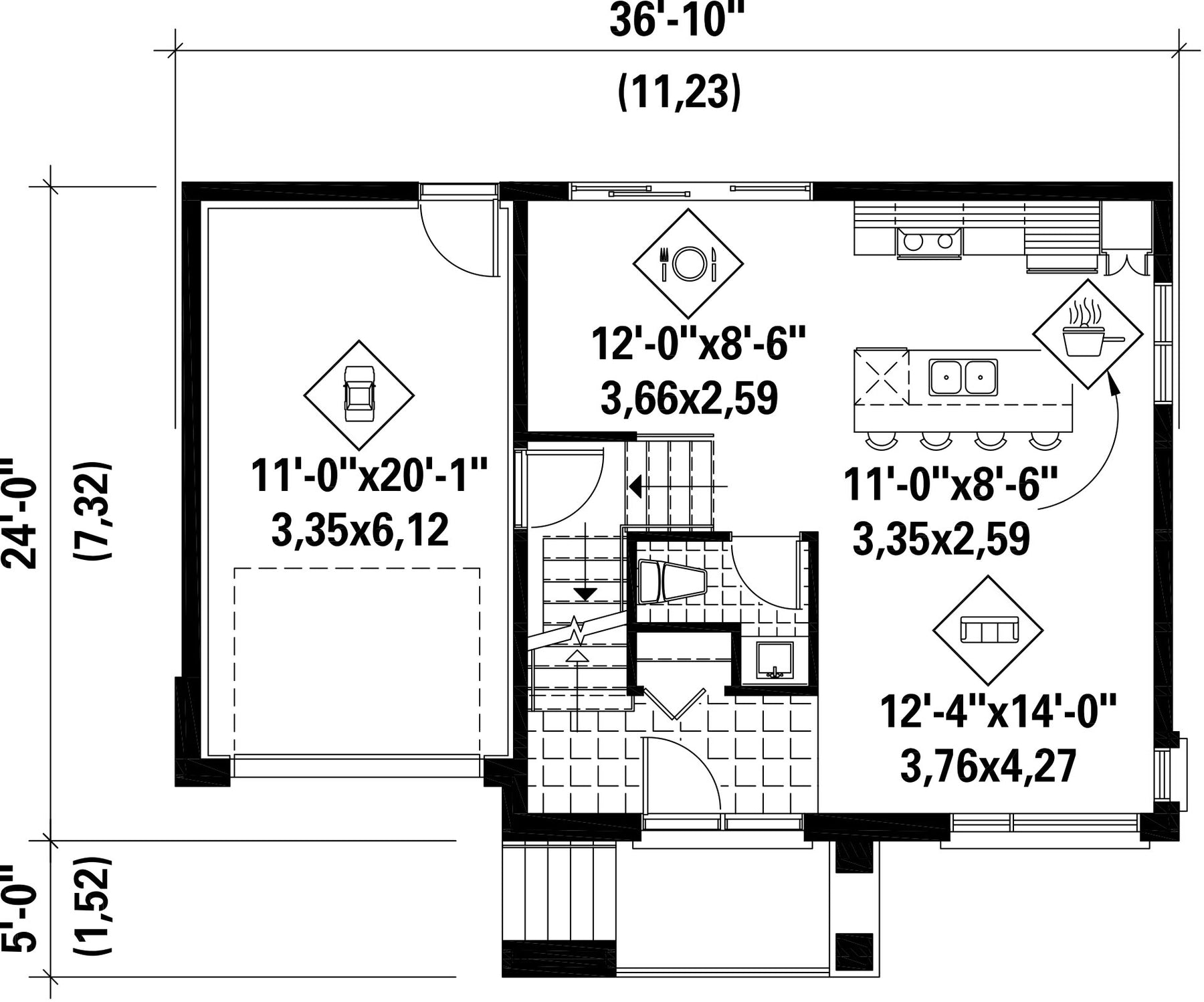
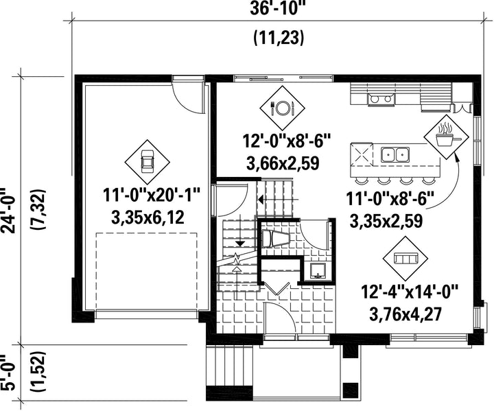
The ground floor features a powder room, a living room, a large kitchen with an island, a dining room as well as a 265 square-foot one-car garage.
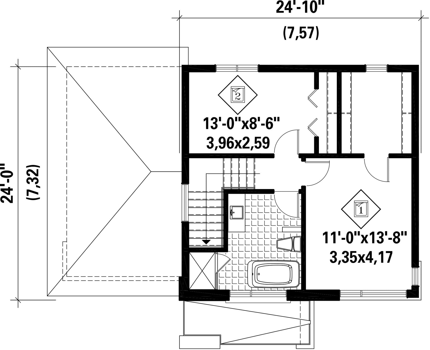
The upper floor includes a bathroom with a freestanding bathtub and a separate shower, and can feature two or three bedrooms, depending on the interior design chosen.
The ground floor features a powder room, a living room, a large kitchen with an island, a dining room as well as a 265 square-foot one-car garage.
The upper floor includes a bathroom with a freestanding bathtub and a separate shower, and can feature two or three bedrooms, depending on the interior design chosen.
Additional info
Measurements: Imperial| House style | Urban |
Construction price
Approximate amount equivalent to what it would cost to have a general contractor (Montreal's South Shore region) build a similar home, excluding the lot and the infrastructure.
|
272512 $ |
|---|---|---|---|
| Front | 36 ft 10 in | Total living surface | 1153 ft² |
| Depth | 24 ft | Bathrooms | 1 |
| Height | 27 ft 9 in | Bedrooms | 2 |
| Master bedroom | Wardrobe | ||
| First floor area | 579 ft² | Exterior walls | Aluminum + Wood + Brick + Stone |
| Second floor area | 574 ft² | Kitchen | Laboratory + Island |
| Garage area | 265 ft² | Garages | 1 |
| Garage wall | 8 ft | First floor wall | 8 ft |
| Second floor wall | 8 ft | Front/back roof slope | 5/12 |
| Left/right roof slope | 6/12 |
| House style | Urban |
|---|---|
|
Construction price
Approximate amount equivalent to what it would cost to have a general contractor (Montreal's South Shore region) build a similar home, excluding the lot and the infrastructure.
|
272512 $ |
| Front | 36 ft 10 in |
| Total living surface | 1153 ft² |
| Depth | 24 ft |
| Bathrooms | 1 |
| Height | 27 ft 9 in |
| Bedrooms | 2 |
| Master bedroom | Wardrobe |
| First floor area | 579 ft² |
| Exterior walls | Aluminum + Wood + Brick + Stone |
| Second floor area | 574 ft² |
| Kitchen | Laboratory + Island |
| Garage area | 265 ft² |
| Garages | 1 |
| Garage wall | 8 ft |
| First floor wall | 8 ft |
| Second floor wall | 8 ft |
| Front/back roof slope | 5/12 |
| Left/right roof slope | 6/12 |