Description
This brick, stone and aluminum two-storey house boasts an elegant look and an open area on the ground floor that can be designed in accordance with the tastes and needs of the owners. (Multiple Design Series).
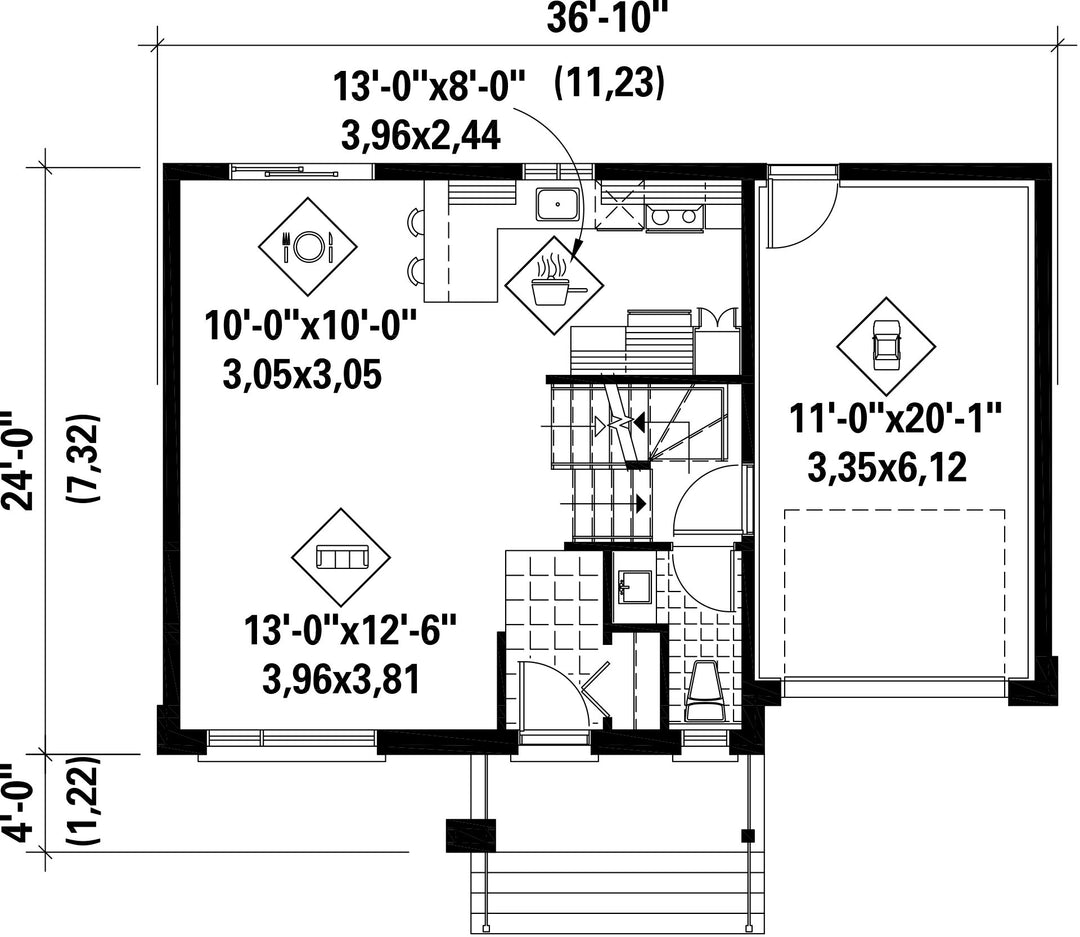
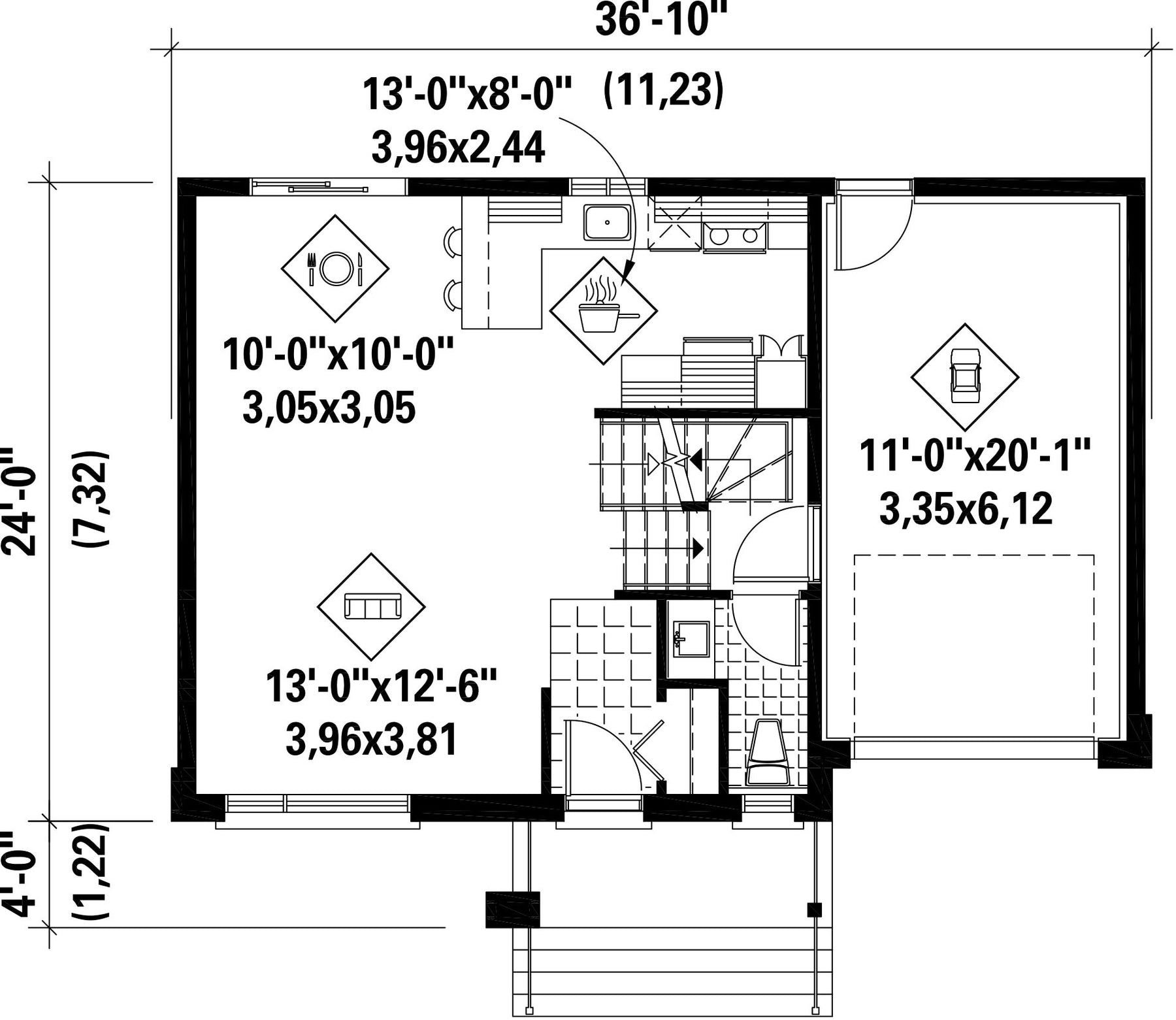
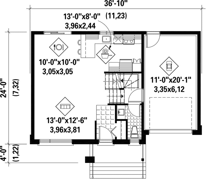
The ground floor includes a dining room, a kitchen with an island or a lunch counter depending on the model chosen, a living room and a powder room. There is also a 265 square-foot one-car garage.
The upper floor can include two or three bedrooms, depending on the interior design chosen, as well as a bathroom with a freestanding bathtub and a separate shower.
The ground floor includes a dining room, a kitchen with an island or a lunch counter depending on the model chosen, a living room and a powder room. There is also a 265 square-foot one-car garage.
The upper floor can include two or three bedrooms, depending on the interior design chosen, as well as a bathroom with a freestanding bathtub and a separate shower.
Additional info
Measurements: Imperial| House style | Urban |
Construction price
Approximate amount equivalent to what it would cost to have a general contractor (Montreal's South Shore region) build a similar home, excluding the lot and the infrastructure.
|
271416 $ |
|---|---|---|---|
| Front | 36 ft 10 in | Total living surface | 1156 ft² |
| Depth | 24 ft | Bathrooms | 1 |
| Height | 28 ft 9 in | Bedrooms | 3 |
| Master bedroom | N / A | ||
| First floor area | 578 ft² | Exterior walls | Aluminum + Brick + Stone |
| Second floor area | 578 ft² | Kitchen | Meal counter + Laboratory |
| Garage area | 265 ft² | Garages | 1 |
| Garage wall | 8 ft | First floor wall | 8 ft |
| Second floor wall | 8 ft | Front/back roof slope | 6/12 |
| Left/right roof slope | 8/12 |
| House style | Urban |
|---|---|
|
Construction price
Approximate amount equivalent to what it would cost to have a general contractor (Montreal's South Shore region) build a similar home, excluding the lot and the infrastructure.
|
271416 $ |
| Front | 36 ft 10 in |
| Total living surface | 1156 ft² |
| Depth | 24 ft |
| Bathrooms | 1 |
| Height | 28 ft 9 in |
| Bedrooms | 3 |
| Master bedroom | N / A |
| First floor area | 578 ft² |
| Exterior walls | Aluminum + Brick + Stone |
| Second floor area | 578 ft² |
| Kitchen | Meal counter + Laboratory |
| Garage area | 265 ft² |
| Garages | 1 |
| Garage wall | 8 ft |
| First floor wall | 8 ft |
| Second floor wall | 8 ft |
| Front/back roof slope | 6/12 |
| Left/right roof slope | 8/12 |