Description
This two-storey house is both functional and practical with an open area on the ground floor that can be designed in accordance with the tastes and needs of the owners. (Multiple Design Series).
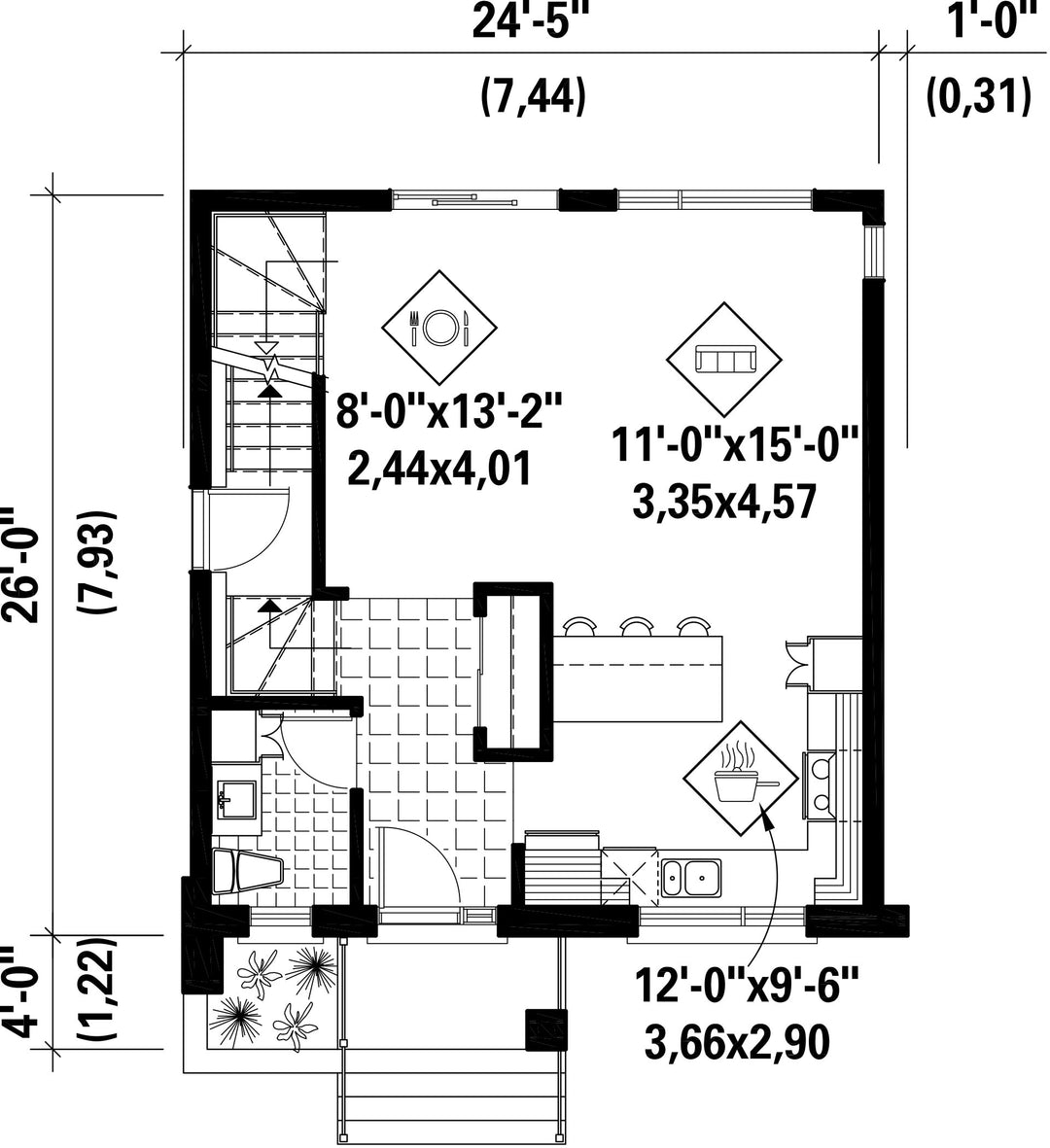
The ground floor includes a powder room with a storage area, a kitchen with a lunch counter overlooking the front of the house, and a living and dining area in the back.
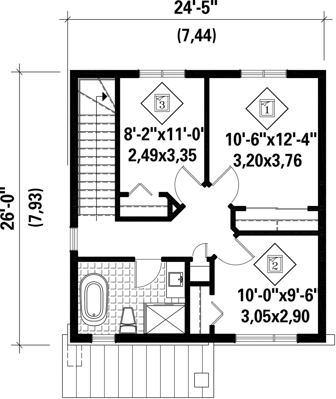
The upper floor can include two or three bedrooms, depending on the interior design chosen, as well as a bathroom with a freestanding bathtub and a separate shower.
The ground floor includes a powder room with a storage area, a kitchen with a lunch counter overlooking the front of the house, and a living and dining area in the back.
The upper floor can include two or three bedrooms, depending on the interior design chosen, as well as a bathroom with a freestanding bathtub and a separate shower.
Additional info
Measurements: Imperial| House style | Urban |
Construction price
Approximate amount equivalent to what it would cost to have a general contractor (Montreal's South Shore region) build a similar home, excluding the lot and the infrastructure.
|
268072 $ |
|---|---|---|---|
| Front | 24 ft 5 in | Total living surface | 1246 ft² |
| Depth | 26 ft | Bathrooms | 1 |
| Height | 30 ft 5 in | Bedrooms | 3 |
| Master bedroom | N / A | ||
| First floor area | 625 ft² | Exterior walls | Aluminum + Wood + Brick + Stone |
| Second floor area | 621 ft² | Kitchen | Lunch counter + L-shaped |
| Garages | 0 | ||
| First floor wall | 9 ft | ||
| Second floor wall | 8 ft | Front/back roof slope | 6/12 |
| Left/right roof slope | 8/12 |
| House style | Urban |
|---|---|
|
Construction price
Approximate amount equivalent to what it would cost to have a general contractor (Montreal's South Shore region) build a similar home, excluding the lot and the infrastructure.
|
268072 $ |
| Front | 24 ft 5 in |
| Total living surface | 1246 ft² |
| Depth | 26 ft |
| Bathrooms | 1 |
| Height | 30 ft 5 in |
| Bedrooms | 3 |
| Master bedroom | N / A |
| First floor area | 625 ft² |
| Exterior walls | Aluminum + Wood + Brick + Stone |
| Second floor area | 621 ft² |
| Kitchen | Lunch counter + L-shaped |
| Garages | 0 |
| First floor wall | 9 ft |
| Second floor wall | 8 ft |
| Front/back roof slope | 6/12 |
| Left/right roof slope | 8/12 |