Description
Combining stone, brick, wood and aluminum on this lovely two-storey house was definitely a great idea. The small house has an open area on the ground floor that can be designed in accordance with the tastes and needs of the owners. (Multiple Design Series).
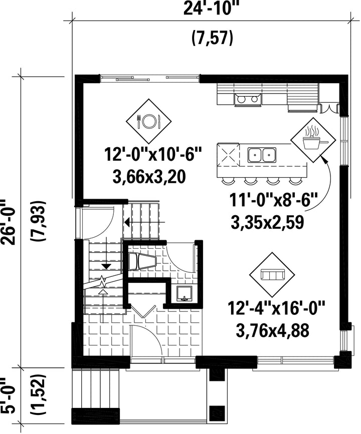
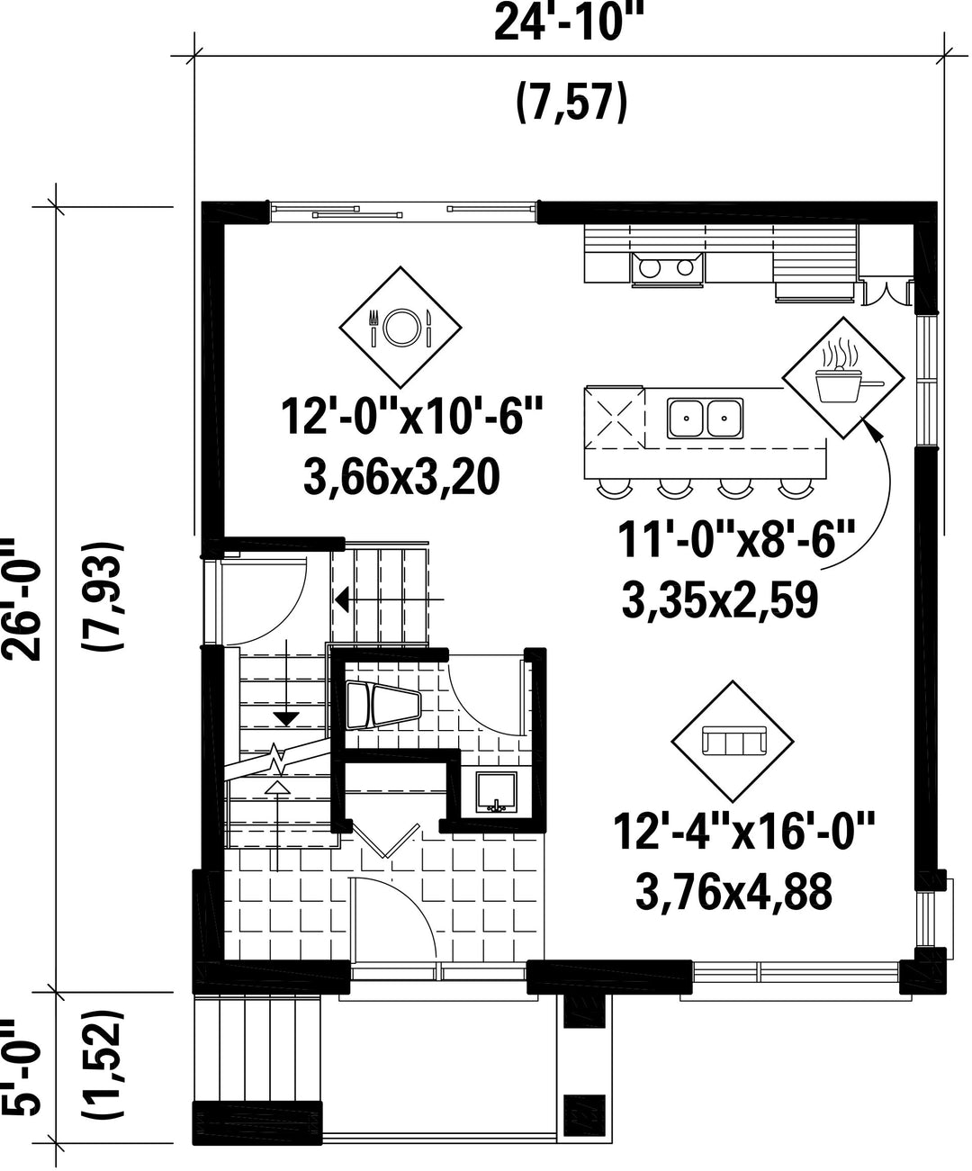
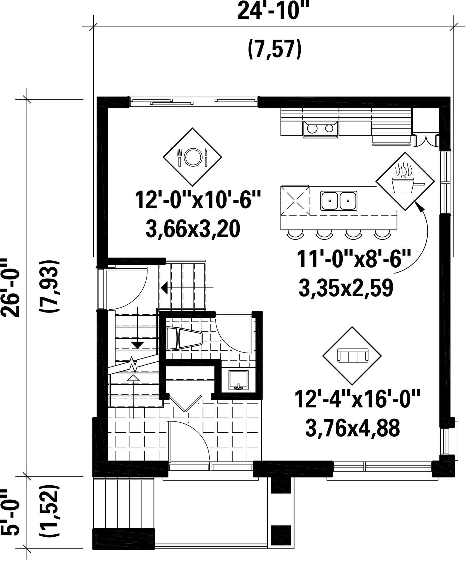
The ground floor includes a kitchen with an island, a dining room, a living room, a powder room as well as a side door.
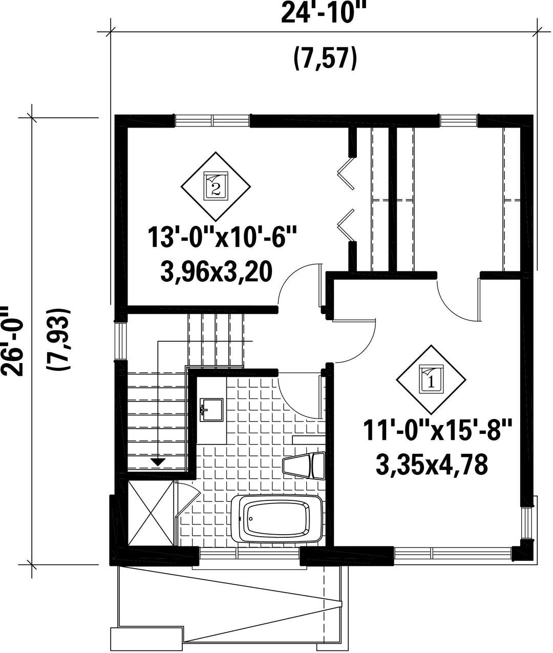
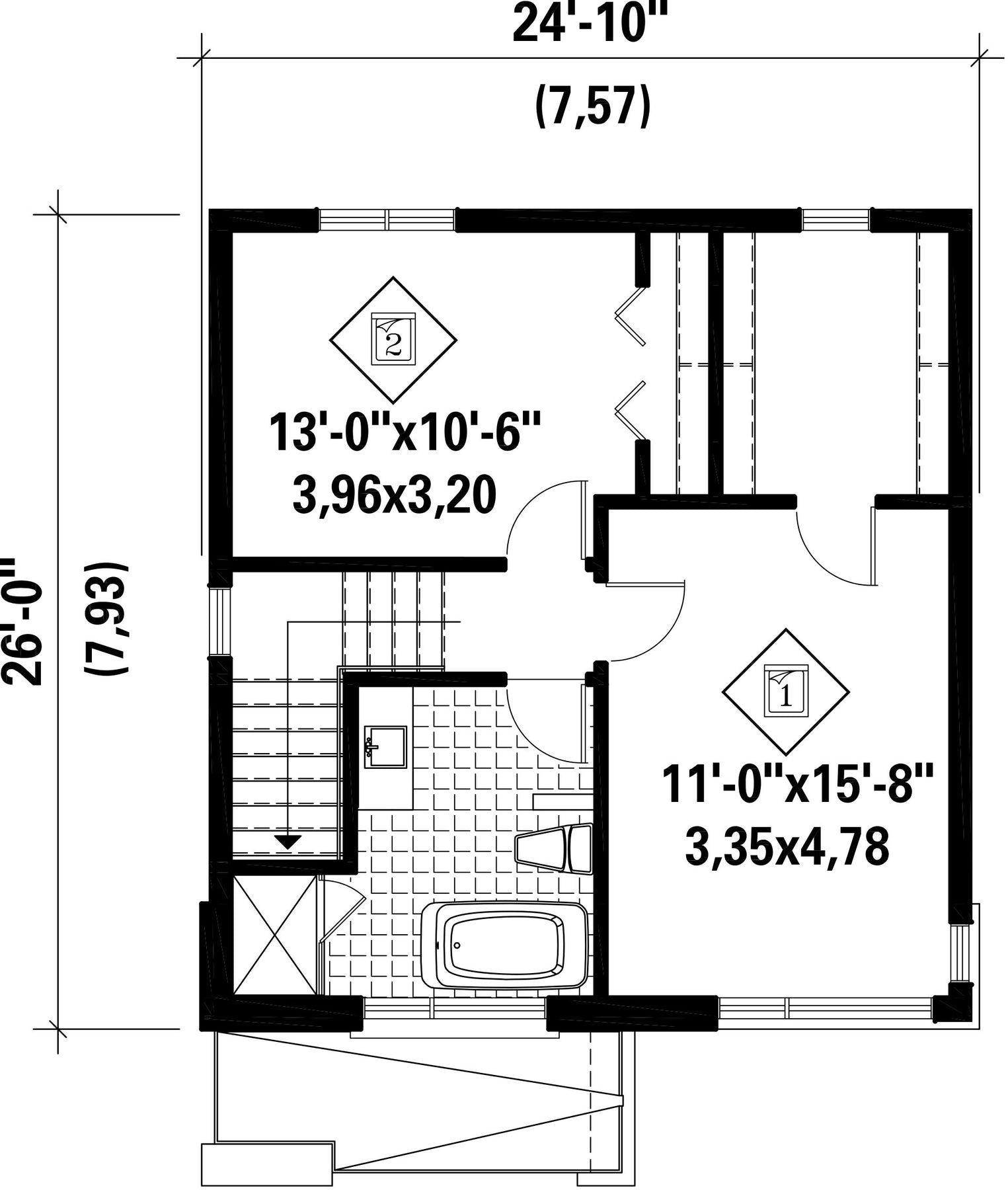
The upper floor can include two or three bedrooms, depending on the interior design chosen, as well as a bathroom with a freestanding bathtub and a separate shower.
The ground floor includes a kitchen with an island, a dining room, a living room, a powder room as well as a side door.
The upper floor can include two or three bedrooms, depending on the interior design chosen, as well as a bathroom with a freestanding bathtub and a separate shower.
Additional info
Measurements: Imperial| House style | Urban |
Construction price
Approximate amount equivalent to what it would cost to have a general contractor (Montreal's South Shore region) build a similar home, excluding the lot and the infrastructure.
|
263747 $ |
|---|---|---|---|
| Front | 24 ft 10 in | Total living surface | 1251 ft² |
| Depth | 26 ft | Bathrooms | 1 |
| Height | 28 ft 2 in | Bedrooms | 2 |
| Master bedroom | Wardrobe | ||
| First floor area | 628 ft² | Exterior walls | Aluminum + Wood + Brick + Stone |
| Second floor area | 623 ft² | Kitchen | Laboratory + Island |
| Garages | 0 | ||
| First floor wall | 8 ft | ||
| Second floor wall | 8 ft | Front/back roof slope | 5/12 |
| Left/right roof slope | 6/12 |
| House style | Urban |
|---|---|
|
Construction price
Approximate amount equivalent to what it would cost to have a general contractor (Montreal's South Shore region) build a similar home, excluding the lot and the infrastructure.
|
263747 $ |
| Front | 24 ft 10 in |
| Total living surface | 1251 ft² |
| Depth | 26 ft |
| Bathrooms | 1 |
| Height | 28 ft 2 in |
| Bedrooms | 2 |
| Master bedroom | Wardrobe |
| First floor area | 628 ft² |
| Exterior walls | Aluminum + Wood + Brick + Stone |
| Second floor area | 623 ft² |
| Kitchen | Laboratory + Island |
| Garages | 0 |
| First floor wall | 8 ft |
| Second floor wall | 8 ft |
| Front/back roof slope | 5/12 |
| Left/right roof slope | 6/12 |