Description
This small two-storey house has an open area on the ground floor that can be designed in accordance with the tastes and needs of the owners. (Multiple Design Series).
The ground floor includes a kitchen with an island or a lunch counter, depending on the model chosen, a dining room, a living room as well as a powder room.
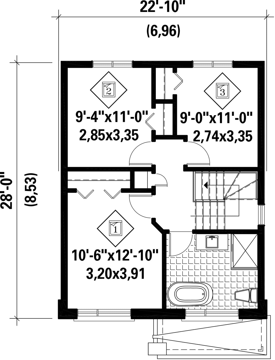
The upper floor can include two or three bedrooms, depending on the interior design chosen, as well as a large bathroom with a separate shower.
The ground floor includes a kitchen with an island or a lunch counter, depending on the model chosen, a dining room, a living room as well as a powder room.
The upper floor can include two or three bedrooms, depending on the interior design chosen, as well as a large bathroom with a separate shower.
Additional info
Measurements: Imperial| House style | Urban |
Construction price
Approximate amount equivalent to what it would cost to have a general contractor (Montreal's South Shore region) build a similar home, excluding the lot and the infrastructure.
|
258810 $ |
|---|---|---|---|
| Front | 22 ft 10 in | Total living surface | 1236 ft² |
| Depth | 28 ft | Bathrooms | 1 |
| Height | 29 ft 9 in | Bedrooms | 3 |
| Master bedroom | N / A | ||
| First floor area | 618 ft² | Exterior walls | Aluminum + Brick + Stone |
| Second floor area | 618 ft² | Kitchen | L-shaped + Island |
| Garages | 0 | ||
| First floor wall | 8 ft | ||
| Second floor wall | 8 ft | Front/back roof slope | 6/12 |
| Left/right roof slope | 8/12 |
| House style | Urban |
|---|---|
|
Construction price
Approximate amount equivalent to what it would cost to have a general contractor (Montreal's South Shore region) build a similar home, excluding the lot and the infrastructure.
|
258810 $ |
| Front | 22 ft 10 in |
| Total living surface | 1236 ft² |
| Depth | 28 ft |
| Bathrooms | 1 |
| Height | 29 ft 9 in |
| Bedrooms | 3 |
| Master bedroom | N / A |
| First floor area | 618 ft² |
| Exterior walls | Aluminum + Brick + Stone |
| Second floor area | 618 ft² |
| Kitchen | L-shaped + Island |
| Garages | 0 |
| First floor wall | 8 ft |
| Second floor wall | 8 ft |
| Front/back roof slope | 6/12 |
| Left/right roof slope | 8/12 |