Description
The architecture of this urban two-storey house is truly enhanced by the oversized windows, the square porch, and the symmetrically installed aluminum, stone and wood siding in earth tones. The home is 39 feet 10 inches wide by 36 feet deep and provides 2,031 square feet of living space, including a 313 square-foot one-car garage.
Featuring an 859 square-foot living area, the open ground floor includes a large entrance hall, a powder room, a living room, a dining room and a kitchen with an island and a pantry.
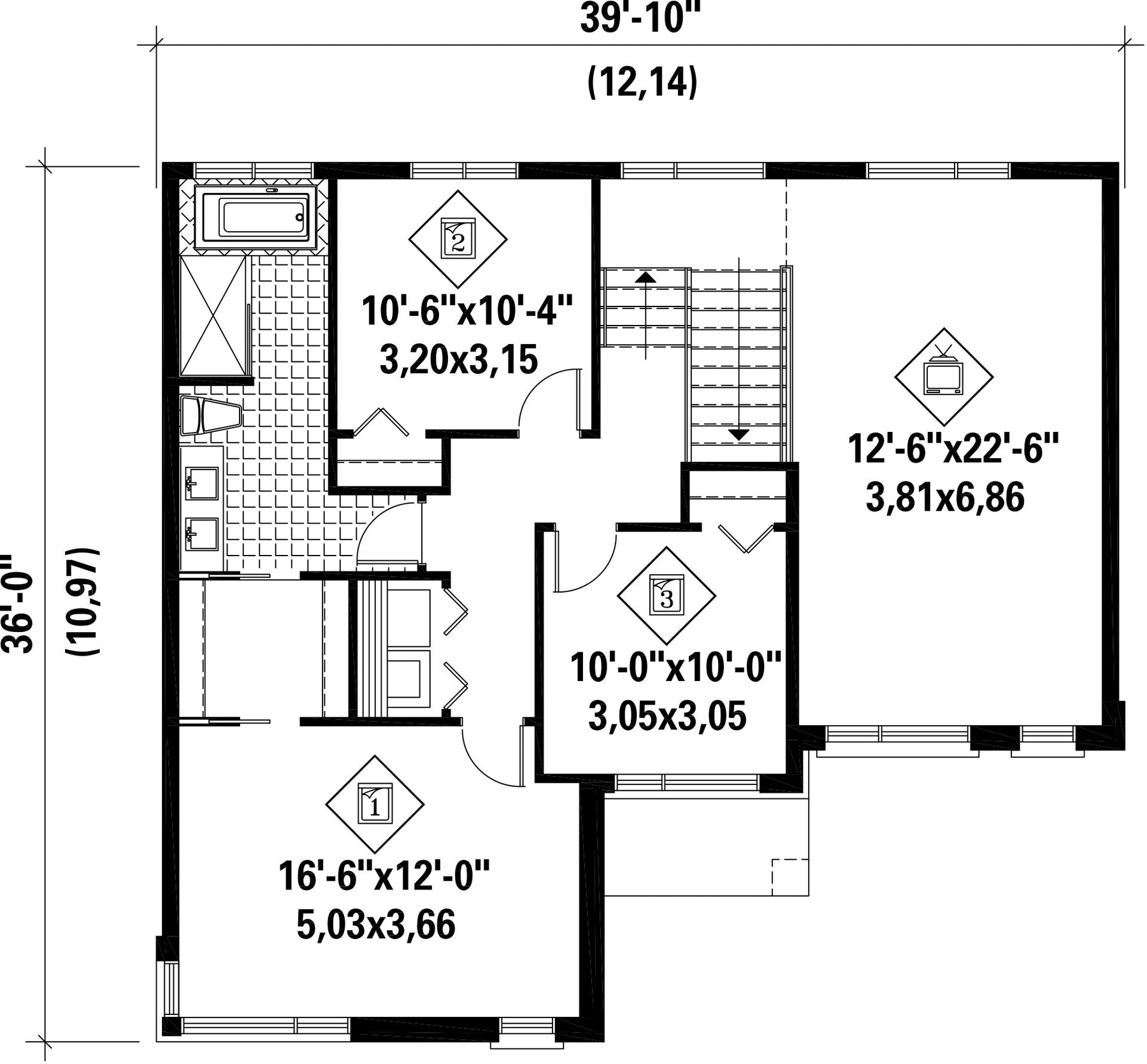
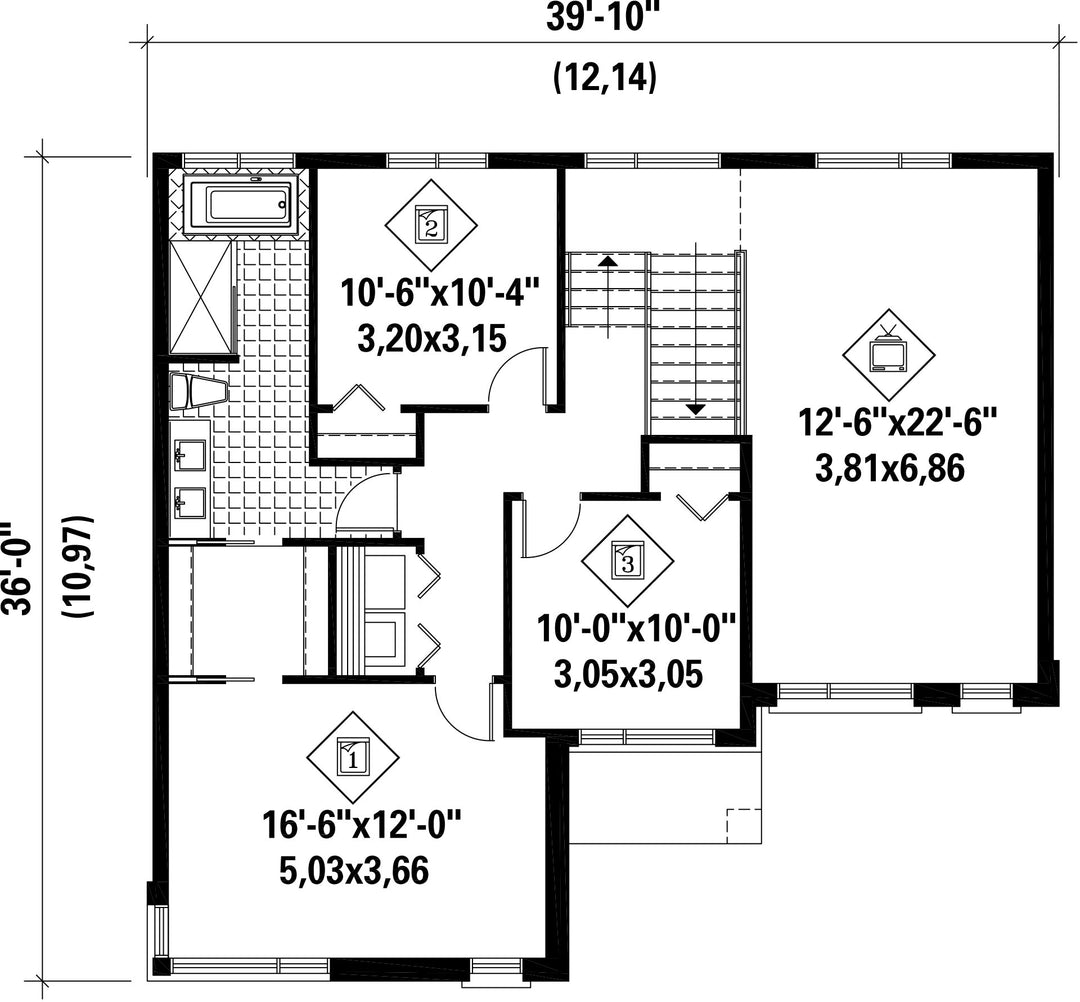
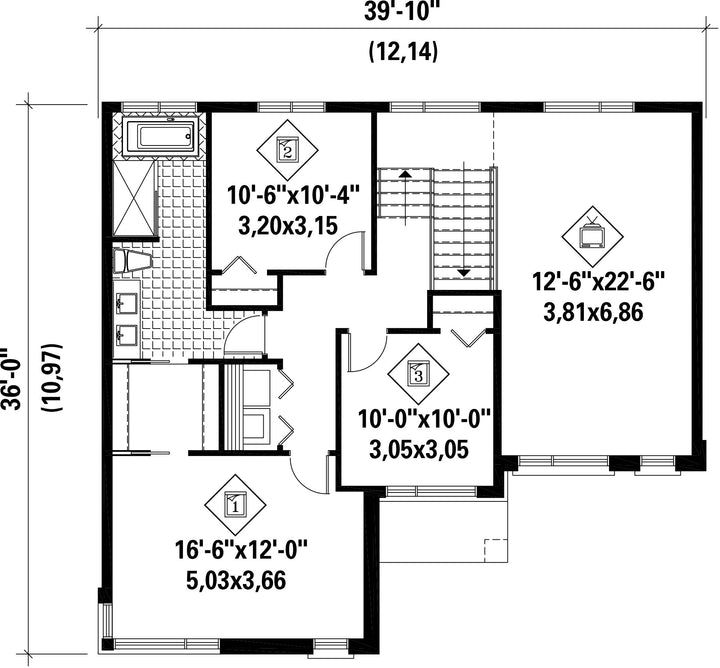
The upper floor has 1,172 square feet of living space and features a family room located above the garage, a laundry closet, as well as three bedrooms, including a master bedroom with a large walk-in closet and a direct access to the family bathroom.
Featuring an 859 square-foot living area, the open ground floor includes a large entrance hall, a powder room, a living room, a dining room and a kitchen with an island and a pantry.
The upper floor has 1,172 square feet of living space and features a family room located above the garage, a laundry closet, as well as three bedrooms, including a master bedroom with a large walk-in closet and a direct access to the family bathroom.
Additional info
Measurements: Imperial| House style | Urban |
Construction price
Approximate amount equivalent to what it would cost to have a general contractor (Montreal's South Shore region) build a similar home, excluding the lot and the infrastructure.
|
445446 $ |
|---|---|---|---|
| Front | 39 ft 10 in | Total living surface | 2031 ft² |
| Depth | 36 ft | Bathrooms | 1 |
| Height | 30 ft 5 in | Bedrooms | 3 |
| Master bedroom | Wardrobe | ||
| First floor area | 859 ft² | Exterior walls | Aluminum + Wood + Stone |
| Second floor area | 1172 ft² | Kitchen | L-shaped + Island |
| Garage area | 313 ft² | Garages | 1 |
| Garage wall | 8 ft | First floor wall | 9 ft |
| Second floor wall | 9 ft | Front/back roof slope | 6/12 |
| Left/right roof slope | 6/12 |
| House style | Urban |
|---|---|
|
Construction price
Approximate amount equivalent to what it would cost to have a general contractor (Montreal's South Shore region) build a similar home, excluding the lot and the infrastructure.
|
445446 $ |
| Front | 39 ft 10 in |
| Total living surface | 2031 ft² |
| Depth | 36 ft |
| Bathrooms | 1 |
| Height | 30 ft 5 in |
| Bedrooms | 3 |
| Master bedroom | Wardrobe |
| First floor area | 859 ft² |
| Exterior walls | Aluminum + Wood + Stone |
| Second floor area | 1172 ft² |
| Kitchen | L-shaped + Island |
| Garage area | 313 ft² |
| Garages | 1 |
| Garage wall | 8 ft |
| First floor wall | 9 ft |
| Second floor wall | 9 ft |
| Front/back roof slope | 6/12 |
| Left/right roof slope | 6/12 |